Erstklassige Lage in Klosterneuburg – Wohnen mit Stil und Weitblick!

Haus - Villa, 3400 Klosterneuburg


Das Objekt befindet sich in einer der begehrtesten Wohnlagen Klosterneuburgs – einer Stadt, die für ihre hohe Lebensqualität, ihre Nähe zu Wien und ihre naturnahe Umgebung bekannt ist. Diese Lage vereint das Beste aus zwei Welten: die Ruhe und Exklusivität einer naturnahen Wohngegend mit der unmittelbaren Nähe zur pulsierenden Metropole Wien – ein Ort, an dem Lebensqualität neu definiert wird.

Beschreibung der Immobilie

Erstklassige Lage in Klosterneuburg – Wohnen mit Stil und Weitblick!

Willkommen in einer Residenz, die Eleganz, Großzügigkeit und architektonische Raffinesse auf höchstem Niveau vereint.



Diese exklusive Immobilie in Klosterneuburg bietet ein Wohngefühl, das seinesgleichen sucht.



Bereits beim Betreten offenbart sich ein Ambiente von zeitloser Schönheit, geprägt von lichtdurchfluteten Räumen und edlen Materialien.



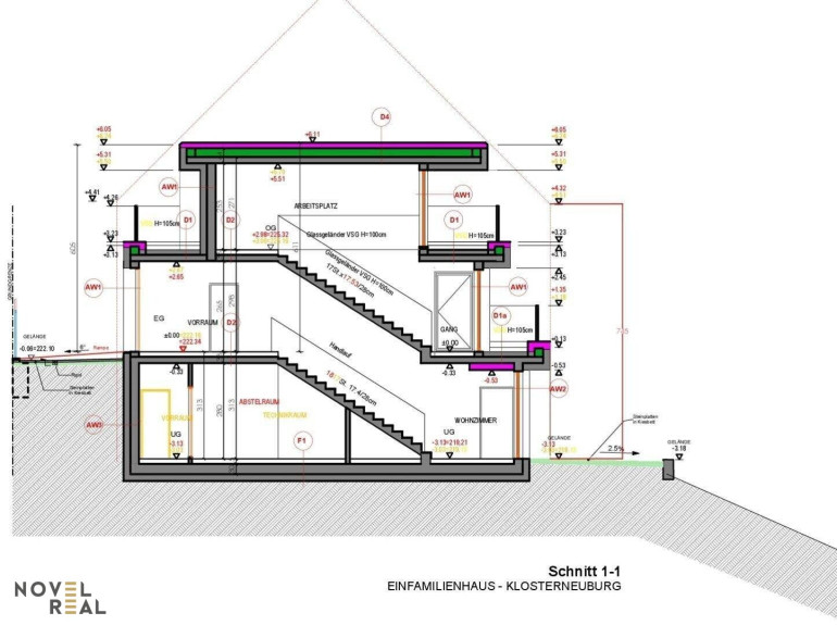
Das Dachgeschoss beeindruckt mit einem offenen, weitläufigen Raum und einem atemberaubenden Panoramablick über die Stadt und die umliegende Natur.



Das exquisite Anwesen erstreckt sich über drei architektonisch meisterhaft gestaltete Wohnetagen und bietet auf jeder Ebene ein Höchstmaß an Wohnkomfort und Raffinesse. Dank der sanften Hanglage des Grundstücks präsentiert sich selbst das Untergeschoss als vollwertige Wohnebene mit großzügigen, lichtdurchfluteten Räumen. Große Fensterflächen und ein direkter Zugang zum liebevoll angelegten Garten schaffen eine nahtlose Verbindung zwischen Innen- und Außenraum – ein seltener Luxus, der das Wohnerlebnis auf dieser Ebene besonders macht.



Ob als stilvoller Gästebereich, privates Homeoffice, Wellnesszone oder Rückzugsort für die Familie – die Nutzungsmöglichkeiten sind ebenso vielfältig wie exklusiv. Die architektonische Planung wurde mit höchster Sorgfalt auf die Gegebenheiten des Grundstücks abgestimmt, sodass jede Etage ihre eigene Qualität und Atmosphäre entfalten kann. Dieses Haus ist nicht nur ein Ort zum Wohnen, sondern ein Ausdruck von Lebensstil und Anspruch.



Die hochwertige Ausstattung, kombiniert mit einem durchdachten Raumkonzept, schafft ein Zuhause, das Komfort und Stil in vollendeter Harmonie verbindet.



Die Lage in einer der exklusivsten Wohngegenden Klosterneuburgs vereint Ruhe, Privatsphäre und eine hervorragende Anbindung an die Wiener Innenstadt.



Ein Zuhause für Menschen mit höchsten Ansprüchen – ein Ort, an dem Luxus nicht nur sichtbar, sondern spürbar wird.





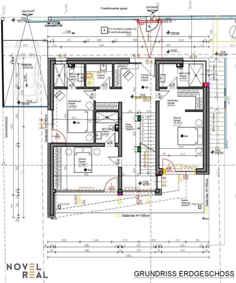
Raumaufteilung Erdgeschoss:



Dieses großzügig geschnittene Einfamilienhaus überzeugt bereits im Erdgeschoss mit einer durchdachten Raumaufteilung und einem harmonischen Wohnkonzept. Große Fensterflächen sorgen für eine helle und freundliche Atmosphäre, während der direkte Zugang zur Terrasse das Wohnerlebnis ins Freie erweitert.



Drei großzügige Schlafzimmer im Erdgeschoss bieten flexible Nutzungsmöglichkeiten – ob als Gästezimmer, Büro oder Rückzugsort. Die modernen En-Suite-Badezimmer sind mit hochwertigen Sanitärobjekten ausgestattet und rundet das Raumangebot auf dieser Ebene ab.



Der Masterbedroom bietet noch eine begehbare Garderobe und einen Ausgang auf die Terrasse-  für Ihren Komfort und herrlichen Weitblick an.



Durchdachte Details wie die klare Trennung von Wohn- und Funktionsbereichen, praktische Stauraumlösungen und eine angenehme Raumhöhe schaffen ein Wohngefühl, das Komfort und Stil vereint.



Fakten:



  • 3 großzügige Schlafzimmer. Masterbedroom mit angrenzender Garderobe. 2 Schlafzimmer mit herrlicher Terrasse.
  • Badezimmer: En-Suite-Badezimmer mit hochwertigen Sanitärobjekten
  • Abstellraum
  • Flur / Eingangsbereich: Verbindet die Räume miteinander.
  • Terrasse
  • Carport




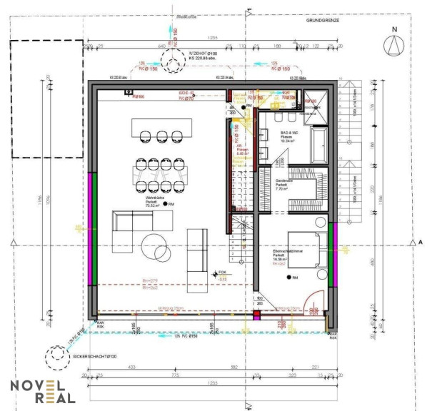
Raumaufteilung Gartengeschoß:



Der großzügige Wohn- und Essbereich bildet das Herzstück dieser Etage. Offen gestaltet und lichtdurchflutet durch große Fensterflächen, eröffnet sich hier ein Raum für stilvolles Wohnen und repräsentatives Empfangen. Hochwertige Materialien, klare Linien und ein durchdachtes Raumkonzept schaffen eine Atmosphäre von Ruhe und Raffinesse. Der direkte Zugang zur Terrasse oder zum Außenbereich erweitert den Wohnraum ins Grüne und lädt zu entspannten Stunden im Freien ein.



Die  Küche ist ein Meisterwerk moderner Planung – funktional, elegant und mit ausreichend Platz für kulinarische Kreativität. Ob für den schnellen Espresso am Morgen oder das festliche Dinner am Abend – hier wird Kochen zum Erlebnis.



Ein stilvoller Masterbedroom mit Garderobenmöglichkeit und En-Suite-Badezimmer runden das Raumangebot ab.



Jeder Bereich ist mit Liebe zum Detail gestaltet und fügt sich harmonisch in das Gesamtbild ein.



Fakten:



  • Wohnen/Essen: Ein großzügig geschnittener, offener Bereich, der als Wohn- und Esszimmer dient. Große Fensterflächen oder Türen bieten einen Zugang in den Gartenbereich.
  • Küche: Direkt an den Wohn-/Essbereich angeschlossen, ein offenes Wohnkonzept Die Küche ist optimal angeordnet und bietet ausreichend Platz für Arbeitsflächen und Küchengeräte.
  • Abstellraum
  • Masterbedroom mit En-Suite-Badezimmer und begehbarer Garderobe
  • Diele: Der Eingangsbereich verbindet die verschiedenen Räume miteinander. Er dient als zentraler Verteiler und bietet Platz für Garderobe oder Stauraum.
  • WC: Ein separates Gäste-WC ist vorhanden, was besonders praktisch für Besucher ist.
  • Garten




Raumaufteilung Dachgeschoß



Das Dachgeschoss dieses außergewöhnlichen Anwesens ist ein wahres Juwel – ein Ort, der Weite, Licht und Eleganz in vollendeter Harmonie vereint. Hier eröffnet sich ein großzügiger, offen gestalteter Raum, der durch seine architektonische Klarheit und seine luxuriöse Ausstrahlung beeindruckt.



Ein besonderes Highlight ist der sensationelle Ausblick, der sich durch großflächige Fensterfronten oder Panoramaverglasungen offenbart. Ob Sonnenaufgang über der Stadt oder der Blick in die Weite der Natur – dieser Raum schenkt Ihnen täglich neue Perspektiven und ein Gefühl von Freiheit und Erhabenheit.



Die Gestaltungsmöglichkeiten sind vielfältig: Ob als exklusiver Master-Bedroom, stilvolles Atelier, private Lounge oder lichtdurchflutetes Homeoffice – dieser Raum passt sich Ihren Ansprüchen an und bietet dabei stets ein Höchstmaß an Komfort und Privatsphäre.



Die Beheizung und Kühlung erfolgen durch eine Luft-Wasser-Wärmepumpe mit integrierter Kälte- und Wärmefunktion.





Lage:



Das Objekt befindet sich in unmittelbarer Nähe zum Ölberg in einer der begehrtesten Wohnlagen Klosterneuburgs – einer Stadt, die für ihre hohe Lebensqualität, ihre Nähe zu Wien und ihre naturnahe Umgebung bekannt ist. Eingebettet in eine ruhige, gepflegte Wohngegend, bietet diese Adresse ein Höchstmaß an Privatsphäre und Exklusivität.



Die Umgebung ist geprägt von stilvollen Einfamilienhäusern, eleganten Villen und großzügigen Gärten. Hier genießen Sie die Ruhe des Wienerwaldes, ohne auf die Annehmlichkeiten urbaner Infrastruktur verzichten zu müssen. In wenigen Minuten erreichen Sie das historische Stadtzentrum von Klosterneuburg mit seinen charmanten Cafés, gehobenen Restaurants, Boutiquen und kulturellen Einrichtungen wie dem Stift Klosterneuburg.



Auch die Anbindung an das öffentliche Verkehrsnetz ist hervorragend: Die nahegelegene ÖBB-Station Klosterneuburg-Kierling sowie Busverbindungen ermöglichen eine schnelle und bequeme Verbindung nach Wien – die Wiener Innenstadt ist in rund 25 Minuten erreichbar. Für Autofahrer bietet die B14 eine direkte Verbindung zur Wiener Stadtgrenze und weiter zur A22 Donauuferautobahn.



Zahlreiche Nahversorger, renommierte Bildungseinrichtungen, Kindergärten und medizinische Versorgungseinrichtungen befinden sich in unmittelbarer Nähe. Für Freizeit und Erholung laden die umliegenden Weinberge, Rad- und Wanderwege sowie das Donauufer zu Aktivitäten in der Natur ein.



Diese Lage vereint das Beste aus zwei Welten: die Ruhe und Exklusivität einer naturnahen Wohngegend mit der unmittelbaren Nähe zur pulsierenden Metropole Wien – ein Ort, an dem Lebensqualität neu definiert wird.





Aus rechtlichen Gründen und aufgrund der großen Nachfragen bitten wir um Verständnis, dass wir nur Anfragen per Mail beantworten, wenn Sie uns Ihren vollständigen Namen samt Mailadresse und Mobilnummer bekanntgeben.



Alle Angaben basieren alleinig auf Informationen, die uns von unserem Auftraggeber übermittelt wurden. Trotz aller Sorgfalt können wir für die Richtigkeit, Vollständigkeit und Aktualität dieser Angaben keine Gewähr übernehmen. Jegliche Weitergabe der übermittelten Daten an Dritte ist nicht gestattet. Der Maklervertrag kommt durch schriftliche Vereinbarung oder Inanspruchnahme unserer Maklertätigkeit zustande. Der Makler kann als Doppelmakler tätig werden. Sollte das von uns nachgewiesene Objekt bereits bekannt sein, teilen sie uns dies bitte unverzüglich mit.



Die Maklergebühr ist ausschließlich bei Zustandekommen eines gültigen Rechtsgeschäfts fällig und vom Mieter/Käufer an Novel Real Immobilien GmbH zu zahlen. Es wird ausdrücklich auf die Nebenkostenübersicht hingewiesen. Bei den Visualisierungen und Abbildungen der Immobilie (insbesondere von Inneneinrichtungen) kann es sich um Symbolfotos bzw. fototechnisch optimierte Fotos handeln. Hiermit weisen wir auf das Bestehen eines familiären und/oder wirtschaftlichen Naheverhältnisses zum Vermieter/Verkäufer hin. 



Für die Vereinbarung eines Termins kontaktieren Sie Frau Nina Jordanov telefonisch unter +43 660 442 7200 oder per E-Mail: nj@novel-real.at










Infrastruktur / Entfernungen

Gesundheit
Arzt <500m
Apotheke <2.000m
Klinik <3.000m
Krankenhaus <2.000m

Kinder & Schulen
Schule <2.000m
Kindergarten <1.000m
Universität <3.000m
Höhere Schule <8.000m

Nahversorgung
Supermarkt <1.000m
Bäckerei <2.000m
Einkaufszentrum <6.500m

Sonstige
Bank <2.000m
Geldautomat <2.000m
Post <2.000m
Polizei <2.500m

Verkehr
Bus <500m
Straßenbahn <7.000m
U-Bahn <8.500m
Bahnhof <2.000m
Autobahnanschluss <4.000m

Angaben Entfernung Luftlinie / Quelle: OpenStreetMap

Eckdaten Objektnr. 6326

Art: Haus - Villa
Land: Österreich
Baujahr: 2019
Alter: Neubau
Kaufpreis: 1.999.999,00
Wohnfläche: 260,00 m²
Grundstücksfl.: 600,00 m²
Zimmer: 6
Bäder: 4
WC: 5
Terrassen: 3
Stellplätze: 1
Heizwärmebedarf:  A  28,00 kWh/m²a
fGEE:  A+  0,63
Immobilie merken Exposé

Ausstattung

Fliesen, Parkett, Fußbodenheizung, Einbauküche, Wohnküche / offene Küche, Badewanne, Dusche, Carport, Alarmanlage


Immobilie anfragen


Ihre persönliche Beratung

Novel Real Immobilien GmbH

Nina Jordanov

Novel Real Immobilien GmbH

T +43 1 3614014

H +43 660 4427200