Mehrzweckfläche / Lagerräume in guter Lage in Linz

Halle / Lager / Produktion , 4020 Linz


Die Mehrzweckfläche bzw. die Lagerfläche befindet sich guter Lage in 4020 Linz, nur wenige Minuten vom Zentrum entfernt. Die unmittelbare Nähe zur Donaulände und der Industriezeile Hafen sorgt für eine hervorragende Erreichbarkeit, wichtige Einrichtungen sind leicht erreichbar. Auch öffentliche Verkehrsanbindungen, Bahnhof und Autobahnanschluss runden das Angebot ab. Hier finden Sie den idealen Standort für Ihr Business!

Beschreibung der Immobilie

Mehrzweckfläche / Lagerräume in guter Lage in Linz

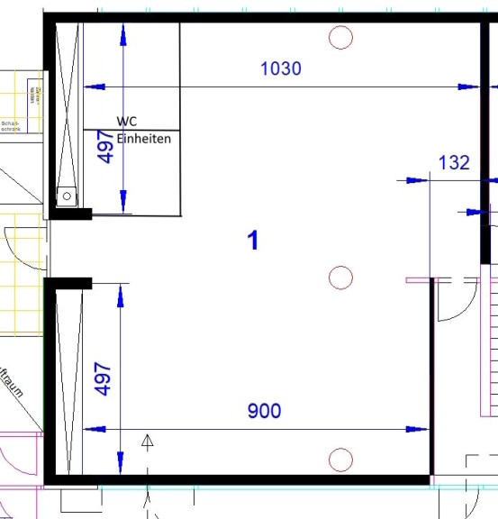
Entdecken Sie Ihre neue Mehrzweckfläche bzw. Lagerfläche im Herzen von Linz, Oberösterreich! Diese Fläche von 121,28 m² im Erdgeschoss bietet Ihnen nicht nur eine hervorragende Lage, sondern auch zahlreiche Annehmlichkeiten, die Ihren Arbeitsalltag erleichtern werden.



Diese Einheit ist mit einem Doppelboden ausgestattet, der nicht nur für eine angenehme Raumakustik sorgt, sondern auch eine flexible und vielseitige Nutzung ermöglicht. Der Boden ist pflegeleicht und bietet eine ansprechende Optik.



Ein weiteres Highlight sind die zwei WCs, die Ihnen und Ihren Mitarbeitern zusätzlichen Komfort bieten. Zudem sorgt die Fernwärme und Zentralheizung für ein angenehmes Raumklima.



Die Verkehrsanbindung könnte besser nicht sein: Die Haltestelle für öffentliche Verkehrsmittel ist gleich um die Ecke, der Bahnhof ist schnell erreichbar und der Autobahnanschluss ermöglicht Ihnen eine unkomplizierte Anreise, egal von wo Sie kommen. Vier Parkplätze sind in diesem Angebot inkludiert!



Die im Erdgeschoß gelegene Einheit überzeugt durch ihre hohe Funktionalität, insbesondere für Teams mit regelmäßigem Waren- und Materialumschlag.






Infrastruktur / Entfernungen

Gesundheit
Arzt <1.000m
Apotheke <500m
Klinik <1.500m
Krankenhaus <1.500m

Kinder & Schulen
Kindergarten <500m
Schule <500m
Universität <1.000m
Höhere Schule <1.500m

Nahversorgung
Supermarkt <500m
Bäckerei <500m
Einkaufszentrum <2.000m

Sonstige
Bank <500m
Geldautomat <500m
Post <2.000m
Polizei <1.000m

Verkehr
Bus <500m
Straßenbahn <1.500m
Bahnhof <500m
Autobahnanschluss <500m
Flughafen <3.000m

Angaben Entfernung Luftlinie / Quelle: OpenStreetMap

Eckdaten Objektnr. 2086/26003

Art: Halle / Lager / Produktion
Land: Österreich
Zustand: Neuwertig
Alter: Neubau
Kaltmiete (netto): 1.169,60 €
Kaltmiete: 1.519,66 €
Provision: 6.060,20 € inkl. 20% USt.
Betriebskosten: 350,06 €
Heizkosten: 163,73 €
MwSt Gesamt: 336,68 €
Nutzfläche: 121,28 m²
Gesamtfläche: 121,28 m²
WC: 2
Heizwärmebedarf:  C  80,00 kWh/m²a
fGEE:  C  1,29
Immobilie merken Exposé

Ausstattung

Doppelboden, Kunststoffboden, Fernwärme, Zentralheizung, Personenaufzug, Wachdienst, DV-Verkabelung, Parkplatz


Immobilie anfragen


Ihre persönliche Beratung

IMMOS Immobilien Gerold Stadlhuber

Gerold Stadlhuber

IMMOS Immobilien Gerold Stadlhuber

T 0732/600 100

H 0664/4600100