Stadthaus mit Geschichte und Entwicklungspotenzial im Herzen von Gmunden

Haus - Mehrfamilienhaus, 4810 Gmunden


Beschreibung der Immobilie

Stadthaus mit Geschichte und Entwicklungspotenzial im Herzen von Gmunden

Auf einer Gesamtfläche von rund 850 m² eröffnet dieses außergewöhnliche Stadthaus eine seltene Gelegenheit mit Geschichte und Entwicklungspotenzial. In zentraler Lage von Gmunden, eingebettet in die eindrucksvolle Landschaft des Salzkammerguts, verbindet die Liegenschaft historischen Charakter mit vielfältigen Nutzungsmöglichkeiten.



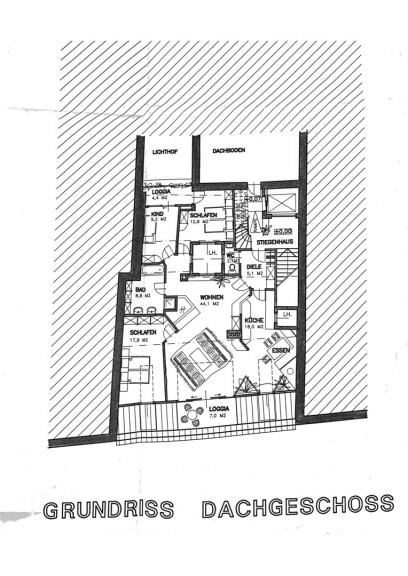
Das Gebäude gliedert sich in drei Vollgeschosse sowie ein ausbaufähiges Dachgeschoss. Ein besonderes Merkmal ist das begehbare Dach, das einen beeindruckenden Blick über die Stadt, den Traunsee und die umliegenden Berge ermöglicht.




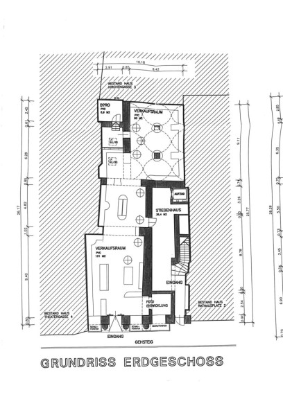
  • Erdgeschoss: ca. 188 m² Gewerbefläche, derzeit an ein Bergsportgeschäft vermietet



  • 1. Obergeschoss: ca. 165 m², sanierungsbedürftig und offen für individuelle Gestaltung



  • 2. Obergeschoss: ca. 180 m², großzügige Wohneinheit plus Geschäftsflächen, HWB: 59 kWh/m²a



  • 3. Obergeschoss: ca. 191 m², Büro- und Praxisräume, HWB: 100 kWh/m²a (Praxis), HWB: 231 kWh/m²a (Büro)



  • Dachgeschoss (nicht ausgebaut): ca. 122 m², mit Balkon und beeindruckender Aussicht – bereit für neue Nutzungsideen




Der besondere Wert dieser Immobilie liegt in ihrer Flexibilität. Wohnen, Arbeiten oder eine Kombination aus beidem lassen sich hier harmonisch vereinen. Bestehende architektonische Elemente können bewahrt und zugleich zeitgemäß weiterentwickelt werden.



Ein Haus mit Geschichte und Zukunft – bereit für eine neue Handschrift.

Infrastruktur / Entfernungen

Gesundheit
Arzt <500m
Apotheke <500m
Krankenhaus <1.500m
Klinik <2.000m

Kinder & Schulen
Schule <500m
Kindergarten <500m

Nahversorgung
Supermarkt <500m
Bäckerei <500m
Einkaufszentrum <1.500m

Sonstige
Bank <500m
Geldautomat <500m
Post <500m
Polizei <500m

Verkehr
Bus <500m
Straßenbahn <500m
Bahnhof <500m
Autobahnanschluss <6.500m
Flughafen <6.500m

Angaben Entfernung Luftlinie / Quelle: OpenStreetMap

Eckdaten Objektnr. 2027/1402

Art: Haus - Mehrfamilienhaus
Land: Österreich
Baujahr: 1444
Alter: Altbau
Kaufpreis: 2.500.000,00
Provision: 3% des Kaufpreises zzgl. 20% USt.
Nutzfläche: 846,00 m²
Grundstücksfl.: 305,00 m²
Balkone: 1
Heizwärmebedarf: 59,00 kWh/m²a
fGEE: 1,43
Immobilie merken Exposé

Ausstattung

Gas


Immobilie anfragen


Ihre persönliche Beratung

Bönisch Immobilien

Stefanie Demmel

Bönisch Immobilien

T +43 664 91 90 703