Neubauprojekt „Herz & Heim“ in Simmering - 1 Zimmer-Wohnung mit Loggia - zu Mieten in 1110 Wien

Wohnung - Etage, 1110 Wien , Simmeringer Hauptstraße 31


Die Lage könnte nicht besser sein. In unmittelbarer U-Bahn Nähe (U3), mit Straßenbahn (71) und Buslinie (N) vor der Tür, sowie der Autobahnauffahrt Gürtel/Landstraße sind sie bestens an alle Verkehrswege angebunden. Die Simmeringer Hauptstraße bietet fußläufig erreichbar eine Vielzahl an Einkaufsmöglichkeiten, Restaurants, Kindergärten, Schulen und Ärzten.

Beschreibung der Immobilie

Neubauprojekt „Herz & Heim“ in Simmering - 1 Zimmer-Wohnung mit Loggia - zu Mieten in 1110 Wien

Herz & Heim - da simma z´haus

Zur Vermarktung gelangen 32 Ein- bis Drei-Zimmer-Wohnungen in der Größe zwischen 31 und 86 m², sowie 17 Stellplätze in bester Simmeringer Lage. Geplanter Einzugstermin ist der Sommer 2026.

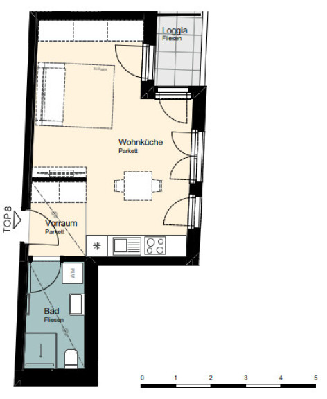
Ihr neuer Wohntraum ist wie folgt aufgeteilt:

Vorraum / Wohnbereich inklusive Einbauküche / Schlafzimmer
Badezimmer inklusive Dusche, WC und Waschmaschinenanschluss / Loggia

Bei den Fotos handelt es sich um Visualisierungen, die Wohnungen werden nicht möbliert vermietet!
Die Wohnungen werden auf 5 Jahre befristet vermietet. Kündigungsverzicht 1 Jahr.
Die Nebenkosten (Strom, Heizung und Wasser) sind verbrauchsabhängig und fallen zusätzlich an.

Eckdaten Objektnr. 109242565_9

Art: Wohnung - Etage
Land: Österreich
Baujahr: 2026
Zustand: Erstbezug
Möbliert: Teil
Gesamtmiete: 698,99
Kaltmiete (netto): 558,52 €
Betriebskosten: 76,93 €
Wohnfläche: 32,22 m²
Zimmer: 1
Bäder: 1
Immobilie merken Exposé

Ausstattung

Parkett, Fußbodenheizung, Einbauküche, Personenaufzug, Dusche


Immobilie anfragen


Ihre persönliche Beratung

ÖRAG Immobilien Vermittlung GmbH

Lara Steinbacher

T 0043153473261

H 004366488962125

Dieser Makler ist ein offizielles Mitglied des IR – ir.at Mehr Erfahren


Makler für Immobilien - ÖRAG Immobilien Vermittlung GmbH

Immobilien stehen für Sicherheit und langfristige Wertsteigerung. Doch erst kompetentes Management ermöglicht es, das Potenzial einer Liegenschaft nachhaltig und gewinnbringend zu nutzen.