Vorschau 2026: Neubauprojekt in Simmering - 1 bis 4-Zimmer-Wohnungen mit Freiflächen - zu Mieten in 1110 Wien
Wohnung
- Etage,
1110
Wien
,
Simmeringer Hauptstraße 31
Die Lage könnte nicht besser sein. In unmittelbarer U-Bahn Nähe (U3), mit Straßenbahn (71) und Buslinie (N) vor der Tür, sowie der Autobahnauffahrt Gürtel/Landstraße sind sie bestens an alle Verkehrswege angebunden. Die Simmeringer Hauptstraße bietet fußläufig erreichbar eine Vielzahl an Einkaufsmöglichkeiten, Restaurants, Kindergärten, Schulen und Ärzten.
Beschreibung der Immobilie
Vorschau 2026: Neubauprojekt in Simmering - 1 bis 4-Zimmer-Wohnungen mit Freiflächen - zu Mieten in 1110 Wien
Herz & Heim - da simma z´hausZur Vermarktung gelangen 32 Ein- bis Drei-Zimmer-Wohnungen in der Größe zwischen 31 und 86 m², sowie 17 Stellplätze in bester Simmeringer Lage. Geplanter Einzugstermin ist der Sommer 2026.
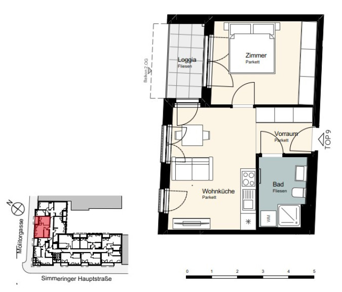
Ihr neuer Wohntraum ist wie folgt aufgeteilt:
Vorraum / Wohnküche inklusive Einbauküche / Schlafzimmer / Badezimmer inklusive Dusche, WC und Waschmaschinenanschluss / Loggia
Bei den Fotos handelt es sich um Visualisierungen, die Wohnungen werden nicht möbliert vermietet!
Die Wohnungen werden auf 5 Jahre befristet vermietet. Kündigungsverzicht 1 Jahr.
Die Nebenkosten (Strom, Heizung und Wasser) sind verbrauchsabhängig und fallen zusätzlich an.
Eckdaten Objektnr. 109242565_33
| Art: | Wohnung - Etage |
| Land: | Österreich |
| Baujahr: | 2026 |
| Zustand: | Erstbezug |
| Möbliert: | Teil |
| Gesamtmiete: | 825,00 € |
| Kaltmiete (netto): | 656,08 € |
| Betriebskosten: | 93,92 € |
| Wohnfläche: | 37,95 m² |
| Zimmer: | 2 |
| Bäder: | 1 |
Ausstattung
Parkett, Fußbodenheizung, Einbauküche, Personenaufzug, Westbalkon, Dusche
Ihre persönliche Beratung
Dieser Makler ist ein offizielles Mitglied des IR – ir.at Mehr Erfahren
