Wiener Erbe - Projekt Schulgasse 1180

Wohnung - Etage, 1180 Wien


Die Schulgasse liegt im Herzen des begehrten 18. Bezirks, in unmittelbarer Nähe zu Kutschkermarkt, Schubertpark und zahlreichen Einkaufsmöglichkeiten. Die Umgebung punktet mit erstklassiger Infrastruktur, familienfreundlichen Bildungseinrichtungen und einer exzellenten Verkehrsanbindung (Straßenbahnlinien 40, 41 und U6). Eine ideale Kombination aus urbanem Lebensgefühl und hoher Lebensqualität.

Beschreibung der Immobilie

Wiener Erbe - Projekt Schulgasse 1180

WIENER ERBE – Komplett sanierter Altbau mit Dachgeschossausbau in der Schulgasse, 1180 Wien



Manche Wohnungen erzählen Geschichten – leise, aber eindrucksvoll. Genau das spürt man hier: den Charme des Wiener Altbaus, der über Generationen hinweg bewahrt wurde, und die Sorgfalt, mit der moderne Technik, nachhaltige Ausstattung und ein durchdachtes Wohnkonzept integriert wurden. Hochwertige Materialien, klare Grundrisse und wunderschöne Freiflächen laden dazu ein, das Leben drinnen und draußen zu genießen – sei es bei einem Kaffee auf dem Balkon, einem Glas Wein auf der Terrasse oder einem Moment der Stille im grünen Innenhof. Während draußen die Stadt pulsiert, findet man hier einen Ort der Ruhe – ein Zuhause, das Geschichte atmet und gleichzeitig für die Zukunft gemacht ist.



Highlights:




  • Aufwendig sanierter Altbau mit hochwertiger Ausstattung



  • Nachhaltige Heiztechnik: Luftwärmepumpe & Fußbodenheizung



  • Balkone, Terrassen und grüner Innenhof als Rückzugsort



  • Ruhige Lage in WähringTop-Infrastruktur & öffentliche Anbindung



  • Wohnungen für jeden Geschmack: klassische Altbauwohnungen und moderne Dachgeschosswohnungen






Die Wohnungen im WIENER ERBE vereinen den typischen Altbaucharme mit durchdachten, modernen Details: edler Parkettboden, stilvolle Fliesen und eine hochwertige Haustechnik sorgen für ein Wohngefühl, das Tradition und Zeitgeist miteinander verbindet. Für nachhaltigen Komfort sorgt die umweltfreundliche Heiztechnik mit Luftwärmepumpe und Fußbodenheizung, die nicht nur die Umwelt, sondern auch Ihr Budget schont. Neben den liebevoll sanierten Altbauwohnungen entstehen auch zwei exklusive Neubau-Dachgeschosswohnungenhell, modern und mit großzügigen Freiflächen, die den Blick über die Dächer der Stadt freigeben.



So genießen Sie das Beste aus zwei Welten – ein Zuhause, das Geschichte bewahrt und gleichzeitig für die Zukunft gemacht ist.







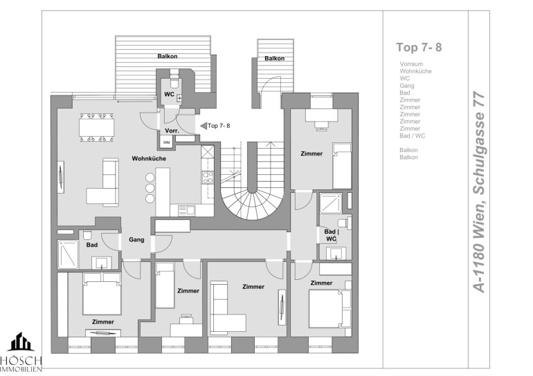
DIE GEGENSTÄNDIGE WOHNUNG - TOP 3-4



Kaufpreis: € 1.089.000,--

Wohnfläche: ca. 120,96 m²

Freifläche: ca. 29,06 m²

Zimmer: 3

Stockwerk: 1. Stock mit Lift

Baujahr: ca. 1900, renoviert: 2025/26



Diese (aktuell noch) zwei Wohnungen könnten auf Wunsch zusammengelegt werden zu einer großen Wohnung mit einer Terrasse und einem Balkon. Es gäbe eine Variante mit 4 und eine mit 5 Zimmern (siehe Pläne). 





Erfolgshonorar: 3% vom Kaufpreis zzgl. 20% USt.



Herr Lucas Taufer steht Ihnen für alle Fragen und eine persönliche Besichtigung gerne zur Verfügung. Sie erreichen ihn unter 0660 7542528. Gerne wird er Ihnen auch bei einer passenden Finanzierung weiterhelfen!



Bei manchen Bildern handelt es sich um digital eingerichtete Beispielbilder.



Für die Vertragserrichtung wird Herr Mag. Lukas Fuhrmann beauftragt. Die Kosten für die Treuhandschaft belaufen sich auf 1,5% zzgl. USt., Beglaubigung und Barauslagen.


Der Vermittler ist als Doppelmakler tätig.

Infrastruktur / Entfernungen

Gesundheit
Arzt <500m
Apotheke <500m
Klinik <500m
Krankenhaus <1.000m

Kinder & Schulen
Schule <500m
Kindergarten <500m
Universität <1.000m
Höhere Schule <500m

Nahversorgung
Supermarkt <500m
Bäckerei <500m
Einkaufszentrum <1.000m

Sonstige
Geldautomat <500m
Bank <500m
Post <500m
Polizei <500m

Verkehr
Bus <500m
U-Bahn <1.000m
Straßenbahn <500m
Bahnhof <1.000m
Autobahnanschluss <2.500m

Angaben Entfernung Luftlinie / Quelle: OpenStreetMap

Eckdaten Objektnr. 7398/11322722

Art: Wohnung - Etage
Land: Österreich
Baujahr: 2025
Kaufpreis: 1.089.000,00
Provision: 3% des Kaufpreises zzgl. 20% USt.
Wohnfläche: 120,96 m²
Zimmer: 3
Bäder: 2
WC: 2
Balkone: 1
Terrassen: 1
Heizwärmebedarf:  B  37,10 kWh/m²a
fGEE:  A  0,74
Immobilie merken Exposé

Ausstattung

Fliesen, Parkett, Fußbodenheizung, Personenaufzug, Dusche


Immobilie anfragen


Ihre persönliche Beratung

Hösch Immobilien GmbH

Lucas Taufer

Hösch Immobilien GmbH

T +43 660 7542528