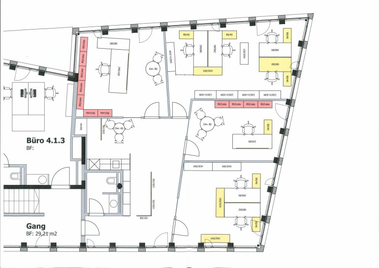
Helle, großzügige Büroeinheit mitten Am Garnmarkt in Götzis mit ca. 140 m²

Büro / Praxis , 6840 Götzis , Am Garnmarkt 4


Am Garnmarkt ist mitten im Zentrum der Marktgemeinde Götzis situiert und grenzt direkt an die örtliche Hauptverkehrsachse L 190 und die Bahnhofstraße an. Durch das Areal führt die neue Landestrasse L 58 welche von der L 190 einmündet und in Richtung Autobahn verläuft. Am Garnmarkt ist zu Fuß bequem in ca. 5 min vom Bahnhof Götzis aus erreichbar. Direkt am Areal fährt der Landbus 307 die Haltestelle Am Garnmarkt und weitere Linien, die Haltestellen Schulgasse und Dorf in unmittelbarer Nähe an.

Beschreibung der Immobilie

Helle, großzügige Büroeinheit mitten Am Garnmarkt in Götzis mit ca. 140 m²

Am Garnmarkt – Wohnen. Leben. Einkaufen



Am Garnmarkt in Götzis ist ein überregional bedeutender Standort mit einer Durchmischung von Einkaufen, Arbeiten und Wohnen. Das Areal mit einer Vielzahl an Geschäften, Büros und Ordinationen, Bildungseinrichtungen sowie einem vielfältigen Kultur- und Gastronomieangebot ist zu einem belebten, urbanen Teil des Ortszentrums geworden.





Highlights:



  • im Zentrum mit bester Infrastruktur und idealer Verkehrsanbindung (mitten in Vorarlberg, grenznah zur Schweiz)
  • Kunden parken 3h gratis in der Am Garnmarkt Tiefgarage
  • große Fensterfronten für helle Räume
  • Mieteinheit im 1. Obergeschoss
  • geeignet als Büro- oder Ordinationsfläche
  • hochwertiger Ausbau
  • Heizung/Kühlung/Lüftung
  • WC
  • Teeküche vorhanden
  • Tiefgarage direkt über den Aufzug erreichbar
  • KFZ-Abstellplätze nach Absprache






Lage und Infrastruktur:



Am Garnmarkt ist mitten im Zentrum der Marktgemeinde Götzis situiert und grenzt direkt an die örtliche Hauptverkehrsachse L 190 und die Bahnhofstraße an. Durch das Areal führt die neue Landestrasse L 58 welche von der L 190 einmündet und in Richtung Autobahn verläuft.



Am Garnmarkt ist zu Fuß bequem in ca. 5 min vom Bahnhof Götzis aus erreichbar. Direkt am Areal fährt der Landbus 307 die Haltestelle Am Garnmarkt und weitere Linien, die Haltestellen Schulgasse und Dorf in unmittelbarer Nähe an.





Lassen Sie sich diese Gelegenheit nicht entgehen und vereinbaren Sie noch heute einen Besichtigungstermin.





Unsere Angaben beziehen sich auf die Auskünfte des Eigentümers. Irrtum und Änderungen vorbehalten.

Noch nichts gefunden? Wir informieren Sie über geeignete Immobilienangebote noch vor allen anderen.
Legen Sie jetzt kostenlos Ihren individuellen Suchagenten unter folgendem Link an. Wir schicken Ihnen passende Immobilien exklusiv vorab zu.

Suchagent anlegen


Wir weisen darauf hin, dass zwischen dem Vermittler und dem zu vermittelnden Dritten ein familiäres oder wirtschaftliches Naheverhältnis besteht.


Der Vermittler ist als Doppelmakler tätig.

Infrastruktur / Entfernungen

Gesundheit
Arzt <150m
Apotheke <250m
Krankenhaus <4.100m

Kinder & Schulen
Schule <150m
Kindergarten <100m
Höhere Schule <150m

Nahversorgung
Supermarkt <75m
Bäckerei <25m
Einkaufszentrum <4.925m

Sonstige
Bank <150m
Geldautomat <150m
Post <675m
Polizei <125m

Verkehr
Bus <50m
Bahnhof <750m
Autobahnanschluss <1.650m
Flughafen <6.825m

Angaben Entfernung Luftlinie / Quelle: OpenStreetMap

Eckdaten Objektnr. 5681/598

Art: Büro / Praxis
Land: Österreich
Baujahr: 2010
Zustand: Neuwertig
Kaltmiete (netto): 2.262,00 €
Kaltmiete: 2.695,00 €
Provision: 1 Bruttomonatsmiete zzgl. 20% USt.
Betriebskosten: 433,00 €
Heizkosten: 86,00 €
Bürofläche: 136,74 m²
Heizwärmebedarf:  B  44,06 kWh/m²a
fGEE:  B  0,99
Immobilie merken Exposé

Ausstattung

Fliesen, Teppichboden, Fußbodenheizung, Personenaufzug, Reinigungsservice, Kabel/Satelliten-TV, Tiefgarage, Teeküche


Immobilie anfragen


Ihre persönliche Beratung

Rimo Immobilien GmbH

Mag. Daniel Ströhle

Rimo Immobilien GmbH

T +43 5522 39303 21