Klimatisierte Dachgeschosswohnung mit 2 Terrassen | nahe Neubaugasse (U3)

Wohnung - Terrassenwohnung, 1070 Wien


Mariahilfer Strasse / Neubaugasse (U3)

Beschreibung der Immobilie

Klimatisierte Dachgeschosswohnung mit 2 Terrassen | nahe Neubaugasse (U3)

großzügige DG-Wohnung mit zwei hofseitigen Terrassen auf Wohnebene.



+ Nutzfläche: 87qm 

+ süd-westseitige Ausrichtung (!)




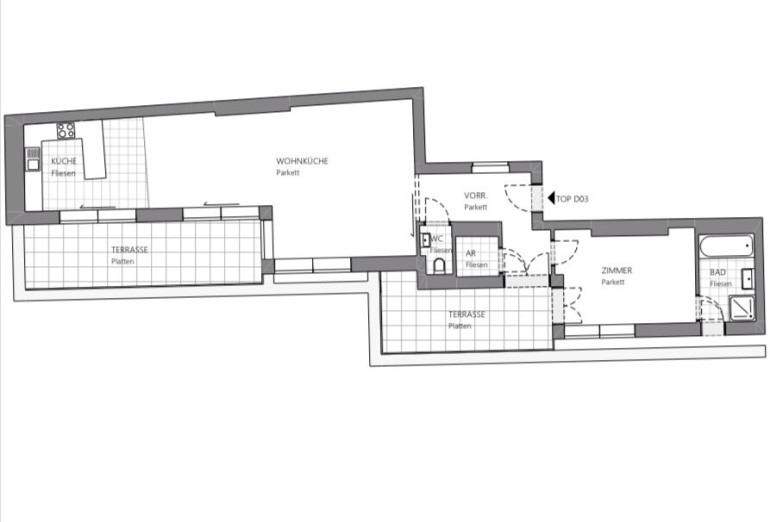
Der Grundriss umfasst:



+ Vorzimmer mit Ausgang zu Terrasse 1

+ Wohn-/Esszimmer mit großzügiger, öffenbarer Verglasung (Terrasse 2; Kochen und Wohnen mit Blick über die Dächer Wiens!)

+ amerikanische Küche Wohnküche; vollausgestattet

+ Schlafzimmer 

+ Bad (Wanne, Dusche, Handtuchtrockner, elektrische Fußbodenheizung)

+ separate Toilette mit Handwaschbecken

+ Abstellraum mit Waschmaschinenanschluss



+ Gasetagenheizung (HWB 96,1, Klasse D )

 



Die Terrassen verfügen beide über Wasseranschlüsse und Elektrosteckdosen.

Die Flächenaufstellung (Größe der einzelnen Räume) bitten wir dem Plan zu entnehmen.

 



Highlights:



+ Sicherheitseingangstüre



+ Klimaanlagen



+ Sonnenschutz an allen Fenstern und Terrassentüren (Jalousien)



+ sehr helle Wohnräume



+ großflächige Fenster



+ Dielenparkett



+ sehr gepflegtes Haus



+ repräsentative, ruhige Lage





Verkehr:
U3 Neubaugasse bzw. Zieglergasse



Vertrag & Kosten:
Mietvertrag auf 5 Jahre

Bruttomiete inkl. BK & USt.: € 1.950,--

Gas & Strom sind nicht im Mietpreis inkludiert (Etagenheizung).

Kaution: 3 Bruttomonatsmieten



 



Wir sind jederzeit gerne für Sie erreichbar, auch an Wochenenden und Feiertagen!






E N G L I S H



Top Located Penthouse-Apartment with 1 Bedroom, 2 Terraces



location : near Mariahilfer Straße - Neubaugasse




details:


+ living space: 87qm



+ 1 bedroom



+ bright living room with open plan kitchen and terrace



+ bathroom (washbasin, shower, tub, towel dryer, electrical floor heating)



+ anteroom



+ storeroom with possibility to connect a washing machine



+ separate restroom





Highlights:



+ air condition (!)

+ security entrance door

+ bright rooms (
large windows!)



+ venetians everywhere

+ beautiful parquet

+ neat house

+ representative location





Infrastructure:



Step out the house and You find litteraly everthing You need very close.



Closest subway-stations are U3-Neubaugasse and U3-Zieglergasse.



Contract & Costs:
monthly rent: € 1.950,-- (heating and warmwater are extra)

deposit: 3x monthly rent

 



We cordially invite You to visit the apartment and get further details.

You reach us on weekends & hollidays aswell.


Wir weisen darauf hin, dass zwischen dem Vermittler und dem zu vermittelnden Dritten ein familiäres oder wirtschaftliches Naheverhältnis besteht.


Der Immobilienmakler erklärt, dass er – entgegen dem in der Immobilienwirtschaft üblichen Geschäftsgebrauch des Doppelmaklers – einseitig nur für den Vermieter tätig ist.

Eckdaten Objektnr. 930

Art: Wohnung - Terrassenwohnung
Land: Österreich
Zustand: Neuwertig
Alter: Altbau
Gesamtmiete: 1.981,30
Kaltmiete (netto): 1.501,43 €
Kaltmiete: 1.801,18 €
Provision: Gemäß Erstauftraggeberprinzip bezahlt der Abgeber die Provision.
Betriebskosten: 242,25 €
MwSt Gesamt: 180,12 €
Wohnfläche: 90,00 m²
Nutzfläche: 121,00 m²
Zimmer: 2
Bäder: 1
WC: 1
Terrassen: 2
Heizwärmebedarf:  D  96,10 kWh/m²a
Immobilie merken Exposé

Ausstattung

Parkett, Gas, Etagenheizung, Wohnküche / offene Küche, Personenaufzug, Badewanne, Dusche, Kabel/Satelliten-TV


Immobilie anfragen


Ihre persönliche Beratung

Evelyne Rauscher

Olymp Realitäten GmbH

T +43 (1) 535 23 45

H +43 (664) 253 76 76

F +43 (1) 535 23 46