Exclusive fully furnished city apartment for temporary stays

Wohnung - Etage, 1090 Wien , Kinderspitalgasse


Alser Straße, Zimmermanngasse

Beschreibung der Immobilie

Exclusive fully furnished city apartment for temporary stays

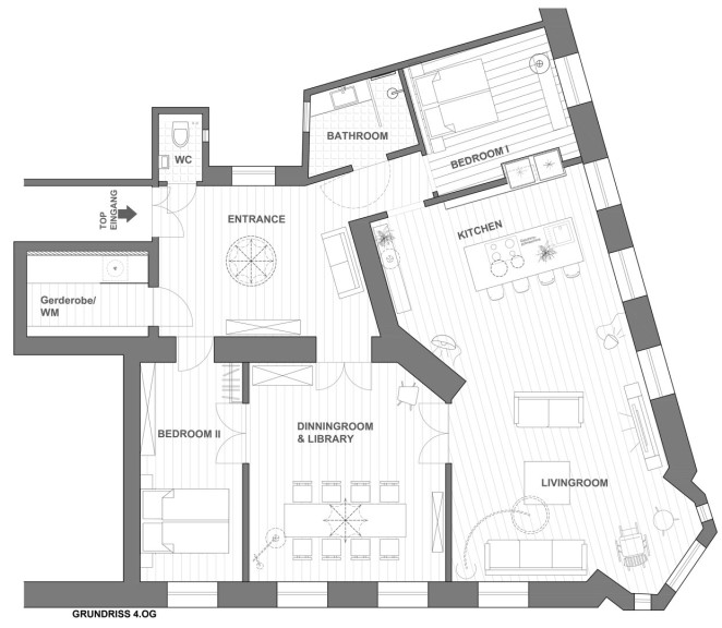
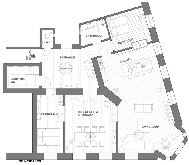
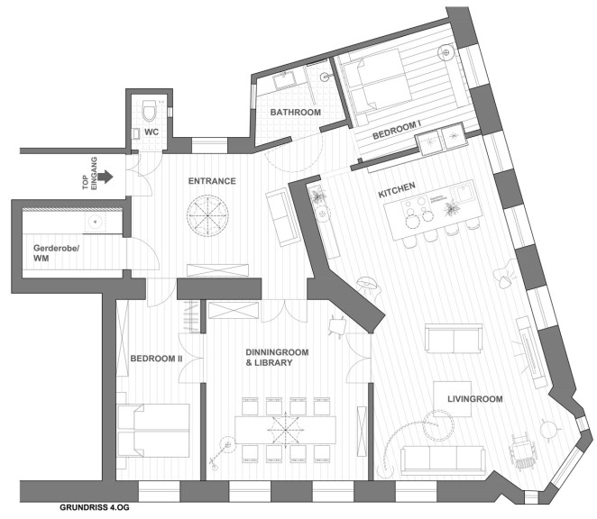
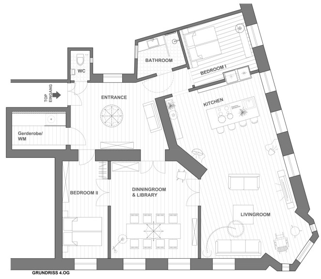
This exceptional apartment is located on the fourth floor with elevator access and offers approximately 140 m2 of elegant living space. It is available for short term rentals with a maximum duration of six months. High ceilings, large windows and a carefully selected interior concept create a sophisticated atmosphere that feels both luxurious and welcoming.



The spacious living room flows seamlessly into the modern kitchen featuring a central cooking island, perfect for preparing meals and entertaining guests. The adjoining dining area with its striking chandelier provides an impressive setting for hosting dinners or can serve as a stylish workspace. Two bedrooms offer comfort and privacy. The bathroom is modern and includes a walk in shower. The toilet is located separately. The apartment is rented fully furnished and ready to move in. Heating, electricity, furniture and high speed internet are included in the rent. Discreet underfloor heating throughout the apartment provides an even, comfortable warmth and enhances the overall living comfort.



This property is an ideal home for international residents, diplomats and business travellers looking for a premium temporary stay in Vienna.



The attached floor plan offers a clear overview of the layout.



Heating and electricity are not included in the rent and will be charged separately at a flat rate of 300 euro per month (based on an average use for 2 people).



I look forward to your enquiry and am happy to arrange a viewing at any time.

Infrastruktur / Entfernungen

Gesundheit
Arzt <250m
Apotheke <250m
Klinik <250m
Krankenhaus <250m

Kinder & Schulen
Schule <250m
Kindergarten <500m
Universität <500m
Höhere Schule <250m

Nahversorgung
Supermarkt <250m
Bäckerei <250m
Einkaufszentrum <1.000m

Sonstige
Geldautomat <250m
Bank <250m
Post <250m
Polizei <500m

Verkehr
Bus <250m
U-Bahn <250m
Straßenbahn <250m
Bahnhof <250m
Autobahnanschluss <3.000m

Angaben Entfernung Luftlinie / Quelle: OpenStreetMap

Eckdaten Objektnr. 1990/81

Art: Wohnung - Etage
Land: Österreich
Möbliert: Voll
Alter: Altbau
Gesamtmiete: 3.600,00
Kaltmiete (netto): 3.600,00 €
Kaltmiete: 3.600,00 €
Wohnfläche: 140,00 m²
Zimmer: 4
Bäder: 1
WC: 1
Immobilie merken Exposé

Ausstattung

Parkett, Fliesen, Gas, Fußbodenheizung, Einbauküche, Personenaufzug, Dusche


Immobilie anfragen


Ihre persönliche Beratung

Vienna Housing Service

Mag. Marc Slomovits

Vienna Housing Service

T 06648328757

H 06648328757