#SQ - SONNIGE AUSSICHTEN! WG-TAUGLICHE 4-ZIMMER-ALTBAUWOHNUNG - MÄRZSTRASSE

Wohnung , 1140 Wien


Die Wohnung befindet sich angrenzend zum 15. Bezirk in unmittelbarer Nähe zu Schönbrunn. Sie sind in wenigen Minuten beim Westbahnhof und somit bei der Mariahilfer Straße und gleichzeitig sehr verkehrsgünstig zur Westeinfahrt gelegen. Öffentliche Verkehrsanbindung: U3, Straßenbahn 10, 49 sowie Bus 10A, 12A Die Infrastruktur bietet Ihnen alles für den täglichen Bedarf. So erreichen Sie fußläufig in wenigen Minuten den nahegelegenen Meiselmarkt sowie diverse Supermärkte, Restaurants, Cafés, Schulen, Kindergärten, Banken, Apotheken, uvm.

Beschreibung der Immobilie

#SQ - SONNIGE AUSSICHTEN! WG-TAUGLICHE 4-ZIMMER-ALTBAUWOHNUNG - MÄRZSTRASSE

Lichterfüllter Wohnkomfort - Zum Verkauf gelangt eine helle 4-Zimmer-Wohnung im 2. OG in einem Altbau errichtet um die Jahrhundertwende, wenige Minuten zu Fuß entfernt von der nächsten U3-Station. Die Liegenschaft verfügt über einen Personenlift.



Im gesamten Gebäude werden insgesamt 30 Einheiten verkauft, ca. 35-145m². Davon sind 14 Wohnungen bestandsfrei. Zusätzlich können 4 sanierte Wohnungen im Dachgeschoß erworben werden sowie 7 befristet vermietete Wohnungen und 4 unbefristet vermietete Wohnungen - perfekt geeignet als Anlage. Weiters steht ein Lager mit Gartenfläche zum Verkauf. 



Nähere Informationen finden Sie unter: https://www.m124-wien.com



Eckdaten im Überblick:
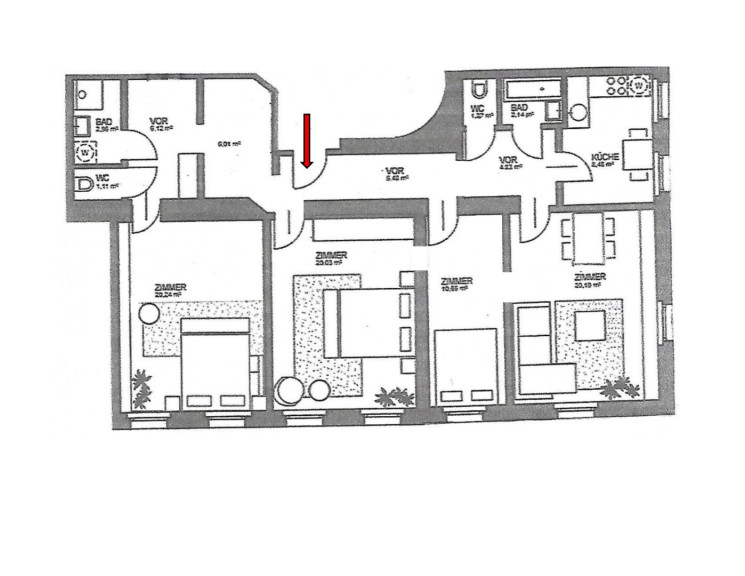
WNFL: ca. 109,52m² 

Zimmer: 4, separat begehbar

Küche: separat

Bad: 2

WC: 2

Abstellraum/ Wirtschaftsraum: 1

Lift: ja

Keller: ja

Zustand: durchschnittlich



Raumaufteilung:
Vorraum

Wohnzimmer

Küche

3 Schlafzimmer

2 Bäder (Dusche/ Wanne)

2 WC

Abstellraum/ Wirtschaftsraum



Kosten:
Kaufpreis: € 399.000,--

Provision: 3% vom KP zzgl. gesetzl. MwSt.


Hinweis gemäß Energieausweisvorlagegesetz: Ein Energieausweis wurde vom Eigentümer bzw. Verkäufer, nach unserer Aufklärung über die generell geltende Vorlagepflicht, sowie Aufforderung zu seiner Erstellung noch nicht vorgelegt. Daher gilt zumindest eine dem Alter und der Art des Gebäudes entsprechende Gesamtenergieeffizienz als vereinbart. Wir übernehmen keinerlei Gewähr oder Haftung für die tatsächliche Energieeffizienz der angebotenen Immobilie.


Wir weisen darauf hin, dass zwischen dem Vermittler und dem zu vermittelnden Dritten ein familiäres oder wirtschaftliches Naheverhältnis besteht.


Der Vermittler ist als Doppelmakler tätig.

Infrastruktur / Entfernungen

Gesundheit
Arzt <500m
Apotheke <500m
Klinik <1.000m
Krankenhaus <2.000m

Kinder & Schulen
Schule <500m
Kindergarten <500m
Universität <1.000m
Höhere Schule <1.500m

Nahversorgung
Supermarkt <500m
Bäckerei <500m
Einkaufszentrum <1.000m

Sonstige
Geldautomat <500m
Bank <500m
Post <500m
Polizei <1.000m

Verkehr
Bus <500m
U-Bahn <500m
Straßenbahn <500m
Bahnhof <500m
Autobahnanschluss <4.500m

Angaben Entfernung Luftlinie / Quelle: OpenStreetMap

Eckdaten Objektnr. 21095

Art: Wohnung
Land: Österreich
Baujahr: 1900
Alter: Altbau
Kaufpreis: 399.000,00
Kaufpreis / m²: 3.643,17 €
Provision: 3% des Kaufpreises zzgl. 20% USt.
Wohnfläche: 109,52 m²
Nutzfläche: 109,52 m²
Zimmer: 4
Bäder: 2
WC: 2
Keller: 1,50 m²
Immobilie merken Exposé

Ausstattung

Etagenheizung, Personenaufzug, Badewanne, Dusche


Immobilie anfragen


Ihre persönliche Beratung

STADTQUARTIER Home GmbH

Mona Taghavi

STADTQUARTIER Real Estate Group

T +43650 2311113

H +43650 2311113