++NEU++ Außergewöhnliche 3-Zimmer Altbauwohnung mit Balkon

Wohnung , 1200 Wien


Universumstraße

Beschreibung der Immobilie

++NEU++ Außergewöhnliche 3-Zimmer Altbauwohnung mit Balkon

Stilvoller Altbaucharme mit Balkon – 3-Zimmer-Wohnung im generalsanierten Stilhaus





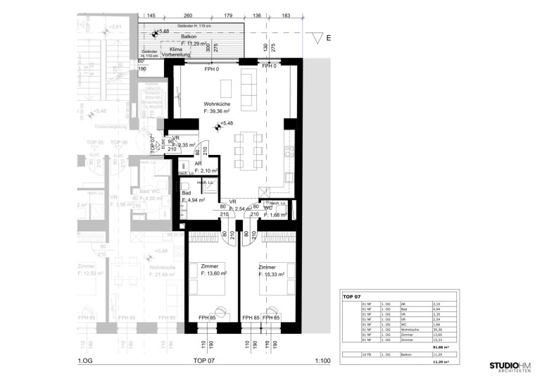
Zum Verkauf gelangt eine derzeit in Sanierung befindliche, optimal aufgeteilte 3-Zimmer-Altbauwohnung mit ca.  82m² Wohnfläche und Balkon in ausgezeichneter Lage der Brigittenau.



Diese stilvolle Einheit vereint klassischen Wiener Altbaucharme mit moderner Ausstattung und hochwertiger Sanierung – ideal als Eigennutzung oder Anlageobjekt.






Objektdetails



Wohnfläche: ca. 82 m²

Freiflächen: Balkon

Etage: 1. OG

Zimmer: 3

Fertigstellung: voraussichtlich Q4 2026

Zustand: Erstbezug nach Generalsanierung




Raumaufteilung



  • Vorraum
  • Wohnküche
  • Badezimmer mit Dusche und WC
  • Gäste-WC
  • Abstellraum
  • Zimmer
  • Zimmer
  • Balkon


(Siehe Plan und Beispielbilder einer bereits fertiggestellten Wohnung desselben Bauträgers.)




Ausstattung





Die Wohnung wird mit hochwertigen Materialien und Liebe zum Detail ausgestattet:




  • Edler Eichenparkettboden in allen Wohnräumen



  • Modern verflieste Nassräume mit Markenarmaturen



  • Fußbodenheizung in allen Räumen



  • Erstklassige Bau- und Ausstattungsqualität – genaue Beschreibung auf Anfrage verfügbar




Das gesamte Wohnhaus wird derzeit umfassend generalsaniert. Im Zuge dessen werden auch das Dachgeschoss ausgebaut und ein Aufzug eingebaut.



Einmaliger Lifterrichtungsbeitrag:



1.OG - 2.000 €

2.OG - 4.000 €

3.OG - 6.000 €

4.OG - 8.000 €

DG - 10.000 €






Lage & Infrastruktur





Die Universumstraße liegt im Herzen der Brigittenau – einem lebendigen Stadtteil zwischen Donaukanal und Donau, der urbanes Flair mit hoher Lebensqualität vereint.



In der unmittelbaren Umgebung finden sich zahlreiche Einkaufsmöglichkeiten, Restaurants, Cafés und Nahversorger. Für Erholung im Grünen sorgen der Augarten – eine der schönsten barocken Parkanlagen Wiens – sowie die nahe Donauinsel mit ihren weitläufigen Freizeit- und Erholungsflächen.






Verkehrsanbindung





Die Lage überzeugt durch eine hervorragende öffentliche Anbindung:




  • U6 – Dresdner Straße: wenige Gehminuten entfernt



  • Straßenbahn & Bus: Linien 2, 12, O, 5A, 37A



  • S-Bahn – Traisengasse: schnelle Verbindung ins Stadtzentrum und Umland



  • Individualverkehr: rasche Anbindung über Handelskai, Nordbrücke, A22, A4 und A23







Kaufpreis





EUR 519.000,-

Lifterrichtungsbeitrag:
2.000 €

Vertragserrichtung: Mag. Georg Kampas (1,5 % zzgl. Barauslagen und 20 % USt.)



Betriebskosten: ca. EUR 2,50/m² (exkl. Reparaturrücklage und Aufzug)

Die endgültige Wohnungsgröße kann geringfügig abweichen, da das Objekt noch nicht naturvermessen ist.






Hinweis



Gerne senden wir Ihnen auf Anfrage eine Übersicht aller noch verfügbaren Einheiten sowie die detaillierte Bau- und Ausstattungsbeschreibung zu.





Sollten Sie Fragen haben oder einen persönlichen Gesprächstermin wünschen, zögern Sie bitte nicht mich zu kontaktieren.



Zur Vereinbarung eines Besichtigungstermins lassen Sie uns bitte jedenfalls eine E-Mailanfrage zukommen!



Bitte achten Sie darauf, dass Sie diese Immobilie, nach Ihrer Anfrage bei Adonia Immobilien, nicht auch bei einem anderen Immobilienmaklerbüro anfragen! Vielen Dank!



Vielen Dank an unsere Kunden! Unser Unternehmen wurde bereits zum Besten Start Up und erneut als Qualitätsmakler 2018 ausgezeichnet!!



Nicht alle unsere Immobilien finden Sie auf den gängigen Plattformen. Wir freuen uns auf Ihren Besuch auf unserer Homepage unter adonia.at 



Wir weisen ausdrücklich auf unser wirtschaftliches Naheverhältnis mit dem Abgeber/ der Abgeberin hin!  Unsere gesetzlichen Pflichten als Doppelmakler werden dadurch jedoch nicht beeinträchtigt. Irrtum und Änderungen vorbehalten.



Alle hier veröffentlichen Informationen basieren auf den uns von dem Abgeber/ der Abgeberin zur Verfügung gestellten Informationen und wurden nicht selbst erhoben.



Der Schutz von personenbezogenen Daten ist uns wichtig und auch gesetzlich gefordert. Die Verarbeitung Ihrer personenbezogenen Daten erfolgt nach den datenschutzrechtlichen Bestimmungen. Auf unserer Homepage (unter Datenschutzinformation) finden Sie eine Übersicht die Sie über die wichtigsten Aspekte der Verarbeitung personenbezogener Daten informieren soll.


Wir weisen darauf hin, dass zwischen dem Vermittler und dem zu vermittelnden Dritten ein familiäres oder wirtschaftliches Naheverhältnis besteht.


Der Vermittler ist als Doppelmakler tätig.

Infrastruktur / Entfernungen

Gesundheit
Arzt <500m
Apotheke <500m
Klinik <500m
Krankenhaus <500m

Kinder & Schulen
Schule <1.000m
Kindergarten <500m
Universität <1.000m
Höhere Schule <1.500m

Nahversorgung
Supermarkt <500m
Bäckerei <500m
Einkaufszentrum <1.000m

Sonstige
Geldautomat <500m
Bank <500m
Post <500m
Polizei <500m

Verkehr
Bus <500m
U-Bahn <500m
Straßenbahn <500m
Bahnhof <500m
Autobahnanschluss <1.500m

Angaben Entfernung Luftlinie / Quelle: OpenStreetMap

Eckdaten Objektnr. 62654

Art: Wohnung
Land: Österreich
Zustand: Erstbezug
Kaufpreis: 519.000,00
Provision: 3% des Kaufpreises zzgl. 20% USt.
Wohnfläche: 81,88 m²
Zimmer: 3
Bäder: 1
WC: 1
Balkone: 1
Heizwärmebedarf: 35,20 kWh/m²a
fGEE: 0,95
Immobilie merken Exposé

Ausstattung

Estrichboden, Fliesen, Parkett, Zentralheizung, Personenaufzug, Westbalkon, Dusche


Immobilie anfragen


Ihre persönliche Beratung

Adonia Realitätenvermittlung GmbH

Luca Schelodetz

Adonia Immobilien GmbH

T 0664/910 15 40