++ Helle Wohnperle im 2. Liftstock – perfekte Öffi‑Anbindung & niedrige Heizkosten I MB IMMOBILIEN ++

Wohnung , 1230 Wien


zwischen U6 Erlaaerstraße und U6 Perfektastraße gelegen

Beschreibung der Immobilie

++ Helle Wohnperle im 2. Liftstock – perfekte Öffi‑Anbindung & niedrige Heizkosten I MB IMMOBILIEN ++

Ein Zuhause zum Ankommen – helle, gepflegte Wohnung im 2. Liftstock mit allem, was das Leben leichter macht!




  • Diese charmante und sehr gepflegte Wohnung im 2. Liftstock überzeugt auf den ersten Blick durch ihre freundliche Helligkeit, die schönen Parkettböden und ein Wohngefühl, das sofort Wärme und Geborgenheit vermittelt.



  • Die Lage ist ein echtes Highlight: Badner Bahn, U6 sowie der Bus 64A liegen praktisch „ums Eck“ – ideal für alle, die schnell und unkompliziert in die Stadt oder ins Umland möchten. Auch die Nahversorgung ist hervorragend: BILLA in Gehnähe, dazu Ärzte, Kindergarten und Schulen in unmittelbarer Umgebung.



  • Ein weiterer Pluspunkt: Im Haus kann eine Garage angemietet werden, was den Alltag besonders komfortabel macht.



  • Wohnung UND der Innenhof sind komplett lärmgeschützt aufgrund der Mauern rund um den Innenhof!



  • Kellerabteile sind im 1. Stock - sehr praktisch und angenehm



  • Das Gebäude selbst präsentiert sich in ausgezeichnetem Zustand: dank thermischer Sanierung und einem guten Energieausweis profitieren zukünftige Bewohner von niedrigen Heizkosten und einem angenehmen Wohnklima das ganze Jahr über.



    📞 Jetzt Besichtigung vereinbaren und Ihr neues Zuhause entdecken!



    Roswitha Adler

    0676/4554 267
    adler@mb-immobilien.at
    Bin (fast) jederzeit erreichbar! Einzelbesichtigung flexibel und spontan möglich.




    +++ Wir kümmern uns auch um Ihre Finanzierung! +++





    Wir weisen auf unser wirtschaftliches Nahverhältnis mit dem Abgeber und auf unsere Vermittlungstätigkeit als Doppelmakler hin.


    Die von uns gemachten Angaben beruhen auf Informationen und Mitteilungen durch Dritte, insbesondere durch die Verkäufer und sind daher ohne Gewähr.



Infrastruktur / Entfernungen

Gesundheit
Arzt <500m
Apotheke <500m
Klinik <2.000m
Krankenhaus <2.000m

Kinder & Schulen
Schule <1.000m
Kindergarten <500m
Universität <5.000m
Höhere Schule <4.500m

Nahversorgung
Supermarkt <500m
Bäckerei <1.500m
Einkaufszentrum <1.000m

Sonstige
Geldautomat <500m
Bank <1.500m
Post <1.500m
Polizei <1.500m

Verkehr
Bus <500m
U-Bahn <500m
Straßenbahn <3.000m
Bahnhof <500m
Autobahnanschluss <1.000m

Angaben Entfernung Luftlinie / Quelle: OpenStreetMap

Eckdaten Objektnr. 4545

Art: Wohnung
Land: Österreich
Baujahr: 1996
Alter: Neubau
Kaufpreis: 250.000,00
Betriebskosten: 190,00 €
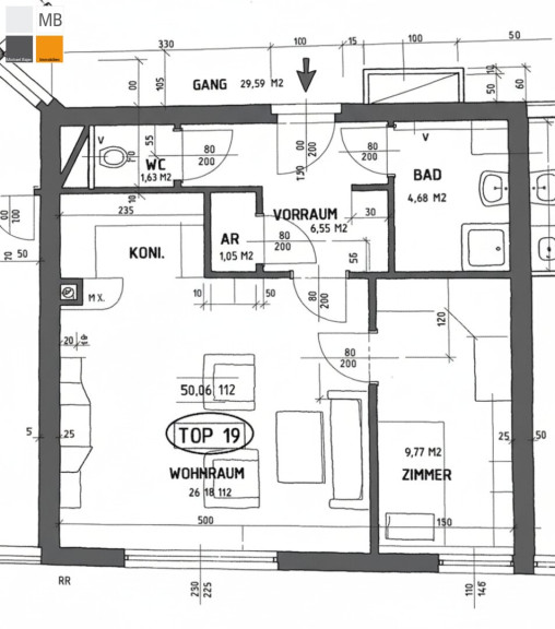
Wohnfläche: 52,00 m²
Zimmer: 2
Bäder: 1
WC: 1
Keller: 6,00 m²
Heizwärmebedarf:  B  42,30 kWh/m²a
Immobilie merken Exposé

Ausstattung

Fliesen, Laminatboden, Gas, Zentralheizung, Wohnküche / offene Küche, Personenaufzug, Badewanne, Wasch/Trockenraum


Immobilie anfragen


Ihre persönliche Beratung

Michael Bajer Immobilien

Roswitha Adler

Michael Bajer Immobilien

H +43 676 45 54 267