14. STOCKWERK - WOHNUNG MIT 41M2 TERRASSE

Wohnung - Terrassenwohnung, 1110 Wien , Geiselbergstraße 34-36


Ruhelage

Beschreibung der Immobilie

14. STOCKWERK - WOHNUNG MIT 41M2 TERRASSE

TERRASSENWOHNUNG im letzten Stockwerk - 14. Etage - ohne Schrägen




TRAUMHAFTER WEITBLICK ÜBER DIE STADT - RUHELAGE



Die Wohnung ist farbig/bunt ausgemalt - 

1 MONAT MIETFREISTELLUNG FÜR EIGENSTÄNDIGES AUSMALEN



Ein Bonitätsnachweis wird verlangt.
 



OBJEKT UND AUSSTATTUNG
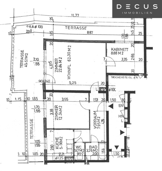
Gut eingeteilte 2,5 Zimmerwohnung im obersten Stockwerk eines im Jahr 1977 erbauten, gepflegten und großzügigen Neubaus.



63m2 Wohnfläche plus 41m2 sonnige Terrasse.



Ein zentrales Vorzimmer erschließt

das Wohn- und das Schlafzimmer,

sowie das Bad, das WC und die Küche.
Aus dem Wohnzimmer öffnet sich ein Kabinett.


Die Terrasse ist aus dem Wohnraum zu betreten und umschließt in beide Richtungen die Wohnung, west -und nordseitig - 41m2 Terrasse - ganztags sonnig! 


Die Küche ist mit einer einfachen Einbauküche ausgestattet.

Das Badezimmer hat Dusche und Waschbecken.
Das WC ist separat.



Die Fußböden sind Laminat und keramische Fliesen.

Die Heizung und die Warmwasserbereitung erfolgt mittels Fernheizung.



Ein trockener Kellerabteil steht zur Verfügung,

es ist ein Fahrradabstellraum vorhanden,

sowie eine sehr große Waschküche mit mehreren Geräten.



Es gibt eine Warteliste für PKW Stellplätze bei der Hausverwaltung.




MIETE
Gesamtmiete: rd. € 1.164,— inkl BK und USt.

Kaution: € 3.500,—



Mietvertragskosten: € 180,— 


Heizung: dzt. € 77   (Fernwärme)

Warmwasser: dzt. € 55  (Fernwärme)




LAGE UND UMFELD
Die infrastrukturelle Versorgung ist durch ein Einkaufsszentrum im Hause ideal.

Die Nähe Schnellbahnstation Geiselbergstraße und etliche Buslinien gewährleisten eine gute Verkehrsanbindung.




Wir weisen darauf hin, dass zwischen dem Vermittler und dem zu vermittelnden Dritten ein familiäres oder wirtschaftliches Naheverhältnis besteht.


Der Immobilienmakler erklärt, dass er – entgegen dem in der Immobilienwirtschaft üblichen Geschäftsgebrauch des Doppelmaklers – einseitig nur für den Vermieter tätig ist.

DECUS Immobilien GmbH – Wir beleben Räume

Für weitere Informationen und Besichtigungen steht Ihnen gerne Herr  Elemér Szüts unter der Mobilnummer +43 664 11 888 16und per E-Mail unter szuets@decus.at persönlich zur Verfügung.

www.decus.at | office@decus.at 

Wichtige Informationen

Bitte beachten Sie, dass per 13.06.2014 eine neue Richtlinie für Fernabsatz- und Auswärtsgeschäfte in Kraft getreten ist.

Ab 1.4.2024 entfallen die Grundbuchs- und Pfandrechtseintragungsgebühren vorübergehend für Eigenheime bis zu einer Bemessungsgrundlage von EUR 500.000,-. Voraussetzung ist das dringende Wohnbedürfnis, ausgenommen davon sind vererbte oder geschenkte Immobilien. Die Befreiung ist jedoch für den Einzelfall zu prüfen, DECUS Immobilien übernimmt hierzu keine Haftung.

Ab 01.07.2023 gilt das Erstauftraggeber-Prinzip bei Wohnungsmietverträgen, ausgenommen davon sind Dienst-/Natural-/Werkswohnungen. Wir dürfen gem. § 17 Maklergesetz darauf hinweisen, dass wir auf die Doppelmaklertätigkeit gem. § 5 Maklergesetz bei Wohnungsmietverträgen verzichten und nur noch einseitig tätig sind (bei den restlichen Vermittlungsarten nicht) und ein wirtschaftliches Naheverhältnis zu unseren Auftraggebern besteht. 

Im Falle eines Abschlusses mit Ihnen oder einem von Ihnen namhaft gemachten Dritten bzw. bei beidseitiger Willensübereinstimmung beträgt unser Honorar (lt. Honorarverordnung für Immobilienmakler) 2 Bruttomonatsmieten (BMM) bei Dienst-/Natural-/Werkwohnungen sowie Suchaufträgen, 3 BMM bei Gewerbe-, PKW-, Keller- und Lagermietverträgen sowie bei Kaufobjekten 3 % des Kaufpreises, zuzüglich der gesetzlichen Umsatzsteuer.

Dieses Objekt wird Ihnen unverbindlich und freibleibend angeboten. Oben angeführte Angaben basieren auf Informationen und Unterlagen des Eigentümers und sind unsererseits ohne Gewähr.

Nähere Informationen sowie unsere AGBs und die Nebenkostenübersichtsblatt finden Sie auf unserer Homepage www.decus.at unter "Service" - "Rechtliches zum FAGG" sowie im Anhang der zugesendeten Objekt-Exposés!

Infrastruktur / Entfernungen

Gesundheit
Arzt <200m
Apotheke <175m
Klinik <200m
Krankenhaus <2.350m

Kinder & Schulen
Schule <100m
Kindergarten <275m
Universität <875m
Höhere Schule <1.550m

Nahversorgung
Supermarkt <100m
Bäckerei <150m
Einkaufszentrum <875m

Sonstige
Geldautomat <625m
Bank <625m
Post <625m
Polizei <650m

Verkehr
Bus <125m
U-Bahn <700m
Straßenbahn <125m
Bahnhof <200m
Autobahnanschluss <425m

Angaben Entfernung Luftlinie / Quelle: OpenStreetMap

Eckdaten Objektnr. 1151839

Art: Wohnung - Terrassenwohnung
Land: Österreich
Baujahr: 1977
Zustand: Gepflegt
Alter: Neubau
Gesamtmiete: 1.163,62
Kaltmiete (netto): 889,00 €
Kaltmiete: 1.057,84 €
Provision: Gemäß Erstauftraggeberprinzip bezahlt der Abgeber die Provision.
Betriebskosten: 168,84 €
MwSt Gesamt: 105,78 €
Wohnfläche: 63,00 m²
Nutzfläche: 104,00 m²
Gesamtfläche: 104,00 m²
Zimmer: 2,50
Bäder: 1
WC: 1
Balkone: 1
Terrassen: 1
Heizwärmebedarf:  C  91,80 kWh/m²a
fGEE:  D  2,10
Immobilie merken Exposé

Ausstattung

Fliesen, Parkettboden, Zentralheizung, Einbauküche, Personenaufzug, Westbalkon, Dusche, Wasch/Trockenraum


Immobilie anfragen


Ihre persönliche Beratung

DECUS Immobilien GmbH

Elemér Szüts

DECUS Immobilien GmbH

T +43 664 11 888 16

H +43 664 11 888 16

F +43 1 35 600 10