#FamilyFirstSale! Höchst verführerisch: Exklusive 4-Zimmer-Dachgeschoßwohnung im Zentrum Schwechats - nachhaltig, hochwertig & unwiderstehlich!

Wohnung - Dachgeschoß, 2320 Schwechat , Weglgasse


Willkommen in DAS WEGL - Hier finden Sie Ihre neue Traumwohnung in einer ruhigen und dennoch bestens angebundenen Wohnlage in Schwechat bei Wien! Genießen Sie das Beste aus zwei Welten: die entspannte Atmosphäre einer charmanten Wohngegend und die schnelle Verbindung nach Wien sowie zum Flughafen. Die Schnellbahnstation (13 min nach Wien Mitte-Landstraße), Einkaufsmöglichkeiten, Restaurants und viele weitere wichtige Örtlichkeiten des täglichen Bedarfs befinden sich nur einen Katzensprung entfernt. Ob gemütlicher Spaziergang in einem Naherholungsgebiet oder urbanes Leben - diese Lage bietet Flexibilität und Lebensqualität in perfekter Balance!

Beschreibung der Immobilie

#FamilyFirstSale! Höchst verführerisch: Exklusive 4-Zimmer-Dachgeschoßwohnung im Zentrum Schwechats - nachhaltig, hochwertig & unwiderstehlich!

DAS WEGL – Verwirklichen Sie Ihren Traum vom Eigentum in einer angenehmen Wohngegend, umgeben von Grün und doch so nah der Wiener Metropole!



Hier ist für jede(n) etwas dabei!



In diesem großartigen Neubauprojekt finden Sie Ihre neue Traumwohnung mit 2 bis 4 Zimmern, deren Größen zwischen 52 und 95 m² variieren. Alle Wohneinheiten werden mit privaten Freibereichen, darunter Eigengärten, Terrassen, Loggien und Balkone ausgestattet. Hier finden Sie ein Zuhause, das Erholung und Entspannung garantiert.



Die Lage des Projekts verbindet dabei ruhiges Wohnen in urbaner Nähe – perfekt für Stadtliebhaber und Vielreisende!



Facts: 16 Traumwohnungen I attraktive Kaufpreise für Anleger und Eigennutzer I Tiefgarage I hochwertige Ausstattung I nachhaltige Ausführung I Barrierefreiheit im gesamten Wohnhaus





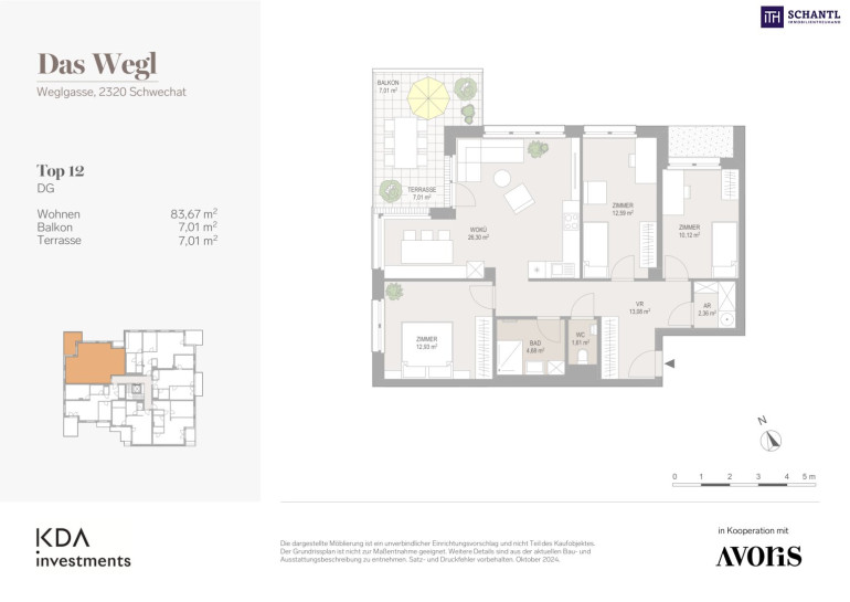
Exzellent durchdachte Raumaufteilung Dachgeschoßwohnung Top 12:



  • weitläufiger Vorraum mit ausreichend Platz für eine große Garderobe
  • getrennt begehbares, hochwertig ausgeführtes WC mit Handwaschbecken
  • stilvolles Badezimmer mit bodenebener Dusche, Waschtisch und viel Raum für Ordnung
  • praktischer Abstellraum mit Waschmaschinen- & Trockneranschluss
  • stilvoll organisierte Wohnküche mit hellen Glasfronten, die Kochen und Wohnen harmonisch vereint
  • perfekt geschnittenes Schlafzimmer mit reichlich Fläche für ein geräumiges Schranksystem
  • zwei ideal angelegte Kinderzimmer bzw. Home-Office mit Blick ins eigene Grün
  • perfekt angelegte Terrasse mit Blick ins Grüne  




Wohnfläche: ca. 83,67 m² + Balkon/Terrasse: ca. 14,02 m² + Kellerabteil: ca. 2,30 m²



Kaufpreis Anleger (#FamilyFirstSale-Preis): € 458.000.- netto + UST



Kaufpreis Eigennutzer (#FamilyFirstSale-Preis): € 515.000.-



Kaufpreis Garagenplatz: € 27.000.-



Bezug: März 2026



WOHNBAUFÖRDERUNG iHv. € 13.000 + FAMILIENFÖRDERUNG (bis zu € 36.000) VOM LAND NÖ MÖGLICH!



(#FamilyFirstSale-Aktion gültig bei Abgabe eines Kaufanbots bis inkl. 31.12.2025)





Alle lichtdurchfluteten Wohnungen verfügen über großzügige Freiflächen und werden mit sorgfältig ausgewählten Materialien ausgestattet, welche ihnen einen schicken sowie auch zeitlosen Look verleihen!





Auszug Bau- und Ausstattungsbeschreibung:



• Beheizung & Warmwasser mittels Luft/Wasser-Wärmepumpen



• Heizen und Kühlen über Fußboden-System (im DG: Klimaanlage)



PV-Anlage am extensiv begrünten Dach mit 15 kWp – für den umweltfreundlichen Betrieb der Wärmepumpen



• Tiefgarage mit 24 Stellplätzen; Möglichkeit, jeden Stellplatz mit einer E-Ladestation nachzurüsten (gegen Aufpreis)



• Überdachter Fahrradabstellplatz vor dem Haus, Kinderwagen-, Fahrradabstell- & Müllraum, Einlagerungsräume, Paketempfangsboxen



• Barrierefreiheit im gesamten Haus



Holzdielen Eiche geölt



• Hochwertige Sanitärgegenstände & Marken-Produkte in den Bädern



• Feinsteinzeugfliesen 30x60 cm in allen Nassräumen



• ESG-Glastrennwände bei Duschen & Wannen



• Fenster & Fenstertüren mit 3-fach Isolier-Verglasung (teils raumhohe Verglasungen)



Elektrisch ansteuerbarer Sonnenschutz an Fenstern & Fenstertüren





Machen Sie den ersten Schritt zu Ihrem neuen Zuhause und Ihrem neuen Glück! Sichern Sie sich gleich Ihre Wunsch-Wohnung und die Vorfreude kann beginnen...



Der Baustart ist bereits erfolgt!





Top 1, 6, 8, 10 und 14 haben bereits glückliche Besitzer gefunden!





Wir unterstützen Sie gerne bei der Finanzierung und finden individuelle Lösungen mit den besten Konditionen am Markt!



Worauf warten Sie noch? Wir beraten Sie gerne und beraten Sie über alle verfügbaren Einheiten!



www.schantl-ith.at





Bei konkretem Interesse senden wir Ihnen sehr gerne weiterführende Dokumente zu, wie:



o Grundbuchauszug



o Wohnungseigentumsvertrag



o Nutzwertgutachten



o etc...





Unser Service für Sie: Wenn Sie sich für diese Immobilie entschieden haben, begleiten wir Sie gerne vom Kaufanbot weg inkl. Klärung von Sonderwünschen und der Vertragsunterzeichnung über die Wohnungsübergabe bis hin zu diversen Ummeldungen wie Strom und Gas. Entsprechende Formulare oder auch Meldezettel stellen wir Ihnen sehr gerne zur Verfügung.



Gerne unterstützen wir Sie auch bei der Finanzierung Ihres Traumobjekts und finden mit unseren langjährigen Partnern die besten Konditionen für Sie.



Vereinbaren Sie noch heute einen Termin, wir beraten Sie gerne!



www.schantl-ith.at


Wir weisen darauf hin, dass zwischen dem Vermittler und dem zu vermittelnden Dritten ein familiäres oder wirtschaftliches Naheverhältnis besteht.


Der Vermittler ist als Doppelmakler tätig.

Infrastruktur / Entfernungen

Gesundheit
Arzt <500m
Apotheke <500m
Klinik <500m
Krankenhaus <6.750m

Kinder & Schulen
Schule <250m
Kindergarten <250m
Universität <7.250m
Höhere Schule <7.750m

Nahversorgung
Supermarkt <500m
Bäckerei <500m
Einkaufszentrum <500m

Sonstige
Geldautomat <500m
Bank <500m
Post <500m
Polizei <500m

Verkehr
Bus <250m
U-Bahn <5.250m
Straßenbahn <1.500m
Bahnhof <250m
Autobahnanschluss <750m
Flughafen <7.500m

Angaben Entfernung Luftlinie / Quelle: OpenStreetMap

Eckdaten Objektnr. 292069

Art: Wohnung - Dachgeschoß
Land: Österreich
Baujahr: 2026
Zustand: Erstbezug
Alter: Neubau
Kaufpreis: 458.000,00
Kaufpreis / m²: 5.050,73 €
Provision: 3% des Kaufpreises zzgl. 20% USt.
Wohnfläche: 83,67 m²
Nutzfläche: 90,68 m²
Zimmer: 4
Bäder: 1
WC: 1
Balkone: 1
Terrassen: 1
Keller: 2,30 m²
Heizwärmebedarf:  B  25,60 kWh/m²a
fGEE:  A+  0,68
Immobilie merken Exposé

Ausstattung

Fliesen, Parkett, Fußbodenheizung, Zentralheizung, Personenaufzug, Badewanne, Dusche, DV-Verkabelung, Kabel/Satelliten-TV, Garage


Immobilie anfragen


Ihre persönliche Beratung

Schantl ITH Immobilientreuhand GmbH

Patrick Spreitzer, BA, MA

Schantl ITH Immobilientreuhand GmbH

T 0043 664 3070009

H 0043 677 61778499