Erstbezug 3-Zimmer Wohnung mit Balkon, Nähe Aumannplatz

Wohnung , 1180 Wien


Beschreibung der Immobilie

Erstbezug 3-Zimmer Wohnung mit Balkon, Nähe Aumannplatz

Zu Verkauf gelangt eine helle 3-Zimmer Wohnung mit Balkon im 18. Wiener Gemeindebezirk.



Mit dem Projekt Marie, einem charmant modernisierten und ausgebautem Gründerzeithaus mit hochwertiger Ausstattung, entsteht ein Ort, der Altbaucharme mit moderner Wohnqualität verbindet. Helle Räume, kombiniert mit eleganten Details, sowie ruhig gelegene Terrassen und Balkone schaffen eine besondere Wohnatmosphäre. In diesem Wohnprojekt stehen 9 hochwertige Wohnungenmit 43 bis 123 m² sowie ein charmantes Town House zum Verkauf. 



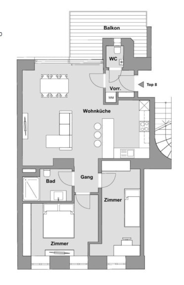
Diese ca. 75 m² große Wohnung befindet sich im 3. Liftstock und gliedert sich in einen Vorraum, eine Wohnküche, ein Badezimmer, zwei Schlafzimmer und eine separate Toilette.



Der Vorraum bietet Platz für eine Garderobe und verfügt über eine praktische Nische mit Anschluss für eine Waschmaschine. Von hier aus gelangt man sowohl in die separate Gäste-Toilette mit Fenster und Handwaschbecken als auch in die großzügige Wohnküche. Diese öffnet sich zu einem ca. 9 m² großen, süd- und hofseitig ausgerichteten Balkon. Die Küchenanschlüsse werden individuell nach Käuferwunsch vorbereitet.Die beiden weiteren Zimmer sind zentral begehbar. Das moderne Badezimmer ist mit Dusche, WC und Waschbecken ausgestattet.



Alle Wohnräume sind mit hochwertigem Eichenparkett ausgestattet, während das Badezimmer mit zeitlos eleganten Fliesen versehen ist.



In der gesamten Wohnung sorgt eine Fußbodenheizung für angenehmen Komfort. Im Keller befindet sich eine neu errichtete Heizzentrale (Luftwärmepumpe). Zusätzlichen Stauraum bietet ein großzügiges Kellerabteil. Im Haus stehen zudem ein Kinderwagen- sowie ein Fahrradabstellraum zur Verfügung.



Die Liegenschaft befindet nur wenige Minuten vom Aumannplatz und dem Kutschkermarkt entfernt. In unmittelbarer Gehweite befinden sich diverse Einkaufsmöglichkeiten wie Supermärkte etc. sowie eine optimale öffentliche Verkehrsanbindung durch die Straßenbahnen (9, 40 und 41), der Buslinie (10A) und der S-Bahn (S45) sowie die U-Bahn Linie 6. Die Parks wie der Marie Ebner-Eschenbach-Park, der Türkenschanzpark, der Schubertpark oder der Postsportplatz bieten vielfältige Freizeitmöglichkeiten. Kindergärten und Schulen befinden sich in unmittelbarer Nähe.



Die Vertragserrichtung und Treuhandabwicklung ist an die Kanzlei ENGINDENIZ Rechtsanwälte für Immobilienrecht GmbH (FN 559759a) 1010 Wien, Marc-Aurel-Straße 6/5 gebunden.

Die Kosten betragen 1,5% zzgl. 20% Ust und Barauslagen, sowie zzgl. der Notarkosten für die erforderlichen Unterschriftsbeglaubigungen.



Überzeugen Sie sich selbst von dieser Immobilie.



Gerne lassen wir Ihnen bei ernsthaftem Interesse – vor Kaufanbotlegung – weitere vertrauliche Unterlagen zu dieser Liegenschaft zukommen, welche nicht veröffentlicht werden dürfen.



Für Besichtigungen und nähere Informationen stehen wir Ihnen gerne zur Verfügung!



Frau Marie-Louise Eisenburger

national - Tel: 0676 605 9800
international - Tel.: +43 676 605 9800
e-mail: eisenburger@lifestyle-properties.at


Wir weisen darauf hin, dass zwischen dem Vermittler und dem zu vermittelnden Dritten ein familiäres oder wirtschaftliches Naheverhältnis besteht.


Der Vermittler ist als Doppelmakler tätig.

Infrastruktur / Entfernungen

Gesundheit
Arzt <500m
Apotheke <500m
Klinik <500m
Krankenhaus <1.000m

Kinder & Schulen
Schule <500m
Kindergarten <500m
Universität <1.000m
Höhere Schule <500m

Nahversorgung
Supermarkt <500m
Bäckerei <500m
Einkaufszentrum <1.000m

Sonstige
Geldautomat <500m
Bank <500m
Post <500m
Polizei <500m

Verkehr
Bus <500m
U-Bahn <1.000m
Straßenbahn <500m
Bahnhof <1.000m
Autobahnanschluss <2.500m

Angaben Entfernung Luftlinie / Quelle: OpenStreetMap

Eckdaten Objektnr. 5146

Art: Wohnung
Land: Österreich
Baujahr: 1885
Zustand: Erstbezug
Alter: Altbau
Kaufpreis: 680.000,00
Wohnfläche: 75,19 m²
Zimmer: 3
Bäder: 1
WC: 2
Balkone: 1
Heizwärmebedarf:  B  44,90 kWh/m²a
fGEE: 0,95
Immobilie merken Exposé

Ausstattung

Fliesen, Parkett, Fußbodenheizung, Personenaufzug


Immobilie anfragen


Ihre persönliche Beratung

IM Lifestyle Properties GmbH

Marie-Louise Eisenburger

Lifestyle Properties

T +43 1 512 14 84

H +43 676 6059800