++NEU++ Bestlage im Servitenviertel, 4-Zimmer + zwei Balkone ++GRÜNRUHELAGE++

Wohnung , 1090 Wien , Porzellangasse


Porzellangasse

Beschreibung der Immobilie

++NEU++ Bestlage im Servitenviertel, 4-Zimmer + zwei Balkone ++GRÜNRUHELAGE++

Zur befristeten Vermietung gelangt eine sehr helle, toll aufgeteilte ca. 140 m² große Wohnung im 5. Stock eines sehr gepflegten Neubaus, in absoluter Bestlage im 09. Wiener Gemeindebezirk, inmitten des begehrten Servitenviertels.



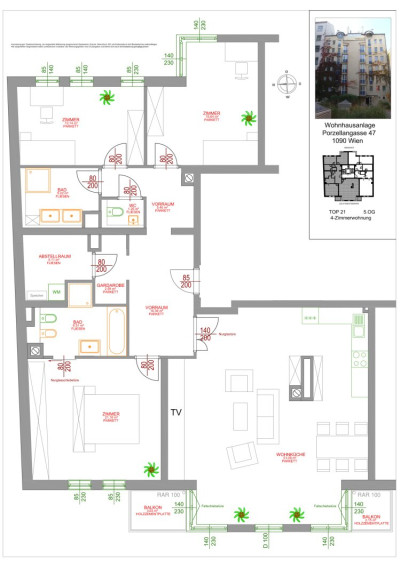
Diese wunderschöne ca. 140 m² große Neubauwohnung mit zwei kleinen Balkonen gliedert sich in einen großzügigen Wohnbereich mit Küche, drei Schlafzimmer, zwei Badezimmer, einen großzügigen Abstellraum und ein getrenntes WC.



****ZUR VEREINBARUNG eines BESICHTIGUNGSTERMINS lassen SIE uns BITTE JEDENFALLS eine schriftliche ANFRAGE am besten gleich mit Ihren TERMINWÜNSCHEN zukommen! (wir antworten verlässlich am selben Tag!)****



Raumaufteilung: 


optimaler Grundriss, GRÜNRUHELAGE!



  • Vorraum 
  • getrenntes WC 
  • Abstellraum
  • Schlafzimmer 
  • Schlafzimmer
  • Schlafzimmer
  • Badezimmer mit Wanne
  • Badezimmer mit Dusche
  • Wohnzimmerküche - HINWEIS: es wird auf Kosten des Eigentümers bis voraussichtlich Ende Jänner eine neue Küche (siehe Referenzbild) eingebaut.
  • zwei kleine Balkone


 (siehe Plan und Beispielbilder einer baugleichen Nachbarwohnung im Haus)



Zustand/Ausstattung:
Die Wohnung befindet sich in einem gutem Zustand. Das Objekt ist hochwertig ausgestattet:



  • hochwertige Badezimmer
  • Parkett
  • uvm.


Haus:
Die Wohnung befindet sich im 5.Stock eines sehr gepflegtenNeubau-Mehrparteienhauses und ist über einen Lift erreichbar.

 

Verkehrsanbindung:
Die Wohnung ist über die U-4 Station Roßauer Lände sowie die Straßenbahnlinien D, 1, 5, 33 sehr gut öffentlich angebunden.

 

Preis:
Die monatliche Gesamtmiete (inkl. Betriebskosten, Heizkosten und Ust.)  beträgt 3.599,- €

Die Vermietung erfolgt befristet auf 5 Jahre.

Kaution: 3 Brutto-Monatsmieten



Mietbeginn: 01.08.2025





Bitte achten Sie darauf, dass Sie diese Immobilie, nach Ihrer Anfrage bei Adonia Immobilien, nicht auch bei einem anderen Immobilienmaklerbüro anfragen! Vielen Dank!!



Lage: 



Die mietgegenständliche Wohnung befindet sich in absoluter Bestlage, inmitten des Servitenviertels, in der Porzellangasse, 1090 Wien.

 

Fußläufig sind in der Umgebung zahlreiche Geschäfte des täglichen Bedarfs (Lebensmittel, Restaurants, Bekleidungsgeschäfte, Apotheken, Banken) sowie auch diverse Arztpraxen binnen weniger Minuten zu erreichen.

 

Die Lage kann als sehr gut bezeichnet werden. Direkt vor der Haustür befinden sich die Straßenbahnstationen 1 (Prater Hauptallee – Stefan-Fadinger-Platz) und D (Hauptbahnhof Ost - Nußdorf) sowie die Buslinie N 38. Somit kann die Wiener Innenstadt innerhalb von 10 Minuten erreicht werden. Auch die U4-Station Roßauer Lände und die Straßenbahnlinien 5 und 33 ermöglichen garantieren eine hohe Mobilität. Bereits nach 4 Minuten Fußmarsch erreicht man diese Haltestellen, die somit auch eine exzellente Anbindung ermöglichen.

 

Kindergärten, Schulen und Universitäten sind mit den obengenannten öffentlichen Verkehrsmitteln sehr gut angebunden. Die Wohnung liegt sehr nahe dem AKH, weshalb die Wohngegend bei Medizinstudenten, Ärzten sowie auch Krankenschwestern/pflegern sehr beliebt ist.

 

Die Wohnung liegt direkt neben dem Gartenpalais Liechtenstein somit mitten im Herzen des 9. Bezirkes. Durch die exzellente öffentliche Anbindung, können diverse Parks und Freizeitanlagen (Augarten, Donauinsel) in kürzester Zeit erreicht werden.

 



Das Kleingedruckte:



Wir weisen ausdrücklich auf unser wirtschaftliches Naheverhältnis mit dem Abgeber/ der Abgeberin hin! 



Wir sind in unserer Position als Vermittler als Doppelmakler tätig. 



Für die Erstellung des Mietvertrags in ein Honorar in der Höhe von € 155 an die Hausverwaltung zu entrichten.



Alle hier veröffentlichen Informationen basieren auf den uns von dem Abgeber/ der Abgeberin zur Verfügung gestellten Informationen und wurden nicht selbst erhoben.



Unsere Allgemeinen Geschäftsbedingungen können Sie sowohl in dem Ihnen zugesandten Expose einsehen als auch auf unserer Homepage. Wir weisen ausdrücklich darauf hin, dass diese AGBs Vertragsinhalt werden.



Der Schutz von personenbezogenen Daten ist uns wichtig und auch gesetzlich gefordert. Die Verarbeitung Ihrer personenbezogenen Daten erfolgt nach den datenschutzrechtlichen Bestimmungen. Auf unserer Homepage (unter Datenschutzinformation) finden Sie eine Übersicht die Sie über die wichtigsten Aspekte der Verarbeitung personenbezogener Daten informieren soll.



Irrtum und Änderungen vorbehalten. 


Wir weisen darauf hin, dass zwischen dem Vermittler und dem zu vermittelnden Dritten ein familiäres oder wirtschaftliches Naheverhältnis besteht.


Der Immobilienmakler erklärt, dass er – entgegen dem in der Immobilienwirtschaft üblichen Geschäftsgebrauch des Doppelmaklers – einseitig nur für den Vermieter tätig ist.

Infrastruktur / Entfernungen

Gesundheit
Arzt <250m
Apotheke <250m
Klinik <250m
Krankenhaus <1.250m

Kinder & Schulen
Schule <250m
Kindergarten <500m
Universität <250m
Höhere Schule <500m

Nahversorgung
Supermarkt <250m
Bäckerei <250m
Einkaufszentrum <2.250m

Sonstige
Geldautomat <250m
Bank <250m
Post <500m
Polizei <500m

Verkehr
Bus <250m
U-Bahn <500m
Straßenbahn <250m
Bahnhof <500m
Autobahnanschluss <2.000m

Angaben Entfernung Luftlinie / Quelle: OpenStreetMap

Eckdaten Objektnr. 62628

Art: Wohnung
Land: Österreich
Zustand: Gepflegt
Alter: Neubau
Gesamtmiete: 3.599,00
Kaltmiete (netto): 2.688,42 €
Kaltmiete: 3.013,27 €
Provision: Gemäß Erstauftraggeberprinzip bezahlt der Abgeber die Provision.
Betriebskosten: 262,11 €
Heizkosten: 237,01 €
MwSt Gesamt: 348,72 €
Wohnfläche: 139,42 m²
Zimmer: 4
Bäder: 2
WC: 2
Balkone: 2
Heizwärmebedarf: 79,60 kWh/m²a
fGEE: 2,99
Immobilie merken Exposé

Ausstattung

Fliesen, Parkett, Fernwärme, Einbauküche, Personenaufzug, Badewanne, Dusche


Immobilie anfragen


Ihre persönliche Beratung

Adonia Realitätenvermittlung GmbH

Adonia Immobilien

Adonia Immobilien GmbH

T +43 676 637 24 96