Preisreduktion! Stilvoll wohnen zwischen Altbaucharme & modernem Komfort – 4-Zimmer-Traum mit Balkon, Grünblick & Top-Infrastruktur

Wohnung - Etage, 1120 Wien , Rosasgasse


Die Wohnung in der Rosasgasse 1120 Wien besticht durch ihre zentrale Lage und hervorragende Infrastruktur. In unmittelbarer Nähe finden Sie alles, was das tägliche Leben erleichtert: Supermärkte, Bäckereien, Ärzte, Apotheken, Kliniken und Bildungseinrichtungen Die hervorragende Anbindung an öffentliche Verkehrsmittel wie U-Bahn und Straßenbahn macht die Erreichbarkeit der Innenstadt und weiterer Stadtteile besonders unkompliziert.

Beschreibung der Immobilie

Preisreduktion! Stilvoll wohnen zwischen Altbaucharme & modernem Komfort – 4-Zimmer-Traum mit Balkon, Grünblick & Top-Infrastruktur

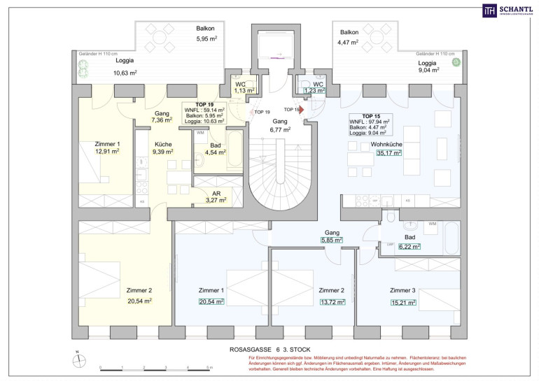
Willkommen in Ihrem neuen Zuhause im Herzen von Wien! Diese großzügige und neu sanierte Wohnung in der Rosasgasse bietet Ihnen all das, was Sie für ein komfortables und stilvolles Leben benötigen. Mit einer beeindruckenden Fläche von 97,94 m² und vier lichtdurchfluteten Zimmern ist dies der ideale Rückzugsort für Familien oder Paare, die den Puls der Stadt lieben und gleichzeitig eine ruhige Oase suchen.



Die Wohnung besticht durch ihren modernen Stil und die durchdachte Raumaufteilung. Jedes Zimmer bietet genügend Platz für Ihre individuellen Einrichtungsideen, wodurch Sie sich schnell heimisch fühlen werden. Beiliegend finden Sie zwei Varianten wie Sie die Schlafzimmer aufteilen können - je nach Lebenssituation kann durch eine zusätzliche Wand ein drittes Schlafzimmer geschaffen werden.



Die modernen Materialien und Ausstattungen sorgen dafür, dass Sie sich in Ihrem neuen Zuhause rundum wohlfühlen werden.



Highlights auf einen Blick




  • Stilvolle Altbauwohnung mit moderner Ausstattung



  • 4 Zimmer – ideal für Familien oder Paare



  • Heller Wohnbereich mit Zugang zum hofseitigen Balkon



  • Modernes Heizsystem mit Luftwärmepumpe und Fußbodenheizung



  • Badezimmer mit Badewanne & WC plus separates Gäste-WC



  • Elektrische Außenjalousien für optimalen Licht- und Hitzeschutz



  • zentrale Lage im 12. Bezirk






Die Lage könnte nicht besser sein! Die hervorragende Verkehrsanbindung ermöglicht es Ihnen, schnell und bequem alle Teile Wiens zu erreichen. Ob mit der U4 oder der Straßenbahn – in wenigen Minuten sind Sie an Ihrem Ziel. Auch der Bahnhof ist in der Nähe, was Ihnen zusätzliche Reisemöglichkeiten bietet.





Kaufpreis: 649.000 € schlüsselfertig



Wohnfläche 97,94m² + 13,51 m² Außenflächen





Überzeugen Sie sich selbst bei einer Besichtigung – wir freuen uns auf Ihre Anfrage!





Unser Service für Sie: Wenn Sie sich für diese Immobilie entschieden haben, begleiten wir Sie gerne vom Kaufanbot weg inkl. Klärung von Sonderwünschen und der Vertragsunterzeichnung über die Wohnungsübergabe bis hin zu diversen Ummeldungen wie Strom und Gas. Entsprechende Formulare oder auch Meldezettel stellen wir Ihnen sehr gerne zur Verfügung.



Gerne unterstützen wir Sie auch bei der Finanzierung Ihres Traumobjekts und finden mit unseren langjährigen Partnern die besten Konditionen für Sie.



Vereinbaren Sie noch heute einen Termin, wir beraten Sie gerne!



www.schantl-ith.at


Wir weisen darauf hin, dass zwischen dem Vermittler und dem zu vermittelnden Dritten ein familiäres oder wirtschaftliches Naheverhältnis besteht.


Der Vermittler ist als Doppelmakler tätig.

Infrastruktur / Entfernungen

Gesundheit
Arzt <250m
Apotheke <500m
Klinik <250m
Krankenhaus <1.750m

Kinder & Schulen
Schule <250m
Kindergarten <250m
Universität <500m
Höhere Schule <1.000m

Nahversorgung
Supermarkt <250m
Bäckerei <250m
Einkaufszentrum <250m

Sonstige
Geldautomat <250m
Bank <250m
Post <500m
Polizei <250m

Verkehr
Bus <250m
U-Bahn <250m
Straßenbahn <1.000m
Bahnhof <250m
Autobahnanschluss <2.750m

Angaben Entfernung Luftlinie / Quelle: OpenStreetMap

Eckdaten Objektnr. 292038

Art: Wohnung - Etage
Land: Österreich
Baujahr: 1891
Zustand: Modernisiert
Alter: Altbau
Kaufpreis: 649.000,00
Provision: 3% des Kaufpreises zzgl. 20% USt.
Betriebskosten: 168,24 €
MwSt Gesamt: 22,02 €
Wohnfläche: 97,94 m²
Zimmer: 4
Bäder: 1
WC: 1
Balkone: 1
Heizwärmebedarf:  C  62,70 kWh/m²a
fGEE:  C  1,17
Immobilie merken Exposé

Ausstattung

Parkett, Fliesen, Fußbodenheizung, Personenaufzug, Nordbalkon, Badewanne


Immobilie anfragen


Ihre persönliche Beratung

Schantl ITH Immobilientreuhand GmbH

Marlies Sprinzl

Schantl ITH Immobilientreuhand GmbH

T +43 664 30 7000 9

H +436609094554