EXKLUSIVER ERSTBEZUG in MISTELBACH - in TOP LAGE!

Wohnung - Dachgeschoß, 2130 Mistelbach


Diese attraktive Immobilie in 2130 Mistelbach besticht durch ihre zentrale Lage zwischen Hauptplatz und Freibad. Sie profitieren von einer hervorragenden Infrastruktur mit Arzt, Apotheke, Klinik und Krankenhaus in unmittelbarer Nähe. Schulen und Kindergärten sind schnell erreichbar, ebenso wie Supermärkte, Bäckereien und Banken. Öffentliche Verkehrsanbindungen wie Bus und Bahnhof sorgen für eine optimale Erreichbarkeit. Hier wohnen Sie bequem und lebendig!

Beschreibung der Immobilie

EXKLUSIVER ERSTBEZUG in MISTELBACH - in TOP LAGE!

Ihr neues Zuhause in Mistelbach – Erstbezug mit Stil und Komfort



Willkommen in 2130 Mistelbach! Hier erwartet Sie ein modernes Eigenheim im Erstbezug – perfekt für alle, die Wert auf Qualität, Design und Lebenskomfort legen.

Lichtdurchflutete Räume, hochwertige Materialien und ein durchdachter Grundriss schaffen den idealen Rahmen für Ihr neues Leben. Alles ist frisch, unberührt und bereit, von Ihnen individuell gestaltet zu werden.




Top-Lage mit bester Anbindung



Genießen Sie die Ruhe einer attraktiven Wohngegend und profitieren Sie gleichzeitig von einer hervorragenden Infrastruktur:



  • Bahnhof und Bus in wenigen Minuten erreichbar
  • Wien liegt praktisch vor der Tür
  • Ärzte, Apotheken, Schulen, Kindergarten und Supermärkte – alles in unmittelbarer Nähe



Highlights, die begeistern



  • Erstbezug – alles neu und makellos
  • Großzügige Fensterflächen für maximale Helligkeit
  • Moderne Architektur mit klaren Linien
  • Viel Platz für Familie, Homeoffice und persönliche Rückzugsorte
  • Ein KFZ-Stellplatz kann zu EUR 15.000,00 erworben werden



Ein Zuhause zum Wohlfühlen



Ob gemütliche Stunden mit der Familie, entspannte Abende mit Freunden oder Ruhe nach einem langen Tag – dieses Haus passt sich Ihrem Lebensstil an und wächst mit Ihren Bedürfnissen.






👉 Jetzt Besichtigungstermin vereinbaren und den Erstbezug hautnah erleben!



Zur Wohnung



Willkommen in Ihrem neuen Zuhause in 2130 Mistelbach, einer charmanten Stadt in Niederösterreich, die Ihnen eine perfekte Kombination aus modernem Wohnkomfort und einer hervorragenden Lebensqualität bietet. Diese Immobilie steht Ihnen als Erstbezug zur Verfügung und wartet darauf, von Ihnen mit Leben erfüllt zu werden.



Die Lage spricht für sich: In unmittelbarer Nähe finden Sie alle Annehmlichkeiten des täglichen Bedarfs. Ärzte, Apotheken, Kliniken und ein Krankenhaus sind nur einen Katzensprung entfernt, sodass Sie sich um Ihre Gesundheit keine Sorgen machen müssen. Familien mit Kindern profitieren von der Nähe zu Schulen und Kindergärten, die eine hervorragende Betreuung und Bildung bieten. Auch Ihr Einkaufserlebnis wird hier ganz bequem: Supermärkte und Bäckereien sind schnell erreichbar und versorgen Sie mit frischen Lebensmitteln und Köstlichkeiten.



Die Verkehrsanbindung ist optimal. Ob Sie mit dem Bus oder dem Zug reisen – der nahegelegene Bahnhof und die Bushaltestellen bringen Sie schnell und unkompliziert an Ihr Ziel. So sind Sie sowohl für den Arbeitsweg als auch für Freizeitaktivitäten bestens gerüstet.



Das Gebäude selbst besticht durch seine moderne Bauweise und hochwertige Ausstattung. Als Erstbezug dürfen Sie sich auf lichtdurchflutete Räume, großzügige Grundrisse und eine durchdachte Raumplanung freuen. Hier wurde an alles gedacht, um Ihnen ein Höchstmaß an Wohnqualität zu bieten. Genießen Sie die Vorzüge eines neuen Zuhauses, in dem Sie Ihre persönlichen Wünsche und Vorstellungen verwirklichen können.



Ob Sie ein Paar sind, eine Familie gründen oder einfach nur einen Rückzugsort suchen – diese Immobilie bietet den idealen Rahmen für Ihr neues Leben. Lassen Sie sich von der angenehmen Nachbarschaft und der vielfältigen Freizeitgestaltung inspirieren. Die Umgebung bietet zahlreiche Möglichkeiten für Spaziergänge, Ausflüge und sportliche Aktivitäten.



Zögern Sie nicht, Ihre Chance auf diese Traumimmobilie zu nutzen. Vereinbaren Sie noch heute einen Besichtigungstermin und überzeugen Sie sich selbst von den Vorzügen dieses einzigartigen Angebots. Ihr neues Zuhause in Mistelbach wartet auf Sie – ein Ort, an dem Sie sich wohlfühlen und Ihre Träume verwirklichen können. Willkommen in Ihrem neuen Lebenskapitel!





Übergabe



Die Übergabe erfolgt nach den definierten Bedingungen, die im Kaufvertrag vereinbart werden. 





Weitere Details



sind auf Anfrage gerne erhältlich.



Gerne unterbreiten wir Ihnen ein Finanzierungsangebot mit bis zu 110%iger (mit Nebenkosten) Finanzierung!



Wir weisen darauf hin, dass ein wirtschaftliches Naheverhältnis zum Verkäufer besteht.





Für weitere Informationen können Sie uns gerne jederzeit kontaktieren!


Wir weisen darauf hin, dass zwischen dem Vermittler und dem zu vermittelnden Dritten ein familiäres oder wirtschaftliches Naheverhältnis besteht.


Der Vermittler ist als Doppelmakler tätig.

Infrastruktur / Entfernungen

Gesundheit
Arzt <500m
Apotheke <500m
Klinik <500m
Krankenhaus <1.000m

Kinder & Schulen
Schule <500m
Kindergarten <500m

Nahversorgung
Supermarkt <500m
Bäckerei <500m

Sonstige
Bank <500m
Geldautomat <500m
Polizei <1.000m
Post <500m

Verkehr
Bus <500m
Bahnhof <1.000m
Autobahnanschluss <4.500m

Angaben Entfernung Luftlinie / Quelle: OpenStreetMap

Eckdaten Objektnr. 25797

Art: Wohnung - Dachgeschoß
Land: Österreich
Baujahr: 2024
Zustand: Erstbezug
Alter: Neubau
Kaufpreis: 312.200,00
Provision: 3% des Kaufpreises zzgl. 20% USt.
Betriebskosten: 113,66 €
MwSt Gesamt: 11,37 €
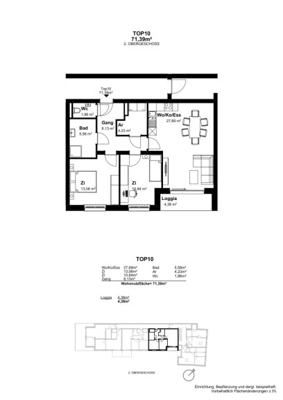
Wohnfläche: 71,39 m²
Zimmer: 3
Bäder: 1
WC: 1
Heizwärmebedarf:  B  40,00 kWh/m²a
fGEE:  C  1,24
Immobilie merken Exposé

Ausstattung

Parkett, Fliesen, Fußbodenheizung, Wohnküche / offene Küche, Personenaufzug, Dusche, Kabel/Satelliten-TV, Parkplatz


Immobilie anfragen


Ihre persönliche Beratung

WERTIMMOBILIEN Consulting KG

Michael Fath

WERTIMMOBILIEN Consulting KG

T +43 (676) 850 608 391