Arndtstraße! Neubau 2-Zimmer-Erstbezug mit Balkon im 4. Liftstock - Top48

Wohnung - Terrassenwohnung, 1120 Wien,Meidling


Diese charmanter Erstbezug im 12. Bezirk von Wien besticht durch ihre hervorragende Lage mit SW-Loggia. Nur wenige Schritte entfernt finden Sie den Meidlinger Markt, die U4 sowie den idyllischen Schönbrunner Schlosspark. Die unmittelbare Umgebung bietet eine optimale Infrastruktur mit Ärzten, Apotheken, Schulen, Kindergärten und Universitäten. Supermärkte, Bäckereien und ein Einkaufszentrum sorgen für Ihr leibliches Wohl, während Bus, U-Bahn und Straßenbahn beste Verkehrsanbindungen garantieren. Ein ideales Zuhause für urbane Genießer!

Beschreibung der Immobilie

Arndtstraße! Neubau 2-Zimmer-Erstbezug mit Balkon im 4. Liftstock - Top48

Willkommen in Ihrem neuen Zuhause in 1120 Wien! 



Das moderne Neubauprojekt in der Arndtstraße, Ecke Längenfeldgasse besticht durch moderner Ausstattung, durchdachten Grundrissen und sonnigen Freibereichen. Den Eigentümern steht ein Spiel- Gemeinschaftsraum mit Küche, und ein eigenes Kellerabteil zur Verfügung. Ein Stellplatz in der hauseigenen Tiefgarage kann optional erworben werden!



Derzeit stehen noch 7 Wohneinheiten (2 - 3 Zimmer) mit Aussenbereichen von ca. 40 - 70 m2 in den Regelgeschoßen, und 6 sonnendurchflutete DG-Wohnungen mit Terrassen und Top-Ausstattungen zum Verkauf! Alle Erstbezug-Wohnungen finden Sie auf unserer homepage unter tmu-real.at. 



Dieses Projekt erhielt bereits eine unabhängige DGNB Gold Zertifizierung und eine EU-Taxonomie-Verifikation wird angestrebt!



Die Eigentumswohnungen sind für Eigennutzer, aber auch für Anleger bestens geeignet.





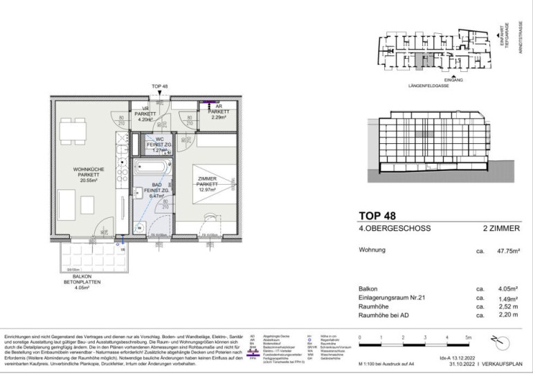
Wohnungsbeschreibung Top 48 im 4. Liftstock mit 47,75 m2 Wohnfläche + Balkon:



Die Wohnung ist mit hochwertigen Materialien ausgestattet, die ein Gefühl von Eleganz und Komfort vermitteln. Der schöne Parkettboden und die stilvollen Fliesen verleihen den Räumen eine warme Atmosphäre, während die Fußbodenheizung für wohlige Wärme sorgt. Die großzügige Wohnküche mit offener Gestaltung lädt dazu ein, kulinarische Köstlichkeiten zu kreieren und gesellige Abende zu verbringen. Das Schlafzimmer mit angrenzendem Bad ist extra zu gegehen. Entspannen Sie sich in Ihrem modernen Badezimmer, das mit einer Badewanne ausgestattet ist und somit einen perfekten Rückzugsort für entspannende Stunden bietet. Das separate WC ist mit einem Handwaschbecken ausgestattet. Auch ein praktischer Abstellraum steht zu Ihrer Verfügung. 



AUSSTATTUNG:


  • Eichenparkettböden
  • Markensanitärprodukte
  • Paketboxenanlage
  • Videogegensprechanlage
  • Smarte Hausverwaltungsapp
  • Energieeffiziente Fußbodenheizung mittels Fernwärme


Auf Wunsch senden wir Ihnen gerne eine detaillierte Bau- und Ausstattungsbeschreibung. 



Die hervorragende Verkehrsanbindung macht das Pendeln zum Kinderspiel. Ob Bus, U-Bahn, Straßenbahn oder Bahnhof – hier sind Sie bestens vernetzt und erreichen schnell Ihr gewünschtes Ziel. Zudem profitieren Sie von einer Vielzahl an Einrichtungen in unmittelbarer Nähe: Ärzte, Apotheken, Kliniken, Schulen, Kindergärten, eine Universität und ein Einkaufszentrum sind nur einige der Annehmlichkeiten, die Ihnen das Leben hier versüßen.



Lassen Sie sich diese einmalige Gelegenheit nicht entgehen! Kontaktieren Sie uns noch heute für eine Besichtigung und entdecken Sie, wie Ihr neues Zuhause in 1120 Wien aussieht. Ihr Traum vom eigenen Heim wartet auf Sie!





Mit der Wohnungseigentumsbegründung, Kaufvertragserrichtung, treuhändigen Abwicklung und grundbücherlichen Durchführung ist die Rechtsanwaltskanzlei Tiefenthaler Gnesda in 1010 Wien, Rockhgasse 6/6 beauftragt. Die Gesamtkosten für die angeführten Dienstleistungen belaufen sich auf 1,5% zzgl. Umsatzsteuer. Hinzu kommen die Beglaubigungskosten für die Unterschriften.



Dieses Objekt wird Ihnen unverbindlich und freibleibend zum Kauf angeboten.

Oben angeführte Angaben basieren auf Informationen und Unterlagen des Eigentümers und sind unsererseits ohne Gewähr.

Als Vermittlungshonorar gelten die allgemeinen Geschäftsbedingungen und die Verordnung für Immobilienmakler des BM für Handel, Gewerbe und Industrie, BGBL. 297/1996. Für den Fall, dass es diesbezüglich zu einem entsprechenden Rechtsgeschäft kommt, verrechnen wir Ihnen eine Vermittlungsprovision von 3 Prozent der Kaufsumme zuzüglich der gesetzlichen Mehrwertsteuer.



Für weitere Informationen bzw. Ihren Besichtigungstermin steht Ihnen unser Herr Musser unter 0699/11105690 oder per Mail unter office@tmu-real.at gerne zur Verfügung!

Infrastruktur / Entfernungen

Gesundheit
Arzt <500m
Apotheke <500m
Klinik <500m
Krankenhaus <1.500m

Kinder & Schulen
Schule <500m
Kindergarten <500m
Universität <500m
Höhere Schule <1.000m

Nahversorgung
Supermarkt <500m
Bäckerei <500m
Einkaufszentrum <1.000m

Sonstige
Geldautomat <1.000m
Bank <1.000m
Post <500m
Polizei <500m

Verkehr
Bus <500m
U-Bahn <500m
Straßenbahn <1.000m
Bahnhof <500m
Autobahnanschluss <3.500m

Angaben Entfernung Luftlinie / Quelle: OpenStreetMap

Eckdaten Objektnr. 4976/1285

Art: Wohnung - Terrassenwohnung
Land: Österreich
Baujahr: 2025
Zustand: Erstbezug
Alter: Neubau
Kaufpreis: 343.800,00
Kaufpreis / m²: 6.637,07 €
Provision: 3% des Kaufpreises zzgl. 20% USt.
Wohnfläche: 47,75 m²
Nutzfläche: 51,80 m²
Zimmer: 2
Bäder: 1
WC: 1
Balkone: 1
Keller: 1,50 m²
Heizwärmebedarf:  B  26,40 kWh/m²a
fGEE:  A  0,73
Immobilie merken Exposé

Ausstattung

Estrichboden, Fliesen, Parkett, Fernwärme, Fußbodenheizung, Wohnküche / offene Küche, Personenaufzug, Badewanne, Kabel/Satelliten-TV, Parkplatz(Duplex), Tiefgarage


Immobilie anfragen


Ihre persönliche Beratung

TMU-Realitäten

Thomas Musser

TMU-Realitäten

T +43 699/1110 5690

H +43 699 111 056 90

F +43 2687/42 396