Provisionsfrei! Großes wärmegedämmtes Ein-/Zweifamilienhaus mit 9 Zimmern, Pool,Luftwärmepumpe und großen Garten!

Haus , 2604 Theresienfeld


Beschreibung der Immobilie

Provisionsfrei! Großes wärmegedämmtes Ein-/Zweifamilienhaus mit 9 Zimmern, Pool,Luftwärmepumpe und großen Garten!

Willkommen in Ihrem neuen Zuhause in Theresienfeld!

Zum Verkauft steht ein sehr großes Einfamilien-/Zweifamilienhaus mit großem Grundstück. 



Das Haus verfügt über 276 m2 Nutzfläche und teilt sich folgendermaßen auf: 



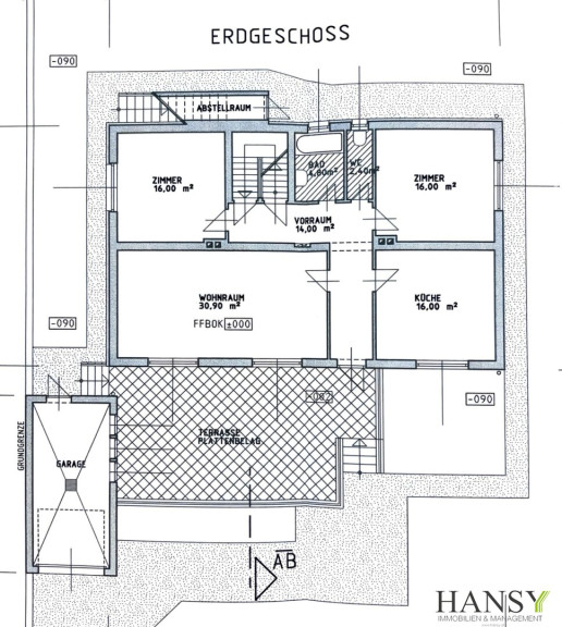
EG: 100,10 m²



- geräumige Küche inkl. Küchenzeile und Sitzecke

-31m2 großes Wohnzimmer

-2 Schlafzimmer mit je 16 m2 

- ein Badezimmer mit Dusche

- ein getrenntes Wc

-eine schöne Süd-Terrasse mit 35 m2 und Blick in den schönen Garten 




OG: 86m²



Das Obergeschoss kann über eine Innentreppe aber auch über eine Außentreppe erreicht werden. Somit könnte man auf Wunsch leicht zwei getrennte Einheiten schaffen. 



- 4 Schlafzimmer (alle getrennt begehbar)

- 1 Wohnzimmer welches als Küche umfunktionieren werden könnte

-ein Badezimmer mit Dusche

-ein getrenntes WC

-eine Speisekammer



Keller: 90 m²



- 5 Lagerräume die auch als Hobbyräume genutzt werden können

- 1 Heizraum für die Luftwärmepumpe



Das Haus wurde vor kurzem thermisch saniert, um die bestmögliche Energieeffizienz zu gewährleisten. 



Grundstück:



Grundstücksfläche - 819 m2

Verbaute Fläche - 152 m2 (Haus+Garage)



Man könnte auf dem Grundstück noch ein Haus errichten lassen. Ca. 110 m2 Wohnfläche - Bauklasse I 



Lage:



Das Haus befindet sich in einer ruhigen Wohnstraße (30er Zone). Die Infrastruktur ist sehr gut, Einkaufsmöglichkeiten aller Art, wie auch Kindergärten, Schulen, Ärzte, Lokale, Cafes, Tankstelle usw. sind in der Nähe vorhanden und gut zu erreichen. Alles was sie nicht in unmittelbarer Nähe finden, ist in nur 5 Minuten entfernten Wr. Neustadt vorhanden. Auch die Verkehrsanbindungen sind sehr gut - Bus und S-Bahn (Südbahn nach Wien).





Besichtigungen sind ab sofort flexibel möglich.





Bei Interesse stehe ich Ihnen gerne jederzeit telefonisch unter +4367761361090 zur Verfügung. 

Infrastruktur / Entfernungen

Gesundheit
Arzt <3.000m
Apotheke <2.500m
Klinik <6.000m
Krankenhaus <5.000m

Kinder & Schulen
Schule <1.000m
Kindergarten <1.500m
Höhere Schule <5.500m
Universität <2.000m

Nahversorgung
Supermarkt <1.000m
Bäckerei <1.000m
Einkaufszentrum <4.000m

Sonstige
Bank <1.000m
Geldautomat <1.000m
Post <3.000m
Polizei <3.500m

Verkehr
Bus <1.000m
Autobahnanschluss <4.000m
Bahnhof <1.000m
Flughafen <2.500m

Angaben Entfernung Luftlinie / Quelle: OpenStreetMap

Eckdaten Objektnr. 2460

Art: Haus
Land: Österreich
Baujahr: 1967
Zustand: Neuwertig
Möbliert: Voll
Alter: Neubau
Kaufpreis: 469.000,00
Betriebskosten: 140,00 €
Wohnfläche: 186,00 m²
Nutzfläche: 276,00 m²
Grundstücksfl.: 819,00 m²
Zimmer: 9
Bäder: 2
WC: 2
Terrassen: 1
Stellplätze: 1
Garten: 700,00 m²
Heizwärmebedarf:  C  89,30 kWh/m²a
fGEE:  C  1,31
Immobilie merken Exposé

Ausstattung

Fliesen, Laminatboden, Zentralheizung, Einbauküche, Wohnküche / offene Küche, Nordbalkon, Südbalkon, Badewanne, Bad mit Fenster, Garage, Parkplatz


Immobilie anfragen


Ihre persönliche Beratung

Alexander Kalinowski

Hansy GmbH

T +4367761361090

H +4367761361090