Gastrofläche mit riesiger Terrasse und spektakulärem Fernblick - Toplage im Naturpark Hohe Wand

Gastgewerbe , 2724 Maiersdorf , Hochkogelstraße


- Naturpark Hohe Wand - zahlreiche Wanderwege und Kletterwände in direkter Umgebung - in nur einer Stunde Fahrzeit gelangen Sie in die Wiener Innenstadt

Beschreibung der Immobilie

Gastrofläche mit riesiger Terrasse und spektakulärem Fernblick - Toplage im Naturpark Hohe Wand

Sehr geehrte Damen und Herren,





mitten im beliebten Naherholungsgeboiet dem "Naturpark Hohe Wand" kann die Gastronomiefläche im Hochkogelhaus (www.hochkogelhaus.co.at) angemietet werden. 



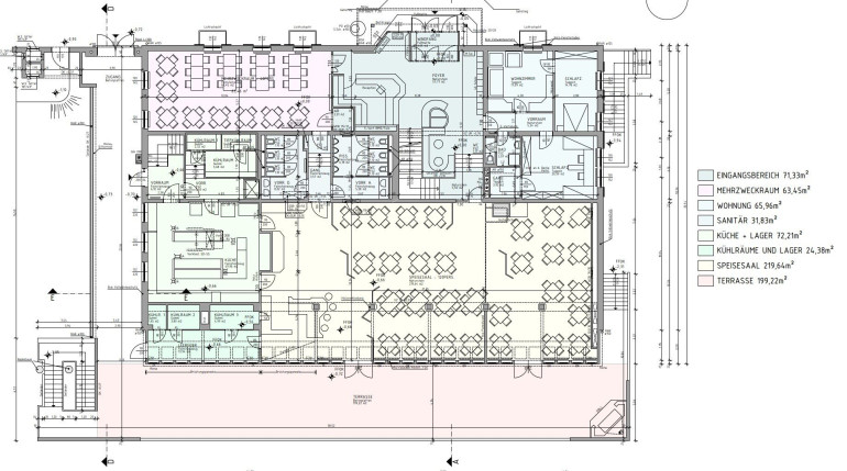
Die Gastronomiefläche verfügt über insgesamt ca 400m2 und einer ca 200m2 großen Terrasse von der Sie und Ihre Gäste einen spektakulären Fernblick über das gesamte Tal genießen können. 



Die zentrale Lage Mitten im Naturpark und die Nähe zu Wanderwegen und Klettergebieten, sowie die fußläufige Nähe zum "Skywalk" und der Paragleitwiese garantiert sowohl im Winter, als auch im Sommer eine hohe Frequenz an naturverbundenen und sportbegeisterten Besuchern und Gästen.



Keine Ablöse! 





Aufteilung:



  • heller und freundlicher großer Gästebereich für ca 118 Gäste 
  • Mehrzweckraum/Veranstaltungsraum für ca 56 Gäste
  • große 200m2 Terrasse
  • Küche
  • 6 Kühlräume 
  • Bar/Schankbereich
  • getrennte Toiletten





Highlights:



  • Lage direkt an der Klippe der Hohen Wand
  • Fernblick im wahrsten Sinne des Wortes
  • Gastrofläche sofort einsatzbereit 




Bei Bedarf sind im Haus nachstehende Flächen gesondert anmietbar



  • Bürobereich
  • Mitarbeiterwohnung mit Toiletten/Duschen
  • diverse Gästezimmer Apartments mit 24m2 bis 35m2  
  • Lagerräume
  • Kegelbahn



Kosteninformation:
Hauptmiete / m2 netto: € 5,99,--

Betriebskostenakonto/m netto: € 2-- 

überall zzgl. 20% USt.





Kontaktieren Sie uns jederzeit für nähere Informationen oder einen Besichtigungstermin (gerne auch spät abends oder am Wochenende).



Ich freue mich auf Ihre Nachricht!


Wir weisen darauf hin, dass zwischen dem Vermittler und dem zu vermittelnden Dritten ein familiäres oder wirtschaftliches Naheverhältnis besteht.


Der Vermittler ist als Doppelmakler tätig.

Eckdaten Objektnr. 271544929

Art: Gastgewerbe
Land: Österreich
Zustand: Gepflegt
Alter: Neubau
Miete / m²: 5,99 €
Provision: 3 Bruttomonatsmieten zzgl. 20% USt.
Nutzfläche: 400,00 m²
Bäder: 2
WC: 6
Terrassen: 1
Heizwärmebedarf:  C  76,00 kWh/m²a
Immobilie merken Exposé

Ausstattung

Fliesen, Zentralheizung, Einbauküche, Angeschl. Bar, Gastterrasse


Immobilie anfragen


Ihre persönliche Beratung

Immobiliaris GmbH

Lea Leichtfried

Immobiliaris GmbH

T +43 664 1607111