3 Zi Wohnung mit großer Terrasse im Dachgeschoss - nahe U1 (provisionsfrei!)

Wohnung , 1100 Wien , Laaer Wald


Öffentliche Verkehrsanbindung - Buslinien: 68A, 68B, N68 - S-Bahn: Wien Grillgasse - Straßenbahn: Linie D Nahversorgung & Umfeld: - Böhmischer Prater - Supermarkt - DM Drogerie - Bäckerei Anker - Kindergarten

Beschreibung der Immobilie

3 Zi Wohnung mit großer Terrasse im Dachgeschoss - nahe U1 (provisionsfrei!)

Sehr geehrte Damen und Herren,



die modernen Wohnhäuser des Projekts THE FAVE befinden sich im aufstrebenden Stadtteil Favoriten, eingebettet zwischen der Ankerbrotfabrik und dem Böhmischen Prater. Die Lage bietet eine ideale Kombination aus urbanem Lebensgefühl, guter öffentlicher Anbindung und erholsamen Grünbereichen.



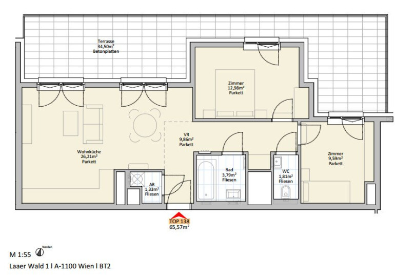
Die hier angebotene Wohnung liegt im Dachgeschoss eines hochwertigen Neubaus und verfügt über eine Wohnfläche von ca. 65 m² sowie einer großen Terrasse, der zusätzlichen Wohnkomfort bietet. Die Ausstattung entspricht einem modernen Standard und umfasst unter anderem eine Klimaanlage, sowie einen Abstellraum, der zusätzlichen Stauraum bietet.



Die Umgebung überzeugt durch vielfältige Nahversorger, Grünflächen, Parks sowie eine gute Infrastruktur. Zusätzlich bietet die Wohnanlage praktische Ausstattungsmerkmale wie Fahrrad- und Kinderwagenräume, ein eigenes Kellerabteil sowie eine hauseigene Tiefgarage.



Highlights



  • moderne Einbauküche mit hochwertigen Elektrogeräten
  • Klimaanlage
  • elektrische Außenbeschattung
  • Parkettboden
  • Fußbodenheizung mittels Fernwärme
  • Wärmeschutzverglasung für niedrige Energiekosten
  • Kellerabteil
  • Tiefgaragenplätze im Haus verfügbar


Bei Bedarf kann ein Stellplatz in der Tiefgarage separat angemietet werden.



Kosteninformation



Monatliche Gesamtkosten (brutto, inkl. Betriebskosten): EUR 1.499,00





Für weitere Informationen oder zur Vereinbarung eines Besichtigungstermins stehen wir Ihnen gerne zur Verfügung.



Ich freue mich auf Ihre Nachricht!


Wir weisen darauf hin, dass zwischen dem Vermittler und dem zu vermittelnden Dritten ein familiäres oder wirtschaftliches Naheverhältnis besteht.


Der Immobilienmakler erklärt, dass er – entgegen dem in der Immobilienwirtschaft üblichen Geschäftsgebrauch des Doppelmaklers – einseitig nur für den Vermieter tätig ist.

Infrastruktur / Entfernungen

Gesundheit
Arzt <750m
Apotheke <500m
Klinik <750m
Krankenhaus <2.750m

Kinder & Schulen
Schule <250m
Kindergarten <500m
Universität <750m
Höhere Schule <2.250m

Nahversorgung
Supermarkt <500m
Bäckerei <500m
Einkaufszentrum <1.250m

Sonstige
Geldautomat <750m
Bank <750m
Post <750m
Polizei <1.250m

Verkehr
Bus <500m
U-Bahn <1.250m
Straßenbahn <500m
Bahnhof <1.000m
Autobahnanschluss <250m

Angaben Entfernung Luftlinie / Quelle: OpenStreetMap

Eckdaten Objektnr. 271544956

Art: Wohnung
Land: Österreich
Baujahr: 2021
Zustand: Neuwertig
Alter: Neubau
Gesamtmiete: 1.498,79
Kaltmiete (netto): 1.165,83 €
Kaltmiete: 1.362,54 €
Provision: Gemäß Erstauftraggeberprinzip bezahlt der Abgeber die Provision.
Betriebskosten: 196,71 €
MwSt Gesamt: 136,25 €
Nutzfläche: 65,57 m²
Zimmer: 3
Bäder: 1
WC: 1
Terrassen: 1
Heizwärmebedarf:  A  15,50 kWh/m²a
fGEE:  A+  0,65
Immobilie merken Exposé

Ausstattung

Parkett, Fliesen, Fernwärme, Fußbodenheizung, Wohnküche / offene Küche, Einbauküche, Personenaufzug, Dusche, Garage, Tiefgarage


Immobilie anfragen


Ihre persönliche Beratung

Immobiliaris GmbH

Lea Leichtfried

Immobiliaris GmbH

T +43 664 1607111