2 ZIMMERWOHNUNG MIT BALKON IN WELS - TOP 43

Wohnung , 4600 Wels , Leopold-Bauer-Straße 16


Diese attraktive Wohnung in der Leopold-Bauer-Straße 4600 Wels überzeugt durch ihre zentrale Lage. In unmittelbarer Nähe finden Sie alles, was das Herz begehrt: Arztpraxen, Apotheken und Kliniken garantieren eine optimale medizinische Versorgung. Schulen und Kindergärten sind ebenfalls schnell erreichbar, ideal für Familien. Supermärkte und Bäckereien versorgen Sie mit frischen Lebensmitteln. Banken, Geldautomaten und die Post sind nur einen Katzensprung entfernt. Zudem bietet die gute Anbindung an Bus und Bahnhof eine einfache Erreichbarkeit der Umgebung. Hier wohnen Sie bequem und genießen alle Vorzüge des urbanen Lebens!

Beschreibung der Immobilie

2 ZIMMERWOHNUNG MIT BALKON IN WELS - TOP 43

Willkommen in Ihrem neuen Zuhause in Wels, wo urbanes Leben auf Gemütlichkeit trifft! Diese charmante Wohnung in der 2. Etage bietet Ihnen alles, was Sie für ein angenehmes und modernes Wohnen benötigen.



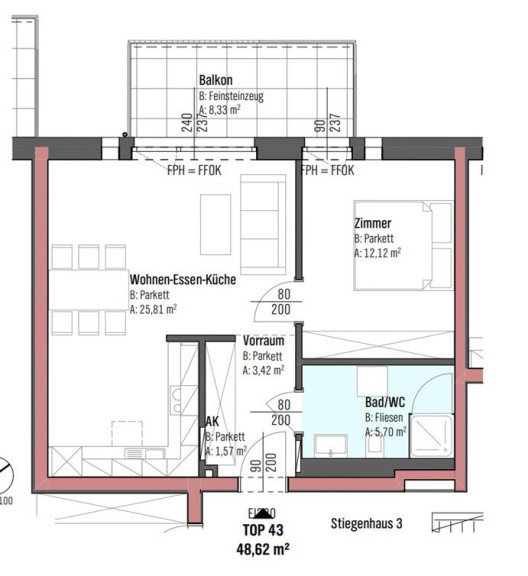
Mit einer großzügigen Fläche von 48,62 m² verteilt auf zwei lichtdurchflutete Zimmer, ist diese Wohnung der ideale Rückzugsort für Singles oder Paare. Die offene Wohnküche lädt zu geselligen Kochabenden mit Freunden oder entspannten Stunden mit der Familie ein. Hier können Sie Ihre kulinarischen Fähigkeiten entfalten und sich in einer gemütlichen Atmosphäre verwöhnen lassen.



Ein weiteres Highlight dieser Immobilie ist der Balkon – der perfekte Ort, um die frische Luft zu genießen und den Tag mit einer Tasse Kaffee oder einem Glas Wein ausklingen zu lassen. Der Stellplatz in der Tiefgarage sorgt dafür, dass Sie sich um Parkplatzprobleme keine Gedanken machen müssen und Ihr Fahrzeug stets geschützt ist.



Die Lage dieser Wohnung könnte nicht besser sein! Wels ist eine aufstrebende Stadt in Oberösterreich, die Ihnen eine hervorragende Lebensqualität bietet. Die Verkehrsanbindung ist optimal: Ob Sie mit dem Bus oder dem Zug unterwegs sind, Sie erreichen schnell und unkompliziert Ihre Ziele.



In der Umgebung finden Sie alles, was Sie für den täglichen Bedarf benötigen. Ärzte, Apotheken und Kliniken sind in unmittelbarer Nähe, sodass Sie im Falle eines Falles schnell Hilfe erhalten. Familien werden die Nähe zu Schulen und Kindergärten schätzen, während Supermärkte und Bäckereien für eine bequeme Versorgung sorgen.



Für nur 781,80 € monatlich können Sie sich dieses Schmuckstück in Wels sichern und den Traum vom eigenen Zuhause verwirklichen.



Die Heizkosten werden mit monatlich 45,17 € inkl. USt. akontiert.



Der Tiefgaragenstellplatz wird mit monatlich 74,86 € inkl. USt. akontiert.



Die Stromkosten werden direkt vom Versorungsunternehmen vorgeschrieben.



Zögern Sie nicht! Vereinbaren Sie noch heute einen Besichtigungstermin und entdecken Sie, wie diese Wohnung Ihr Leben bereichern kann. Ihr neues Zuhause wartet auf Sie!


Wir weisen darauf hin, dass zwischen dem Vermittler und dem zu vermittelnden Dritten ein familiäres oder wirtschaftliches Naheverhältnis besteht.


Der Immobilienmakler erklärt, dass er – entgegen dem in der Immobilienwirtschaft üblichen Geschäftsgebrauch des Doppelmaklers – einseitig nur für den Vermieter tätig ist.

Infrastruktur / Entfernungen

Gesundheit
Arzt <50m
Apotheke <250m
Klinik <875m
Krankenhaus <1.550m

Kinder & Schulen
Schule <200m
Kindergarten <475m
Universität <1.175m

Nahversorgung
Supermarkt <275m
Bäckerei <225m
Einkaufszentrum <2.175m

Sonstige
Bank <125m
Geldautomat <125m
Post <225m
Polizei <775m

Verkehr
Bus <150m
Autobahnanschluss <1.800m
Bahnhof <900m
Flughafen <3.025m

Angaben Entfernung Luftlinie / Quelle: OpenStreetMap

Eckdaten Objektnr. 1937/7645969

Art: Wohnung
Land: Österreich
Gesamtmiete: 781,80
Kaltmiete (netto): 550,56 €
Kaltmiete: 710,72 €
Provision: Gemäß Erstauftraggeberprinzip bezahlt der Abgeber die Provision.
Betriebskosten: 160,16 €
MwSt Gesamt: 71,08 €
Wohnfläche: 48,62 m²
Zimmer: 2
Balkone: 1
Stellplätze: 1
Heizwärmebedarf: 32,50 kWh/m²a
Immobilie merken Exposé

Ausstattung

Wohnküche / offene Küche, Tiefgarage


Immobilie anfragen


Ihre persönliche Beratung

Christa Sinzinger

AREV Immobilien GmbH

T T: +43 732 605533 361

H M:+43 664 81 85 361