2-Zimmer-Wohnung | ca. 55 m² | Balkon | Neubau

Wohnung - Etage, 8261 Untergroßau


Die Wohnanlage befindet sich in Sinabelkirchen im Bezirk Weiz, einer beliebten Wohnregion mit hoher Lebensqualität und ausgezeichneter Infrastruktur. Die Lage verbindet ruhiges Wohnen im Grünen mit optimaler Verkehrsanbindung: Der Anschluss an die A2 Südautobahn ist in wenigen Minuten erreichbar, wodurch Gleisdorf, Graz und Wien bequem angebunden sind. Auch öffentliche Verkehrsmittel befinden sich in gut erreichbarer Nähe. Alle Einrichtungen des täglichen Bedarfs – Nahversorger, Ärzte, Apotheke, Schulen, Kindergarten sowie Gastronomie- und Freizeitangebote – sind rasch erreichbar und machen den Standort besonders attraktiv für Singles, Paare und Familien. Die Umgebung ist geprägt von viel Natur, Spazier- und Freizeitmöglichkeiten und bietet gleichzeitig die Sicherheit einer gewachsenen Gemeinde mit regem Vereins- und Gemeinschaftsleben. Diese Kombination aus Ruhe, Infrastruktur und Mobilität macht Sinabelkirchen zu einem idealen Wohnstandort für alle, die entspannt wohnen und dennoch flexibel bleiben möchten.

Beschreibung der Immobilie

2-Zimmer-Wohnung | ca. 55 m² | Balkon | Neubau

In ruhiger, dennoch hervorragend angebundener Lage in Sinabelkirchen entsteht diese moderne Wohnanlage mit 12 hochwertig ausgeführten Eigentumswohnungen.



Die Wohnungen überzeugen durch durchdachte Grundrisse, großzügige Terrassen, Balkone bzw. Eigengärten, eine energieeffiziente Ziegelmassivbauweise sowie eine gehobene, zeitlose Ausstattung.

Ein Lift, private Abstellräume und überdachte Carport-Stellplätze sorgen für zusätzlichen Komfort im Alltag.



Dank der optimalen Verkehrsanbindung (A2 Südautobahn, Nähe zu Gleisdorf und Graz) sowie der ausgezeichneten Infrastruktur eignet sich das Projekt ideal für Eigennutzer wie auch Anleger.



Das Projekt wird schlüsselfertig gemäß Bau- und Ausstattungsbeschreibung errichtet. Sonderwünsche können – je nach Baufortschritt – gerne berücksichtigt werden.



Provisionsfrei – direkt vom Bauträger.

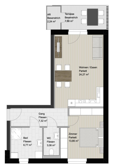
Diese hochwertige 2-Zimmer-Eigentumswohnung im 2. Obergeschoss bietet auf ca. 55,43 m² Wohnfläche ein durchdachtes Raumkonzept und eine angenehme Freifläche in Form eines Balkons.



Der offen gestaltete Wohn-/Ess-/Kochbereich sorgt für ein helles, freundliches Wohngefühl. Das Schlafzimmer ist ruhig gelegen und gut geschnitten. Ein modernes Badezimmer sowie ein separates WC runden das Raumangebot ideal ab.



Dank Lift ist die Wohnung bequem erreichbar und eignet sich ideal für Singles, Paare oder Anleger, die Wert auf zeitgemäße Ausstattung, Neubauqualität und gute Lage legen.



 Raumaufteilung:




  • Wohnen / Essen / Küche



  • Schlafzimmer



  • Badezimmer



  • Separates WC



  • Vorraum



  • Terrasse ca. 7,88 m²



  • Eigengarten ca. 82,44 m²



Wir weisen darauf hin, dass zwischen dem Vermittler und dem zu vermittelnden Dritten ein familiäres oder wirtschaftliches Naheverhältnis besteht.


Der Vermittler ist als Doppelmakler tätig.

Infrastruktur / Entfernungen

Gesundheit
Arzt <2.000m
Apotheke <1.000m

Kinder & Schulen
Schule <1.500m
Kindergarten <2.000m
Höhere Schule <8.000m

Nahversorgung
Supermarkt <1.000m
Bäckerei <1.500m

Sonstige
Geldautomat <1.000m
Bank <1.000m
Polizei <6.000m
Post <500m

Verkehr
Bus <500m
Autobahnanschluss <500m
Bahnhof <7.500m

Angaben Entfernung Luftlinie / Quelle: OpenStreetMap

Eckdaten Objektnr. 1831/55

Art: Wohnung - Etage
Land: Österreich
Baujahr: 2025
Zustand: Erstbezug
Alter: Neubau
Kaufpreis: 185.690,50
Provision: Provision bezahlt der Abgeber.
Betriebskosten: 140,00 €
Heizkosten: 50,00 €
MwSt Gesamt: 24,00 €
Wohnfläche: 55,43 m²
Zimmer: 2
Heizwärmebedarf:  B  30,10 kWh/m²a
fGEE:  A+  0,60
Immobilie merken Exposé

Ausstattung

Parkett, Fliesen, Fußbodenheizung, Einbauküche, Personenaufzug, Westbalkon, Dusche, Carport, Parkplatz


Immobilie anfragen


Ihre persönliche Beratung

BM Dipl. Ing. (FH) Michael Narrnhofer

IHW Immobilientreuhand GmbH

T +43 664 4000 796