PENTHOUSE DER EXTRAKLASSE! 230m² Wohnluxus mit Galerie & Traumterrasse!

Wohnung - Penthouse, 8055 Graz


Die Immobilie befindet sich in Graz-Puntigam, einem gut angebundenen Bezirk im Süden von Graz. Öffentliche Verkehrsmittel, die Autobahn A9 und der Bahnhof Puntigam sorgen für eine hervorragende Erreichbarkeit. Einkaufsmöglichkeiten, Schulen, Kindergärten und Freizeiteinrichtungen befinden sich in unmittelbarer Nähe. Die Lage verbindet urbanen Komfort mit guter Lebensqualität.

Beschreibung der Immobilie

PENTHOUSE DER EXTRAKLASSE! 230m² Wohnluxus mit Galerie & Traumterrasse!

Elegant. Stilvoll. Extravagant.



Dieses außergewöhnliche Penthouse besticht durch hochwertige Ausstattung, raffinierte Raumarchitektur und ein Wohnambiente auf höchstem Niveau.



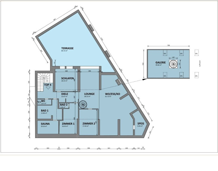
Der lichtdurchflutete Wohn- und Essbereich mit eleganter Lounge und edler Designerküche bildet das Herzstück. Hier verschmelzen Offenheit und Stil zu einem perfekten Ort für Genuss und Begegnung. Zwei Schlafzimmer, ein großzügiges Ankleidezimmer sowie ein luxuriöses Badezimmer in Marmoroptik mit direktem Zugang zum privaten Saunabereich machen diesen Rückzugsort einzigartig.



Ein absolutes Highlight ist die weitläufige Terrasse: mit Whirlpool, stilvollen Lounge-Bereichen und reichlich Platz zum Entspannen oder Repräsentieren.



Ein Penthouse für Menschen, die nicht nur wohnen wollen, sondern einen unverwechselbaren Lebensstil suchen.



Highlights dieses außergewöhnlichen Penthouses:



  • Großzügige Wohnfläche von ca. 230 m² mit offenem Raumkonzept
  • Eleganter Wohn- und Essbereich mit stilvoller Möblierung
  • Designerküche mit hochwertigen Elektrogeräten und edlen Materialien
  • Loungebereich mit exklusivem Ambiente – perfekt zum Entspannen
  • Offene Galerie im Wohnbereich – ideal als Büro oder Bibliothek
  • Zwei Schlafzimmer mit ruhiger Atmosphäre
  • Großzügiges Ankleidezimmer mit viel Stauraum 
  • Luxuriöses Badezimmer in Marmoroptik mit Doppelwaschbecken und Walk-in-Dusche
  • Privater Saunabereich – direkt vom Bad aus zugänglich
  • Fußbodenheizung
  • Weinkühlschrank 
  • SW Terrasse mit ca. 80 m² – inkl. Whirlpool und stilvollen Verweilplätzen
  • Exklusive Ausstattung mit hochwertigen Materialien, edlem Design und viel Liebe zum Detail
  • Repräsentatives Wohnambiente – elegant, stilvoll und außergewöhnlich


Eine Immobilie, die bleibenden Eindruck hinterlässt – als Zuhause oder als wertbeständige Investition.



Gerne stehe ich Ihnen für weitere Informationen oder eine ausführliche Besichtigung dieser äußerst attraktiven Liegenschaft zur Verfügung!



Ich freue mich auf Ihre Kontaktaufnahme!



Gertrud Sablatnig, MBA



Staatlich konzessionierte Immobilienmaklerin



Lindengasse 1/3c, 8501 Lieboch

Tel: +43/664 88 14 04 85
E-Mail: gertrud@immobilien-sablatnig.at



Alle Informationen beruhen auf Angaben des Abgebers und sind ohne Gewähr. Weiters möchten wir Sie informieren, dass ein Provisionsanspruch erst nach Unterzeichnung eines Kaufanbots besteht. Eine Besichtigung ist selbstverständlich unverbindlich und kostenlos.



WICHTIGER gesetzlicher HINWEIS:

Wir bitten um Ihr Verständnis, dass wir aufgrund einer neuen EU-Richtlinie (§11FAGG) Unterlagen und Besichtigungstermine für unsere Immobilien erst dann zusenden und vereinbaren können, wenn Sie uns bestätigen, dass Sie über Ihre Rücktrittsrechte aufgeklärt wurden und unser sofortiges Tätigwerden wünschen.



Des weiteren ersuchen wir um Verständnis, dass wir gemäß österreichischer Gewerbeordnung, sowie unserer Nachweispflicht gegenüber dem Auftraggeber nur Anfragen mit vollständigem Namen, Anschrift, Telefonnummer und Mail Adresse bearbeiten bzw. detaillierte Unterlagen weiterleiten können.



Wir bitten um Ihr Verständnis, vielen Dank!


Hinweis gemäß Energieausweisvorlagegesetz: Ein Energieausweis wurde vom Eigentümer bzw. Verkäufer, nach unserer Aufklärung über die generell geltende Vorlagepflicht, sowie Aufforderung zu seiner Erstellung noch nicht vorgelegt. Daher gilt zumindest eine dem Alter und der Art des Gebäudes entsprechende Gesamtenergieeffizienz als vereinbart. Wir übernehmen keinerlei Gewähr oder Haftung für die tatsächliche Energieeffizienz der angebotenen Immobilie.


Wir weisen darauf hin, dass zwischen dem Vermittler und dem zu vermittelnden Dritten ein familiäres oder wirtschaftliches Naheverhältnis besteht.


Der Vermittler ist als Doppelmakler tätig.

Infrastruktur / Entfernungen

Gesundheit
Arzt <500m
Apotheke <500m
Klinik <4.500m
Krankenhaus <2.000m

Kinder & Schulen
Schule <500m
Kindergarten <500m
Universität <4.000m
Höhere Schule <4.500m

Nahversorgung
Supermarkt <500m
Bäckerei <1.500m
Einkaufszentrum <500m

Sonstige
Geldautomat <500m
Bank <500m
Post <500m
Polizei <2.000m

Verkehr
Bus <500m
Straßenbahn <1.000m
Autobahnanschluss <1.500m
Bahnhof <1.000m
Flughafen <4.500m

Angaben Entfernung Luftlinie / Quelle: OpenStreetMap

Eckdaten Objektnr. 1757/394

Art: Wohnung - Penthouse
Land: Österreich
Möbliert: Teil
Alter: Neubau
Provision: 3% des Kaufpreises zzgl. 20% USt.
Wohnfläche: 232,00 m²
Zimmer: 4
Bäder: 2
WC: 1
Stellplätze: 2
Immobilie merken Exposé

Ausstattung

Parkett, Gas, Fußbodenheizung, Einbauküche, Bad mit Fenster, Badewanne, Dusche, Kabel/Satelliten-TV, Carport, Parkplatz


Immobilie anfragen


Ihre persönliche Beratung

Immobilien Sablatnig

Gertrud Sablatnig MBA

Immobilien Sablatnig

T +43 664 881 404 85