Reifnitz: Eigentums Wohnung 200 Meter vom See weg, 100% Wörther See Blick, nur 6 Wohneinheiten mit Lift !

Freizeitimmobilie gewerblich , 9081 Reifnitz


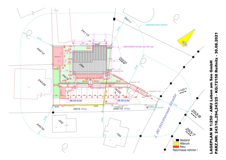
TOP Lage - 200 Meter zum Wörthersee Umbau, das Gebäude steht gerade in Rohbau, Besichtigung nur mit Anmeldung ! Bitte um Zusendung einer Finanzierungsbestätigung.

Beschreibung der Immobilie

Reifnitz: Eigentums Wohnung 200 Meter vom See weg, 100% Wörther See Blick, nur 6 Wohneinheiten mit Lift !

Erdgeschoss



Top 1 = 37,30 m² = 298 400.-



Top 2 = 49,15 m² = 393 200.-





1. Obergeschoss



Top 3= 36,70 m² = 293 600.-



Top 4= 60,24 m² = 481 920.-





2. Obergeschoss



Top 5= 36,70 m² = 293 600.-



Top 6= 60,24 m²    = 481 920.-



Wohnungen parifizierung ( Miteigentum Anteile) vom Notar in Vorbereitung



Die 6 Wohneinheiten sind als gewerblich vermietbare Wohnungseinheiten zu verwenden bzw.



als solche zu nutzen ( keine Zweitwohnsitze ).





Noch nichts gefunden? Wir informieren Sie über geeignete Immobilienangebote noch vor allen anderen.
Legen Sie jetzt Ihren individuellen Suchagenten unter folgendem Link an. Wir schicken Ihnen passende Immobilien exklusiv zu.

Suchagent anlegen


Wir weisen darauf hin, dass zwischen dem Vermittler und dem zu vermittelnden Dritten ein familiäres oder wirtschaftliches Naheverhältnis besteht.


Der Vermittler ist als Doppelmakler tätig.

Infrastruktur / Entfernungen

Gesundheit
Arzt <1.000m
Apotheke <500m
Krankenhaus <9.500m
Klinik <9.500m

Kinder & Schulen
Schule <500m
Kindergarten <500m
Universität <7.000m
Höhere Schule <10.000m

Nahversorgung
Supermarkt <500m
Bäckerei <6.000m

Sonstige
Bank <500m
Geldautomat <2.000m
Post <500m
Polizei <1.000m

Verkehr
Bus <500m
Autobahnanschluss <2.500m
Bahnhof <2.500m

Angaben Entfernung Luftlinie / Quelle: OpenStreetMap

Eckdaten Objektnr. 2301

Art: Freizeitimmobilie gewerblich
Land: Österreich
Zustand: Entkernt
Kaufpreis: 293.600,00
Provision: 3% des Kaufpreises zzgl. 20% USt.
Wohnfläche: 280,33 m²
Grundstücksfl.: 990,00 m²
WC: 6
Balkone: 4
Terrassen: 2
Heizwärmebedarf:  A  39,00 kWh/m²a
fGEE: 0,64
Immobilie merken Exposé

Ausstattung

Erdwärme, Fußbodenheizung, Personenaufzug


Immobilie anfragen


Ihre persönliche Beratung

VB Realitäten Gesellschaft m.b.H.

Georg Fischer

VB Realitäten Gesellschaft m.b.H.

T 05 09 09 8011

H 0043 650 77 41 5 41