NEUBAU – 12 exklusive Eigentumswohnungen in Stammersdorf | Baustart Herbst 2025

Wohnung , 1210 Wien


Diese attraktive Wohnung in 1210 Wien bietet Ihnen eine hervorragende Lage mit bester Infrastruktur. In unmittelbarer Nähe finden Sie alles, was das Herz begehrt: Ärzte, Apotheken und ein Krankenhaus gewährleisten eine optimale Gesundheitsversorgung. Schulen und Kindergärten sind ebenfalls schnell erreichbar. Supermärkte, Bäckereien und Geldautomaten sorgen für Ihren täglichen Bedarf. Die Anbindung an öffentliche Verkehrsmittel wie Bus und Straßenbahn ist ausgezeichnet, sodass Sie schnell ins Stadtzentrum gelangen. Sicherheit ist ebenfalls gegeben, mit einer Polizeistation in der Nähe. Genießen Sie urbanes Wohnen in dieser lebhaften Umgebung!

Beschreibung der Immobilie

NEUBAU – 12 exklusive Eigentumswohnungen in Stammersdorf | Baustart Herbst 2025

Inmitten der beliebten Heurigengegend von Stammersdorf entsteht ein hochwertiges Neubauprojekt mit nur 12 exklusiven Eigentumswohnungen. Die Wohnanlage vereint modernes Wohnen mit naturnaher Lage am Fuße des Bisambergs – ideal für Menschen, die Ruhe suchen und dennoch nicht auf urbane Anbindung verzichten möchten.



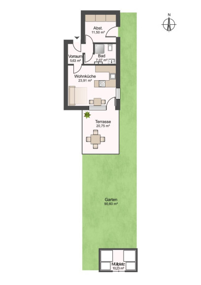
Die durchdachten Grundrisse bieten 2 bis 3 Zimmer auf rund 42–66 m² Wohnfläche. Jede Wohnung verfügt über großzügige Terrassen oder Balkone, im Erdgeschoss auch über eigene Gärten. Ein Kellerabteil ist im Kaufpreis inkludiert, Tiefgaragenplätze sind optional verfügbar.




Lage & Infrastruktur



Die Sandtnergasse befindet sich in einer ruhigen Seitenstraße – naturnah und dennoch gut angebunden:




  • Straßenbahnlinie 31 (Station: Stammersdorf) in ca. 7 Gehminuten



  • Buslinien N31, 125 fußläufig erreichbar



  • Ca. 20 Minuten Fahrzeit mit dem Auto ins Stadtzentrum (Stephansplatz)



  • Supermärkte, Bäcker, Apotheken sowie Heurige & Weingüter in direkter Umgebung



  • Naherholungsgebiete wie der Bisamberg, der Marchfeldkanal und die Donauinsel bieten Erholung, Radwege & Natur pur





Bildungseinrichtungen in der Umgebung



Das Projekt ist besonders familienfreundlich gelegen – folgende Einrichtungen befinden sich in kurzer Gehdistanz:




  • Kindergärten & Volksschulen (z. B. Volksschule Pastorstraße, VS Stammersdorf)



  • Neue Mittelschulen (z. B. NMS Jochbergengasse)



  • Allgemeinbildende höhere Schulen (AHS) wie das GRG 21 Franklinstraße oder das BRG Ödenburger Straße



  • Bildungscampus Willi Resetarits mit Ganztagesbetreuung in VS & NMS





Highlights der Ausstattung




  • Schlüsselfertige Ausführung



  • Alle Wohnungen zentral vom Vorzimmer aus begehbar



  • Zentrale Wärmepumpe – ökologisch & ökonomisch



  • Fußbodenheizung mit individueller Raumsteuerung



  • Raumkühlung über Verrohrung in der warmen Jahreszeit



  • Hochwertige Fenster mit 3-fach-Verglasung & Raffstores



  • Markensanitärausstattung (Grohe, Geberit)



  • Bodengleiche Duschen mit Glastrennwänden



  • Hochwertiger Dielenparkett in allen Wohnräumen



  • Video-Gegensprechanlage & Zentralschließanlage



  • Lift, Fahrrad- & Kinderwagenraum, Kellerabteile inkludiert



  • Tiefgaragenstellplätze gegen Aufpreis (€ 30.000,–)





Projektdetails




  • Adresse: Sandtnergasse 32, 1210 Wien



  • Einheiten: 12 Eigentumswohnungen



  • Zimmer: 2–3



  • Wohnflächen: ca. 42–66 m²



  • Freiflächen: Balkone, Terrassen oder Eigengärten



  • Baubeginn: Herbst 2025



  • Fertigstellung: Sommer 2027



  • Tiefgarage: Stellplätze optional um € 30.000,–





Jetzt vormerken lassen!



Profitieren Sie von der frühen Phase dieses attraktiven Neubauprojekts und sichern Sie sich Ihre Traumwohnung mit Garten, Balkon oder Dachterrasse. Gerne stehen wir Ihnen für Fragen oder ein Beratungsgespräch zur Verfügung.


Wir weisen darauf hin, dass zwischen dem Vermittler und dem zu vermittelnden Dritten ein familiäres oder wirtschaftliches Naheverhältnis besteht.


Der Vermittler ist als Doppelmakler tätig.

Infrastruktur / Entfernungen

Gesundheit
Arzt <500m
Apotheke <1.000m
Klinik <4.000m
Krankenhaus <1.000m

Kinder & Schulen
Schule <1.000m
Kindergarten <1.000m
Universität <2.000m
Höhere Schule <5.500m

Nahversorgung
Supermarkt <500m
Bäckerei <500m
Einkaufszentrum <3.500m

Sonstige
Geldautomat <500m
Bank <500m
Post <3.000m
Polizei <1.000m

Verkehr
Bus <500m
U-Bahn <4.000m
Straßenbahn <500m
Bahnhof <3.500m
Autobahnanschluss <4.000m

Angaben Entfernung Luftlinie / Quelle: OpenStreetMap

Eckdaten Objektnr. 27395

Art: Wohnung
Land: Österreich
Baujahr: 2027
Zustand: Erstbezug
Alter: Neubau
Kaufpreis: 445.000,00
Wohnfläche: 48,59 m²
Zimmer: 2
Bäder: 1
WC: 1
Terrassen: 1
Garten: 95,20 m²
Keller: 1,87 m²
Heizwärmebedarf:  B  31,60 kWh/m²a
fGEE:  A+  0,63
Immobilie merken Exposé

Ausstattung

Steinboden, Parkett, Zentralheizung, Personenaufzug


Immobilie anfragen


Ihre persönliche Beratung

EXPAT CONSULTING Real Estate & Relocation Services GmbH

Aslan Kurtaran, MBA

EXPAT CONSULTING Real Estate & Relocation Services GmbH

T +43 1 328 8818-0

H +43 699 1178 5193

F +43 1 328 8818-60