Gemütliche Terrassen-Wohnung am Land
Wohnung
,
4751
Dorf an der Pram
,
Hinterndobl 1
Hinterndobl 1, Dorf an der Pram
Beschreibung der Immobilie
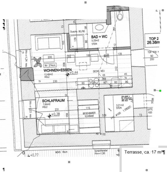
Gemütliche Terrassen-Wohnung am Land
Eckdaten Objektnr. 1937/7645965
| Art: | Wohnung |
| Land: | Österreich |
| Gesamtmiete: | 535,71 € |
| Kaltmiete (netto): | 365,87 € |
| Kaltmiete: | 451,83 € |
| Provision: | Gemäß Erstauftraggeberprinzip bezahlt der Abgeber die Provision. |
| Betriebskosten: | 85,96 € |
| Heizkosten: | 32,24 € |
| MwSt Gesamt: | 51,64 € |
| Wohnfläche: | 37,41 m² |
| Terrassen: | 1 |
| Heizwärmebedarf: | 32,00 kWh/m²a |
Ausstattung
Einbauküche
Ihre persönliche Beratung
Mathilde Feichtenschlager
AREV Immobilien GmbH
T +43 7752 85885 305
H +43 6648185369