WOHNEN IN WELS - HELLE 2 ZIMMERWOHNUNG MIT BALKON - TOP 46

Wohnung , 4600 Wels , Leopold-Bauer-Straße 14


Die Wohnung in der Leopold-Bauer-Straße in Wels besticht durch ihre zentrale Lage, die alle Annehmlichkeiten des täglichen Lebens in unmittelbarer Nähe bietet. Ärzte, Apotheken und eine Klinik sind schnell erreichbar, ebenso wie Schulen und Kindergärten für die jüngsten Bewohner. Supermärkte, Bäckereien und Banken sorgen für eine bequeme Versorgung. Die gute Anbindung an Bus und Bahnhof ermöglicht eine mühelose Erreichbarkeit der Umgebung. Hier wohnen Sie komfortabel und urban!

Beschreibung der Immobilie

WOHNEN IN WELS - HELLE 2 ZIMMERWOHNUNG MIT BALKON - TOP 46

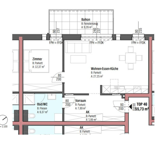
Willkommen in Ihrem neuen Zuhause in der charmanten Stadt Wels, Oberösterreich! Diese wunderschöne 2-Zimmer-Wohnung in der begehrten 2. Etage bietet auf 55,73 m² alles, was Sie für ein komfortables und modernes Wohnen benötigen.



Die Wohnung besticht durch ihre durchdachte Raumaufteilung und die lichtdurchfluteten Räume, die eine angenehme Wohnatmosphäre schaffen. Ein Highlight ist die offene Wohnküche, die nicht nur funktional, sondern auch einladend ist. Hier können Sie kulinarische Köstlichkeiten zubereiten und gleichzeitig mit Freunden oder Familie kommunizieren.



Der Balkon lädt dazu ein, die frische Luft zu genießen und den Tag mit einem gemütlichen Frühstück oder einem entspannten Feierabend ausklingen zu lassen. Stellen Sie sich vor, wie Sie hier bei einem Gläschen Wein den Sonnenuntergang beobachten!



Die Lage dieser Wohnung könnte nicht besser sein. Mit einer hervorragenden Verkehrsanbindung sind Sie sowohl mit dem Bus als auch dem Zug schnell und unkompliziert mobil. Ob für den täglichen Pendelverkehr oder Ausflüge in die Umgebung – alles ist im Handumdrehen erreichbar.



In der näheren Umgebung finden Sie alles, was das Herz begehrt: Ärzte, Apotheken, Kliniken, Schulen und Kindergärten sind nur einen kurzen Fußweg entfernt. Zum Einkaufen laden zahlreiche Supermärkte und eine charmante Bäckerei ein, die frische Brötchen für Ihr Frühstück bereithält.



Die monatliche Miete von 888,78 € stellt ein hervorragendes Preis-Leistungs-Verhältnis dar, wenn man die Lage und die Ausstattung dieser Wohnung berücksichtigt. Hier können Sie sich wohlfühlen und Ihr neues Leben in einer der schönsten Städte Oberösterreichs beginnen.



Stellplatz: wird derzeit mit monatlich 74,86 € inkl. USt. akontiert



Heizkosten: werden derzeit mit monatlich 51,77 € inkl. USt. akontiert



Zögern Sie nicht, sich dieses einmalige Angebot anzusehen! Diese Wohnung ist mehr als nur ein Ort zum Wohnen – sie ist ein Ort, an dem Erinnerungen geschaffen werden. Lassen Sie sich diese Chance nicht entgehen und vereinbaren Sie noch heute einen Besichtigungstermin!


Wir weisen darauf hin, dass zwischen dem Vermittler und dem zu vermittelnden Dritten ein familiäres oder wirtschaftliches Naheverhältnis besteht.


Der Immobilienmakler erklärt, dass er – entgegen dem in der Immobilienwirtschaft üblichen Geschäftsgebrauch des Doppelmaklers – einseitig nur für den Vermieter tätig ist.

Infrastruktur / Entfernungen

Gesundheit
Arzt <25m
Apotheke <225m
Klinik <925m
Krankenhaus <1.525m

Kinder & Schulen
Schule <250m
Kindergarten <475m
Universität <1.175m

Nahversorgung
Supermarkt <250m
Bäckerei <200m
Einkaufszentrum <2.150m

Sonstige
Bank <125m
Geldautomat <125m
Post <200m
Polizei <800m

Verkehr
Bus <125m
Autobahnanschluss <1.825m
Bahnhof <900m
Flughafen <2.975m

Angaben Entfernung Luftlinie / Quelle: OpenStreetMap

Eckdaten Objektnr. 1937/7645966

Art: Wohnung
Land: Österreich
Gesamtmiete: 888,78
Kaltmiete (netto): 624,40 €
Kaltmiete: 807,98 €
Provision: Gemäß Erstauftraggeberprinzip bezahlt der Abgeber die Provision.
Betriebskosten: 183,58 €
MwSt Gesamt: 80,80 €
Wohnfläche: 55,73 m²
Zimmer: 2
Balkone: 1
Heizwärmebedarf: 32,50 kWh/m²a
Immobilie merken Exposé

Ausstattung

Wohnküche / offene Küche


Immobilie anfragen


Ihre persönliche Beratung

Christa Sinzinger

AREV Immobilien GmbH

T T: +43 732 605533 361

H M:+43 664 81 85 361