Büro / Praxis - Ausstellungsfläche, 8042 Graz , Sankt Peter Hauptstraße 232


Die St.-Peter-Hauptstraße in Graz liegt in einem beliebten und gut frequentierten Grazer Stadtteil mit ausgezeichneter Infrastruktur. Dank der sehr guten Verkehrsanbindung, hoher Sichtbarkeit und der Nähe zu Einkaufsmöglichkeiten, Gastronomie und öffentlichen Verkehrsmitteln bietet diese Lage ideale Voraussetzungen für eine erfolgreiche gewerbliche Nutzung.

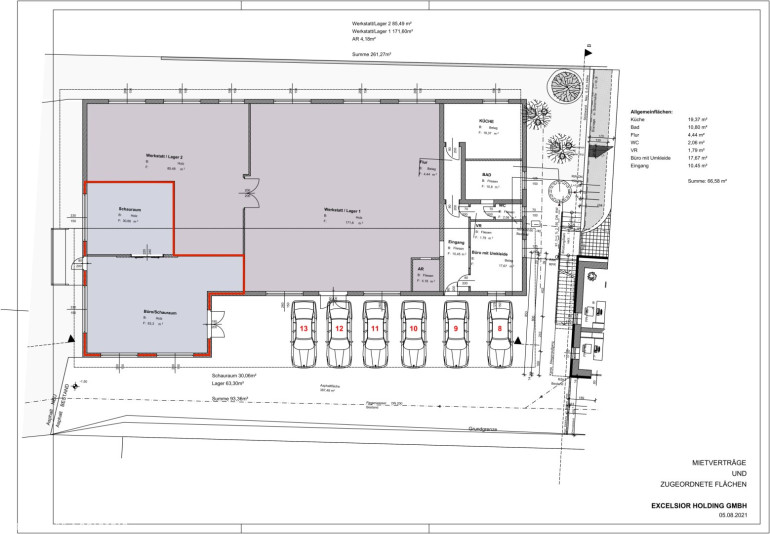
Beschreibung der Immobilie

In gut angebundener Lage in Graz, an der St.-Peter-Hauptstraße, gelangt diese vielseitig nutzbare Gewerbefläche zur Vermietung.



Die Fläche wurde bislang erfolgreich als Showroom für hochwertige Wohnmöbel und Küchen genutzt und eignet sich aufgrund ihrer offenen Struktur, der angenehmen Raumwirkung und der  schönen Parkettböden ideal für unterschiedliche Nutzungskonzepte.



Ob als Showroom für Einrichtung, Design oder Lifestyle-Produkte, als Studio, Atelier oder Ausstellungsfläche – ebenso ist eine Nutzung als Büro mit Schauraum, Beratungsfläche oder kreativer Arbeitsraum gut vorstellbar. Die Räumlichkeiten lassen sich flexibel gestalten und individuell an die jeweiligen Anforderungen anpassen.



In der Ausstattung verbleiben die bestehende Showroom-Küche sowie die vorhandenen Beleuchtungskörper und können vom neuen Mieter weiterhin genutzt werden.



Zusätzlich besteht die Möglichkeit, die angrenzende Lagerfläche anzumieten und das Nutzungskonzept dadurch sinnvoll zu erweitern – ideal für Lagerung, Logistik oder ergänzende Arbeitsbereiche.



Die Parkettböden verleihen der Fläche eine warme, einladende Atmosphäre und bieten eine hochwertige Basis für verschiedenste Branchen und Konzepte.



Eine attraktive Gewerbefläche für Unternehmen, die gut erreichbar sein möchten und Raum für Entwicklung, Präsentation und neue Ideen suchen.



----------------------------------------------



MIETKOSTEN:



  • Showroom: € 1.400,40 netto / p.m.
  • zzgl. Strom nach Verbrauch 
  • Parkplatz: Freifläche € 40,00 netto / p.m. pro Abstellplatz


Alle Kosten verstehen sich zzgl.Ust



Mindestmietdauer: 3 - 5 Jahre befristet



Kaution: € 6.000,00



------------------------------------------------------



Die Lage an einer gut angebundenen Hauptstraße gewährleistet eine bequeme Erreichbarkeit für Kunden und Lieferanten!



Für weitere Informationen und eine individuelle Besichtigung stehe ich Ihnen gerne zur Verfügung.



Ich freue mich auf Ihre Kontaktaufnahme!



Gertrud Sablatnig, MBA



Staatlich konzessionierte Immobilienmaklerin



Lindengasse 1/3c, 8501 Lieboch

Tel: +43/664 88 14 04 85
E-Mail: gertrud@immobilien-sablatnig.at



Alle Informationen beruhen auf Angaben des Abgebers und sind ohne Gewähr. Weiters möchten wir Sie informieren, dass ein Provisionsanspruch erst nach Unterzeichnung eines Kaufanbots besteht. Eine Besichtigung ist selbstverständlich unverbindlich und kostenlos.



WICHTIGER gesetzlicher HINWEIS:

Wir bitten um Ihr Verständnis, dass wir aufgrund einer neuen EU-Richtlinie (§11FAGG) Unterlagen und Besichtigungstermine für unsere Immobilien erst dann zusenden und vereinbaren können, wenn Sie uns bestätigen, dass Sie über Ihre Rücktrittsrechte aufgeklärt wurden und unser sofortiges Tätigwerden wünschen.



Des weiteren ersuchen wir um Verständnis, dass wir gemäß österreichischer Gewerbeordnung, sowie unserer Nachweispflicht gegenüber dem Auftraggeber nur Anfragen mit vollständigem Namen, Anschrift, Telefonnummer und Mail Adresse bearbeiten bzw. detaillierte Unterlagen weiterleiten können.



Wir bitten um Ihr Verständnis, vielen Dank!




Hinweis gemäß Energieausweisvorlagegesetz: Ein Energieausweis wurde vom Eigentümer bzw. Verkäufer, nach unserer Aufklärung über die generell geltende Vorlagepflicht, sowie Aufforderung zu seiner Erstellung noch nicht vorgelegt. Daher gilt zumindest eine dem Alter und der Art des Gebäudes entsprechende Gesamtenergieeffizienz als vereinbart. Wir übernehmen keinerlei Gewähr oder Haftung für die tatsächliche Energieeffizienz der angebotenen Immobilie.


Wir weisen darauf hin, dass zwischen dem Vermittler und dem zu vermittelnden Dritten ein familiäres oder wirtschaftliches Naheverhältnis besteht.


Der Vermittler ist als Doppelmakler tätig.

Infrastruktur / Entfernungen

Gesundheit
Arzt <150m
Apotheke <1.375m
Klinik <3.975m
Krankenhaus <4.550m

Kinder & Schulen
Schule <625m
Kindergarten <1.325m
Universität <2.525m
Höhere Schule <4.025m

Nahversorgung
Supermarkt <325m
Bäckerei <900m
Einkaufszentrum <900m

Sonstige
Geldautomat <475m
Bank <1.625m
Post <1.625m
Polizei <1.600m

Verkehr
Bus <125m
Straßenbahn <1.825m
Autobahnanschluss <1.300m
Bahnhof <1.500m
Flughafen <7.100m

Angaben Entfernung Luftlinie / Quelle: OpenStreetMap

Eckdaten Objektnr. 1757/392

Art: Büro / Praxis - Ausstellungsfläche
Land: Österreich
Zustand: Neuwertig
Kaltmiete (netto): 1.400,40 €
Kaltmiete: 1.400,40 €
Provision: 3 Bruttomonatsmieten zzgl. 20% USt.
MwSt Gesamt: 280,08 €
Bürofläche: 93,36 m²
Immobilie merken Exposé

Immobilie anfragen


Ihre persönliche Beratung

Immobilien Sablatnig

Gertrud Sablatnig MBA

Immobilien Sablatnig

T +43 664 881 404 85