Exklusive Dachgeschosswohnung mit Fernblick – urbanes Wohnen auf höchstem Niveau

Wohnung - Dachgeschoß, 4020 Linz


Lage – zentral & perfekt vernetzt Diese Wohnung punktet mit einer Lage, wie man sie in Linz nur selten findet: Ärzte, Apotheken, Kliniken, Bildungseinrichtungen (Kindergarten bis Universität) sowie Nahversorger, Supermärkte und Bäckereien befinden sich in unmittelbarer Umgebung. Öffentliche Verkehrsmittel sind komfortabel in Gehweite – urbaner Lifestyle ohne Kompromisse.

Beschreibung der Immobilie

Exklusive Dachgeschosswohnung mit Fernblick – urbanes Wohnen auf höchstem Niveau

Exklusive Dachgeschosswohnung mit Fernblick – urbanes Wohnen auf höchstem Niveau




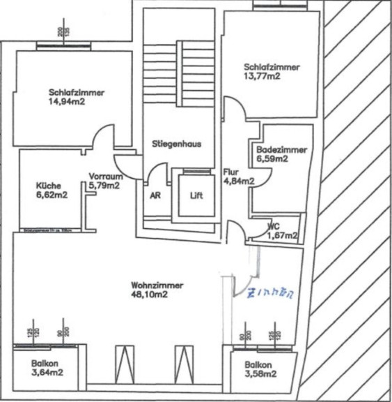
Diese elegante 4-Zimmer-Dachgeschosswohnung vereint Großzügigkeit, Design und City-Nähe auf eindrucksvolle Weise. Auf rund 110 m² Wohnfläche erleben Sie stilvollen Wohnkomfort mit außergewöhnlichem Weitblick und zwei sonnigen Balkonen.





Highlights im Überblick




  • ca. 110 m² Wohnfläche



  • 4 lichtdurchflutete Zimmer



  • zwei Balkone mit beeindruckendem Ausblick



  • edles Parkett & hochwertige Fliesen



  • offene Design-Wohnküche als Herzstück



  • modernes, großzügiges Badezimmer mit Wanne & Dusche



  • Top-Infrastruktur und perfekte Verkehrsanbindung






Wohngefühl mit Niveau



Die offene Wohnküche bildet das Zentrum des Alltags – ideal für Gastgeber und Genießer. Feinste Materialien, durchdachte Raumaufteilung und helle Fensterfronten schaffen ein stilvolles Ambiente. Das Badezimmer lädt mit Wanne und Dusche zum Ankommen und Abschalten ein.



Die Wohnung verfügt über zwei großzügige Schlafzimmer, die sich ideal als Schlaf- und Kinderzimmer eignen und viel Platz für individuelle Einrichtung bieten. Ergänzt wird das Raumangebot durch ein weiteres, etwas kleineres Zimmer, das sich perfekt als Homeoffice oder ruhiger Arbeitsbereich nutzen lässt – ideal für alle, die Wohnen und Arbeiten stilvoll verbinden möchten.



Das absolute Highlight der Wohnung ist das außergewöhnlich großzügige Wohnzimmer – ein Raum, der Wohnen neu definiert. Durch die großen Dachflächenfenster präsentiert sich der Bereich hell und offen, während die direkte Anbindung an einen Balkon ein unvergleichliches Wohngefühl schafft. Ob stilvolle Lounge-Ecke, gemütlicher Essbereich oder eine zusätzliche Leseecke – hier entsteht ein Lebensraum mit besonderer Wirkung und maximaler Gestaltungsmöglichkeit.


Der Immobilienmakler erklärt, dass er – entgegen dem in der Immobilienwirtschaft üblichen Geschäftsgebrauch des Doppelmaklers – einseitig nur für den Vermieter tätig ist.

Infrastruktur / Entfernungen

Gesundheit
Arzt <500m
Apotheke <500m
Klinik <500m
Krankenhaus <500m

Kinder & Schulen
Kindergarten <500m
Schule <500m
Universität <500m
Höhere Schule <500m

Nahversorgung
Supermarkt <500m
Bäckerei <500m
Einkaufszentrum <500m

Sonstige
Bank <500m
Geldautomat <500m
Post <500m
Polizei <1.000m

Verkehr
Bus <500m
Straßenbahn <500m
Bahnhof <1.500m
Autobahnanschluss <1.500m
Flughafen <3.500m

Angaben Entfernung Luftlinie / Quelle: OpenStreetMap

Eckdaten Objektnr. 7834/314

Art: Wohnung - Dachgeschoß
Land: Österreich
Gesamtmiete: 1.451,00
Kaltmiete (netto): 870,00 €
Kaltmiete: 1.228,18 €
Provision: Gemäß Erstauftraggeberprinzip bezahlt der Abgeber die Provision.
Betriebskosten: 358,18 €
Heizkosten: 83,33 €
MwSt Gesamt: 139,49 €
Wohnfläche: 110,00 m²
Zimmer: 4
Bäder: 1
WC: 1
Balkone: 2
Heizwärmebedarf:  C  57,00 kWh/m²a
fGEE:  C  1,64
Immobilie merken Exposé

Ausstattung

Fliesen, Parkett, Einbauküche, Wohnküche / offene Küche, Personenaufzug, Badewanne, Dusche


Immobilie anfragen


Ihre persönliche Beratung

BL Immobroker GmbH

Niklas Buchrucker, BSc

LP Immobilien GmbH

T +43 664 88 90 88 83

H +43 664 88 90 88 83