Helle 2-Zimmer Wohnung, Nähe Landstraße Hauptstraße

Wohnung - Etage, 1030 Wien


Beschreibung der Immobilie

Helle 2-Zimmer Wohnung, Nähe Landstraße Hauptstraße

Im Falle der Notwendigkeit einer Fremdfinanzierung Ihrer Wunschimmobilie ermittelt unser Wohnbau-Finanzierungsexperte gerne die optimale Finanzierungslösung und findet das passende Zins- und Konditionsangebot für Sie. Er vergleicht die aktuellen Angebote aller relevanten Banken und Bausparkassen. Der Angebotsvergleich kann aus einem Portfolio von über 120 Banken erfolgen. Das Erstgespräch ist für Sie kostenfrei und unverbindlich, gerne auch bei Ihnen vor Ort. So sparen Sie Ihre wertvolle Zeit und erhalten eine professionelle und unabhängige Finanzierungslösung vom Spezialisten. Sprechen Sie uns wegen eines Termins gerne an!





Zum Verkauf gelangt eine helle 2-Zimmer Wohnung im 3. Wiener Gemeindebezirk.



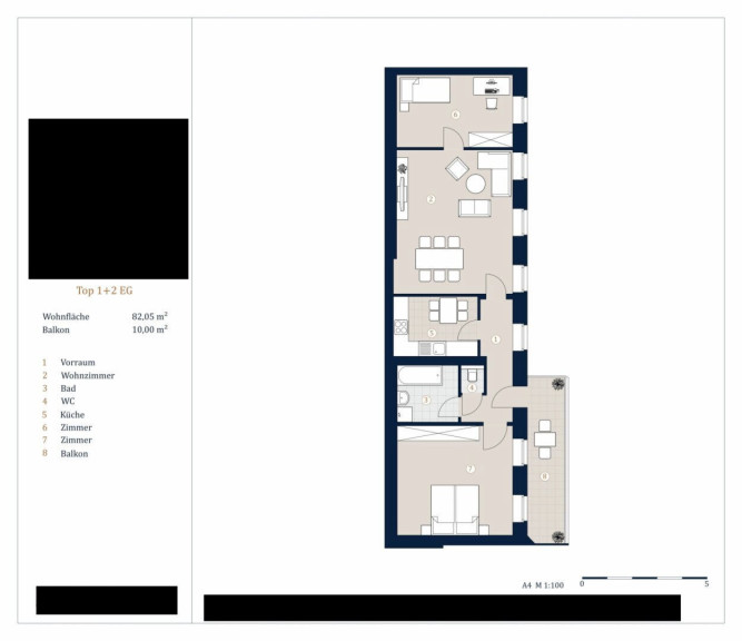
Die Wohnung befindet sich im 1. Stock eines im Jahre 1900 errichteten Altbaus und ist bequem mit einem Lift zu erreichen. Die Wohnfläche von ca. 60 m² gliedert sich in einen Vorraum, ein Wohnzimmer, ein Schlafzimmer, eine Küche, ein Badezimmer und ein separates WC. Die Wohnräume sind mit einem schönen Parkett ausgestattet. Das Bad, der Vorraum und das WC sind mit Fliesen verlegt. Ein Kellerabteil sowie ein Kinderwagen- und Fahrradraum stehen ebenfalls zur Verfügung.



Die Lage zählt mit seiner unmittelbaren Nähe zur Landstraßer Hauptstraße, zu einer sehr begehrten Gegend des 3.Bezirks. Eine perfekte Anbindung an das öffentliche Verkehrsnetz ist ebenfalls durch die Station U3-Kardinal-Nagl-Platz und diverse Buslinien (74A & 77A) gegeben. Tägliche Einkäufe und Shopping Touren können in den unzähligen Geschäften auf der Landstraßer Hauptstraße erledigt werden. Für Momente im Grünen bietet sich der nahe gelegene Arenbergpark an. Die Straßenbahnlinien 1 und 0 sowie die Buslinie N29 liegen fast vor der Haustüre. Zusätzlich erreichen Sie die S-Bahn und U-Bahn Station "Wien Landstraße" in nur wenigen Gehminuten. Das Zentrum Wiens ist nur ein gemütlicher Spaziergang entfernt. 



Die Vertragserrichtung und Treuhandabwicklung ist gebunden an die Kanzlei Mag. Schreiber A-1010 Wien, Schottenring 16. Die Kosten betragen 1,5 % des Kaufpreises zzgl. 20 % USt. sowie Barauslagen und Beglaubigung. Bei Fremdfinanzierung erhöht sich das Honorar auf 1,8 % vom Kaufpreis zzgl. 20 % USt., Barauslagen und Beglaubigung.



Gerne lassen wir Ihnen bei ernsthaftem Interesse - vor Kaufanbotlegung - weitere vertraulichen Dokumente zu dieser Liegenschaft zukommen, welche nicht veröffentlicht werden dürfen.



Überzeugen Sie sich selbst von diesem überaus attraktiven Objekt. Für Besichtigungen und nähere Informationen stehen wir Ihnen gerne zur Verfügung!



Frau Marie-Louise Eisenburger

national - Tel: 0676 605 9800
international - Tel: +43 676 605 9800
e-mail: eisenburger@lifestyle-properties.at


Wir weisen darauf hin, dass zwischen dem Vermittler und dem zu vermittelnden Dritten ein familiäres oder wirtschaftliches Naheverhältnis besteht.


Der Vermittler ist als Doppelmakler tätig.

Infrastruktur / Entfernungen

Gesundheit
Arzt <500m
Apotheke <500m
Klinik <500m
Krankenhaus <500m

Kinder & Schulen
Schule <500m
Kindergarten <500m
Universität <1.000m
Höhere Schule <500m

Nahversorgung
Supermarkt <500m
Bäckerei <500m
Einkaufszentrum <500m

Sonstige
Geldautomat <500m
Bank <500m
Post <500m
Polizei <500m

Verkehr
Bus <500m
U-Bahn <500m
Straßenbahn <1.000m
Bahnhof <500m
Autobahnanschluss <1.500m

Angaben Entfernung Luftlinie / Quelle: OpenStreetMap

Eckdaten Objektnr. 5133

Art: Wohnung - Etage
Land: Österreich
Baujahr: 1900
Zustand: Gepflegt
Alter: Altbau
Kaufpreis: 499.000,00
Provision: 3% des Kaufpreises zzgl. 20% USt.
Wohnfläche: 82,05 m²
Zimmer: 3
Bäder: 1
WC: 1
Balkone: 1
Heizwärmebedarf:  C  80,80 kWh/m²a
fGEE:  C  1,69
Immobilie merken Exposé

Ausstattung

Fliesen, Parkett, Einbauküche, Personenaufzug, Badewanne


Immobilie anfragen


Ihre persönliche Beratung

IM Lifestyle Properties GmbH

Marie-Louise Eisenburger

Lifestyle Properties

T +43 1 512 14 84

H +43 676 6059800