Gumpendorfer Straße: 5-Zimmer-Maisonette mit Terrasse

Wohnung - Maisonette, 1060 Wien , Gumpendorfer Straße


1060 Wien / Gumpendorfer Straße / Mariahilfer Straße / Otto-Bauer-Gasse / Pilgramgasse

Beschreibung der Immobilie

Gumpendorfer Straße: 5-Zimmer-Maisonette mit Terrasse

5-Zimmer-Maisonetten Wohnung in 1060 Wien ab April 2026!







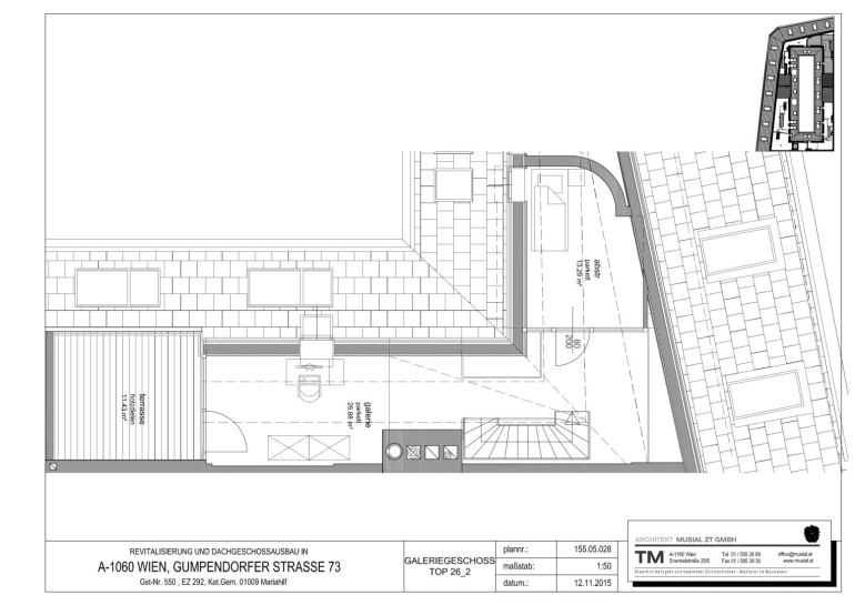
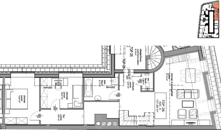
Aufteilung:



unteres Stockwerk: Vorraum, Wohnzimmer inkl. Wohnküche, zwei separate (Schlaf)zimmer, Badezimmer, separates WC



oberes Stockwerk: große Galerie (wird als Zimmer gezählt, ein weiteres separates (Schlaf)zimmer, Zugang zur Terrasse







Beschreibung:



Diese Maisonetten-Wohnung befindet sich im 6. Wiener Gemeindebezirk und liegt im DG des Hauses. 



Beim Betreten der Wohnung gelangen Sie in einen großzügigen Vorraum, der ausreichend Platz für eine Garderobe bietet. Gleich links befindet sich das separat angelegte WC mit Handwaschbecken.



Entlang des Vorraums erreicht man auf der linken Seite das große, lichtdurchflutete Wohnzimmer mit integrierter Wohnküche, das den zentralen Wohnbereich der Wohnung bildet. Auf der rechten Seite befindet sich das Badezimmer, ausgestattet mit Badewanne, Handwaschbecken sowie Waschmaschinenanschluss. Von hier aus führt ein zusätzlicher Flur zu zwei separat begehbaren Schlafzimmern mit ca. 10 m² und 13 m².



Im Eingangsbereich führen Stiegen in das obere Stockwerk der Wohnung. Dort befindet sich eine großzügige Galerie mit ca. 27 m², die als weiterer Wohn- oder Arbeitsbereich genutzt werden kann. Zu beachten ist, dass dieser Bereich offen gestaltet ist und nicht durch eine Tür abgetrennt ist! Zusätzlich steht im Obergeschoss ein weiteres, separat begehbares Zimmer mit ca. 13 m² zur Verfügung.



Ein besonderes Highlight ist die ca. 11,40 m² große Terrasse, die ebenfalls vom oberen Stockwerk aus zugänglich ist und mit Holzdielen ausgestattet ist.





Zusätzlich steht den Bewohner:innen eine kleine Freifläche im Innenhof zur gemeinschaftlichen Nutzung zur Verfügung und bietet eine angenehme Grün- und Erholungsmöglichkeit. Ein eigenes Kellerabteil ist nicht vorhanden, es gibt jedoch einen Gemeinschaftskeller.





Geheizt wird mittels einer Fernwärme-Zentralheizung im Haus. Die Heiz- und Warmwasserkosten sind im Mietentgelt bereits inklusive!:

Ein Aufzug, sowie der Innenhof (Garten) der Anlage sind zur Mitbenützung gestattet.







Hinweis:



Dies sind noch keine Originalbilder der Wohnung! Die abgebildeten Fotos sind Aufnahmen einer vergleichbaren Wohnung innerhalb der Anlage und dienen daher als anschaulicher Vergleich. Aufteilung der Wohnung gemäß dem Grundrissplan.







Lage:



Die Wohnung befindet sich in ausgezeichneter, zentraler Lage und bietet alles, was urbanes Wohnen ausmacht. Cafés, Gasthäuser, Boutiquen, kleine Geschäfte, Supermärkte sowie Lokale des täglichen Bedarfs sind bequem fußläufig erreichbar.



Eine sehr gute Anbindung an die öffentlichen Verkehrsmittel ist gegeben: Die U3 (Zieglergasse/Neubaugasse) sowie die U4 (Pilgramgasse) sind in wenigen Gehminuten erreichbar. Zusätzlich sorgen die Buslinien 57A, 13A und 14A für eine rasche Verbindung in die Innenstadt und andere Wiener Bezirke.



Der Naschmarkt sowie die Mariahilfer Straße befinden sich ebenfalls in unmittelbarer Nähe und unterstreichen die attraktive Lage dieser Wohnung.







Konditionen:



Vermietet wird unbefristet ab voraussichtlich April 2026; auf 5 Jahre befristet



Kündigungsverzicht: 1 JahrKündigungsfrist: 3 Monate;



Gesamtmiete (inkl. BK, Heizung/Warmwasser, sowie Liftkosten und Steuern): € 2.520,-



Kaution: € 7.500, - 





Strom wird auf den Mieter umgemeldet.



TV und Internet sind nach Bedarf selbst an- und wieder abzumelden.



Ein Abschluss einer Haushaltsversicherung wird vor dem Einzug empfohlen.







Weitere Wohnungen:



Im selben Haus werden weitere Wohnungen frei; darunter



  • eine 2-Zimmer Wohnung,
  • zwei 3-Zimmer-Wohnungen und
  • eine weitere 5-Zimmer-Wohnung


in unterschiedlichen Größen und Preissegmenten. Auf Wunsch stellen wir Ihnen gerne detaillierte Informationen zu diesen Angeboten zur Verfügung.







Kontakt



Bitte beachten Sie, dass wir aufgrund der Nachweispflicht gegenüber dem Eigentümer nur Anfragen mit vollständiger Angabe der Anschrift bearbeiten können. 



Wir senden Ihnen gerne weitere und detaillierte Beschreibungen, sowie Besichtigungstermine zu, sobald wir Ihre Anfrage erhalten haben.



Wir bitten Sie daher um eine Email Anfrage an: stifter@pr-immobilien.at



Noch nichts gefunden? Wir informieren Sie über geeignete Immobilienangebote noch vor allen anderen.
Legen Sie jetzt Ihren individuellen Suchagenten unter folgendem Link an. Wir schicken Ihnen passende Immobilien exklusiv vorab zu.

Suchagent anlegen - https://pr-immobilien-real-estate.service.immo/registrieren/de


Der Immobilienmakler erklärt, dass er – entgegen dem in der Immobilienwirtschaft üblichen Geschäftsgebrauch des Doppelmaklers – einseitig nur für den Vermieter tätig ist.

Infrastruktur / Entfernungen

Gesundheit
Arzt <250m
Apotheke <250m
Klinik <250m
Krankenhaus <500m

Kinder & Schulen
Schule <250m
Kindergarten <250m
Universität <1.000m
Höhere Schule <750m

Nahversorgung
Supermarkt <250m
Bäckerei <250m
Einkaufszentrum <500m

Sonstige
Geldautomat <250m
Bank <250m
Post <250m
Polizei <500m

Verkehr
Bus <250m
U-Bahn <500m
Straßenbahn <750m
Bahnhof <500m
Autobahnanschluss <4.250m

Angaben Entfernung Luftlinie / Quelle: OpenStreetMap

Eckdaten Objektnr. 3895

Art: Wohnung - Maisonette
Land: Österreich
Zustand: Voll_saniert
Alter: Altbau
Gesamtmiete: 2.520,01
Kaltmiete (netto): 1.700,00 €
Kaltmiete: 1.991,72 €
Provision: Gemäß Erstauftraggeberprinzip bezahlt der Abgeber die Provision.
Betriebskosten: 257,56 €
Heizkosten: 278,42 €
MwSt Gesamt: 249,87 €
Nutzfläche: 122,00 m²
Zimmer: 5
Bäder: 1
WC: 1
Terrassen: 1
Heizwärmebedarf:  C  65,12 kWh/m²a
fGEE:  C  1,35
Immobilie merken Exposé

Ausstattung

Fliesen, Parkett, Fernwärme, Zentralheizung, Wohnküche / offene Küche, Personenaufzug, Badewanne, Kabel/Satelliten-TV


Immobilie anfragen


Ihre persönliche Beratung

PR-IMMOBILIEN / REAL ESTATE

Marissa Stifter

PR-IMMOBILIEN - REAL ESTATE Paunovic Radisa (Inh. & GF)

T +43 / 676 / 59 00 280

H 0676 / 59 00 280