++NEU++ Exklusives Penthouse-Duplex mit Terrassen & Panoramablick in Bestlage! nahe Mariahilfer Straße und Naschmarkt!

Wohnung - Dachgeschoß, 1060 Wien


Die Wohnung befindet sich in der Gumpendorfer Straße 63c und damit in einer der attraktivsten innerstädtischen Wohnlagen Wiens. Die unmittelbare Nähe zur Mariahilfer Straße bietet ein vielfältiges Angebot an Einkaufsmöglichkeiten, Gastronomie und urbanem Lifestyle. Der Naschmarkt sowie der 1. Bezirk mit seinen kulturellen und historischen Highlights sind in wenigen Minuten bequem erreichbar. Die öffentliche Verkehrsanbindung ist ausgezeichnet. In kurzer Gehdistanz befinden sich die U-Bahn-Linien U3 (Zieglergasse / Neubaugasse), U4 (Kettenbrückengasse bzw. Pilgramgasse) sowie die U6 (Gumpendorfer Straße). Ergänzt wird das Angebot durch die Buslinien 13A und 57A sowie die Straßenbahnlinie 6, wodurch eine schnelle Verbindung in sämtliche Teile der Stadt gewährleistet ist. Auch die Anbindung für Autofahrer ist optimal: Zentrale Verkehrsachsen sind rasch erreichbar, ohne auf die Vorteile des urbanen Wohnens verzichten zu müssen. Die hervorragende Infrastruktur mit Nahversorgung, medizinischer Betreuung, Bildungseinrichtungen sowie zahlreichen Cafés und Restaurants unterstreicht die hohe Lebensqualität dieser Lage.

Beschreibung der Immobilie

++NEU++ Exklusives Penthouse-Duplex mit Terrassen & Panoramablick in Bestlage! nahe Mariahilfer Straße und Naschmarkt!

Diese außergewöhnliche Dachgeschosswohnung vereint urbanen Lifestyle mit exklusivem Wohnkomfort. Auf rund 177 m² erstreckt sich eine hochwertig ausgestattete Maisonette, die durch ihre Großzügigkeit, ihre lichtdurchfluteten Räume und ihre drei Terrassen überzeugt.



Große Fensterflächen sorgen für ein offenes Wohngefühl und ermöglichen beeindruckende Ausblicke auf die Stadt. Das moderne Heiz- und Kühlsystem im Boden garantiert ein angenehmes Raumklima zu jeder Jahreszeit.



Die Wohnung eignet sich ideal für Familien mit Anspruch an Privatsphäre ebenso wie für Käufer mit Fokus auf Wertstabilität und Lagequalität. Drei komfortable Schlafräume, jeweils mit direktem Zugang zu einem eigenen Badezimmer, bieten höchsten Wohnstandard.



Die hochwertige Innenausstattung wurde im Zuge einer umfassenden Sanierung im Jahr 2011 realisiert. Dabei kamen maßgeschneiderte Möbellösungen und eine exklusive Küche zum Einsatz.



Ein stilvoll ausgebauter Weinkeller ergänzt das Angebot und unterstreicht den besonderen Charakter dieser Immobilie.



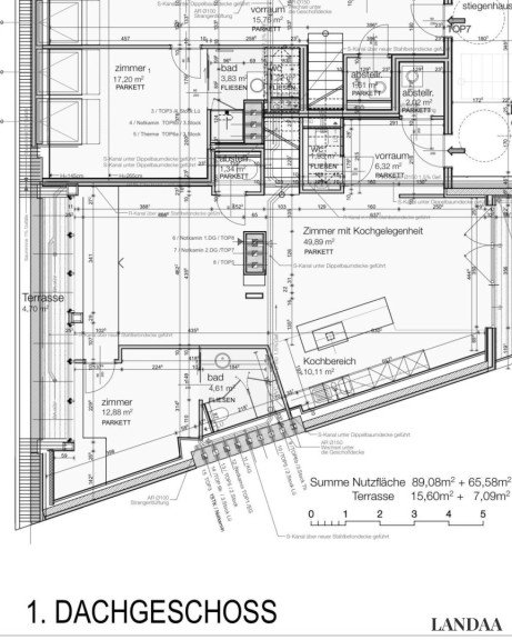
Ebene 1 – ca. 89 m² Wohnfläche



Die erste Wohnebene empfängt Sie mit einem großzügigen Eingangsbereich, der ausreichend Platz für Garderobe und Stauraum bietet und einen harmonischen Übergang in die Wohnräume schafft. Von hier aus öffnet sich der zentral gelegene Koch- und Essbereich, der durch seine offene Gestaltung und klare Linienführung überzeugt. Die Küche ist ideal in den Raum integriert und bildet gemeinsam mit dem Essbereich den kommunikativen Mittelpunkt dieser Etage.



Angrenzend befindet sich die helle Wohnlounge, die durch ihre angenehme Größe vielseitige Einrichtungsmöglichkeiten bietet und direkten Zugang zu einer der Außenflächen ermöglicht. Große Fensterfronten sorgen für viel Tageslicht und ein luftiges Wohngefühl.



Ein ruhig gelegener Schlafraum ergänzt diese Ebene und eignet sich ideal als Hauptschlafzimmer oder Gästebereich. Das dazugehörige Badezimmer ist funktional und hochwertig ausgestattet. Ergänzt wird die Etage durch einen separaten Technikraum sowie einen großzügigen Wirtschafts- und Abstellbereich mit integriertem Waschplatz, der den Alltag besonders komfortabel gestaltet. Ein separates Gäste-WC rundet das Raumangebot dieser Ebene ab.



Zwei Außenflächen auf dieser Etage erweitern den Wohnraum ins Freie und bieten Platz für Entspannung oder gesellige Stunden im Außenbereich.




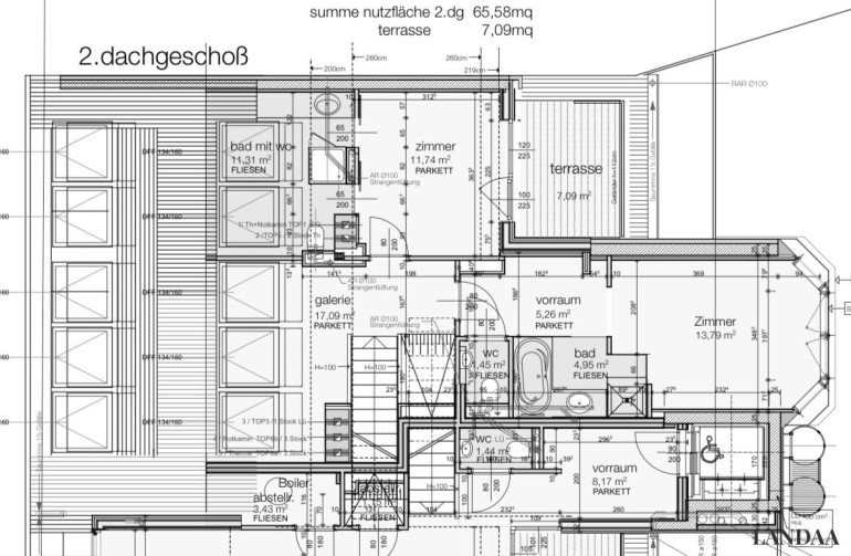
Ebene 2 – ca. 66 m² Wohnfläche



Über eine innenliegende Treppe gelangt man auf die zweite Ebene, die als privater Rückzugsbereich konzipiert ist. Hier eröffnet sich zunächst ein offener Arbeits- oder Galeriebereich, der sich ideal als Homeoffice, Lesezone oder zusätzlicher Aufenthaltsraum eignet und dem Objekt eine besondere architektonische Note verleiht.



Ein zentraler Flur verbindet die Räume dieser Etage und führt zu zwei weiteren, gut geschnittenen Schlafräumen. Beide Zimmer bieten ausreichend Platz für individuelle Nutzungskonzepte – ob als Kinderzimmer, Gästezimmer oder zusätzliche Rückzugsorte.



Zwei modern ausgestattete Badezimmer sorgen auf dieser Ebene für maximalen Komfort und Privatsphäre. Die Anordnung der Räume ist durchdacht und ermöglicht ein angenehmes, ruhiges Wohngefühl.



Ein besonderes Highlight dieser Etage stellt die großzügige Dachterrasse dar. Sie bietet einen beeindruckenden Ausblick und lädt dazu ein, den urbanen Raum aus einer privaten Perspektive zu genießen – ideal für entspannte Stunden im Freien.



Highlights auf einen Blick




  • Hochwertige Penthouse-Maisonette auf zwei Ebenen



  • Drei großzügige Terrassen mit beeindruckendem Ausblick



  • Direkter Blick auf das Haus des Meeres und über die Wiener Innenstadt



  • Zentrale Lage nahe Mariahilfer Straße



  • Maßgefertigte Designermöbel



  • Fußbodenheizung und -kühlung



  • Elektrische Beschattung an allen Fenstern



  • Lift im Haus (Zugang bis Keller)



  • Alarmanlage



  • Optionaler Tiefgaragenplatz (monatlich €150,-)




Diese außergewöhnliche Wohnung vereint großzügiges Raumangebot, hochwertige Ausstattung und exklusive Freiflächen in einer der begehrtesten Lagen Wiens. Die durchdachte Raumaufteilung auf zwei Ebenen, kombiniert mit beeindruckenden Ausblicken und hohem Wohnkomfort, macht die Wohnung sowohl für Eigennutzer als auch für Anleger äußerst attraktiv. Eine seltene Gelegenheit für alle, die urbanes Leben auf höchstem Niveau genießen möchten.



Zur Information bei manchen Bildern handelt es sich hier um Visualisierungen.


Wir weisen darauf hin, dass zwischen dem Vermittler und dem zu vermittelnden Dritten ein familiäres oder wirtschaftliches Naheverhältnis besteht.


Der Vermittler ist als Doppelmakler tätig.

Infrastruktur / Entfernungen

Gesundheit
Arzt <500m
Apotheke <500m
Klinik <500m
Krankenhaus <1.000m

Kinder & Schulen
Schule <500m
Kindergarten <500m
Universität <1.000m
Höhere Schule <1.000m

Nahversorgung
Supermarkt <500m
Bäckerei <500m
Einkaufszentrum <500m

Sonstige
Geldautomat <500m
Bank <500m
Post <500m
Polizei <500m

Verkehr
Bus <500m
U-Bahn <500m
Straßenbahn <1.000m
Bahnhof <500m
Autobahnanschluss <4.500m

Angaben Entfernung Luftlinie / Quelle: OpenStreetMap

Eckdaten Objektnr. 5154

Art: Wohnung - Dachgeschoß
Land: Österreich
Baujahr: 2011
Zustand: Neuwertig
Möbliert: Voll
Alter: Neubau
Kaufpreis: 1.990.100,00
Kaufpreis / m²: 11.243,50 €
Provision: 3% des Kaufpreises zzgl. 20% USt.
Betriebskosten: 354,72 €
MwSt Gesamt: 35,47 €
Wohnfläche: 155,00 m²
Nutzfläche: 177,00 m²
Zimmer: 6
Bäder: 3
WC: 3
Terrassen: 3
Heizwärmebedarf:  C  58,00 kWh/m²a
fGEE:  C  1,00
Immobilie merken Exposé

Ausstattung

Fliesen, Parkett, Elektro, Fußbodenheizung, Kamin, Einbauküche, Wohnküche / offene Küche, Personenaufzug, Westbalkon, Bad mit Fenster, Badewanne, Dusche, Kabel/Satelliten-TV, Parkplatz, Alarmanlage


Immobilie anfragen


Ihre persönliche Beratung

LANDAA Immobilien GmbH

Roman Babadschanov

Landaa Immobilienverwertung GmbH

H +43676 84 37 77 777