Ihr Stil. Ihre Räume. Ihr Zuhause. – so individuell wie Sie.

Wohnung , 1090 Wien , Widerhoferplatz 1


Arne-Karlsson-Park / Altes AKH / Botschaftsviertel

Beschreibung der Immobilie

Ihr Stil. Ihre Räume. Ihr Zuhause. – so individuell wie Sie.

Wiener Eleganz modern interpretiert



  • Repräsentative Lage: Begehrte Adresse am Widerhoferplatz 1 ruhig und doch zentral
  • Sanierte historische Stilaltbauwohngen:
    • Wohnflächen von 104 bis 228 m², 3 bis 6 Zimmer
    • Raumhöhen bis zu 3,65 m, stilvolle Gründerzeit-Atmosphäre
    • Vollständige Sanierung unter Erhalt architektonischer Details

  • Historisches Flair und moderne Ausstattung:
    • Französisches Fischgrätparkett, prachtvolle Stuckleisten, traditionelle Kastenfenster mit Laibungen, hohe Türen im Alt-Wien Stil
    • teils mit nachhaltiger Luftwärmepumpe
    • Fußbodenheizung in allen Räumen für wohlige Wärme
    • Exklusive Bäder mit freistehender Badewanne, Doppelwaschtischen, Markenarmaturen und Marmoroptik-Feinsteinzeug

  • Sicher und smart:
    • Eingangstüren im klassischen Design „Alt Wien“ mit Sicherheitsstandard WK3
    • Innovative Smart-Home-Steuerung (Button-Intelligent-Living): Beleuchtung, Temperatur u.v.m. steuerbar per iPad (inkl. Wandhalterung und Ladestation)
    • Dezente und elegante Beleuchtung von Wand, Boden und Decke

  • Freiflächen: Balkone, Terrassen und ein idyllischer Garten mit Grünblick
  • Zeitloses Wohngefühl:
    • Perfekte Harmonie zwischen historischem Charme und modernen Ansprüchen
    • Barrierefreier Zugang dank Aufzug und Rampen
    • Großzügige, lichtdurchflutete Räume mit unvergleichlichem Ambiente



Ein Meisterwerk Wiener Baukunst – für Kosmopoliten, die das Besondere suchen.



Aktuell stehen zusätzlich 2 Herrschaftswohnungen mit 227 m² und 228 m² zum Verkauf. Optional können diese auch im selben Sanierungsstil wie die anderen Erstbezüge erworben werden.



Auto- und Motorradstellplätze ermöglichen auf Wunsch das komfortable Parken in der hauseigenen Tiefgarage:



  • Hebebühne - EUR 55.000,--
  • Motorradstellplatz - EUR 20.000,-


Lage am Alsergrund – Ärzte-, Bildungs- und Kulturviertel



  • Medizinisches Zentrum:

    • Nähe zu renommierten Einrichtungen wie AKH, St. Anna Kinderspital und Krankenanstalt Goldenes Kreuz
    • Historischer Bezug: Altes AKH heute Universitätscampus mit Instituten und kulinarischen Hotspots

  • Kulturelle Highlights:
    • Volksoper in der Währinger Straße: Oper, Operetten, Musicals und Ballett
    • Liechtensteinpark mit barockem Gartenpalais: Erholung und Einblick in fürstliche Lebenswelt

  • Bildungsstandort: Tradition als Gesundheits- und Universitätsviertel, geprägt von Wissen und Forschung
  • Exzellente Nahversorgung:
    • Ausgezeichnete Restaurants wie Paco (Tapas) oder Café Weimar (klassische Wiener Küche)
    • Einkaufsmöglichkeiten und Dienstleistungen in unmittelbarer Umgebung

  • Hervorragende Anbindung:
    • Straßenbahnlinien in der Währinger Straße mit flotter Innenstadt Route
    • U6-Station Währinger Straße/Volksoper für schnellen Zugang ins historische Zentrum und den Rest der Stadt



Eine perfekte Symbiose aus medizinischer Expertise, kulturellem Reichtum, grüner Erholung und urbanem Lebenskomfort.



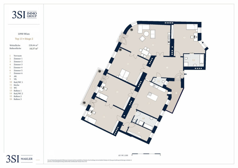
Top 13 - Maßgeschneidertes Wohnen



Zum Verkauf steht eine großzügige 6-Zimmer-Wohnung mit rund 228 m² Wohnfläche und drei charmanten Balkonen in gebrauchten Zustand.



Das Besondere: Die Wohnung wird nicht vorab saniert, sondern in enger Abstimmung mit dem Käufer. So entsteht Ihr ganz persönlicher Wohntraum – maßgeschneidert, hochwertig und stilvoll umgesetzt durch den Bauträger.



Aktuelle Raumaufteilung:



  • Vorraum
  • 6 Zimmer
  • Gäste-WC
  • 2 Bäder mit Toiletten
  • 3 Balkone 
  • 2 Balkone


Durch einen neu konzipierten Grundriss lässt sich das Raumangebot optimal nutzen – so kann eine moderne Wohnung entstehen, die ganz auf Ihre individuellen Wohnbedürfnisse zugeschnitten ist.





Unser Sanierungskonzept: Sie wählen – wir realisieren!



Individuell.
Jede Wohnung wird erst nach dem Kauf nach Ihren persönlichen Vorstellungen saniert – Sie bestimmen Stil, Farben, Materialien und die Aufteilung.



Sicher.
Dank Fixpreis-Garantie und klar definiertem Zeitplan haben Sie volle Kosten- und Planungssicherheit, sowie die Gewährleistung nach den gesetzlichen Bestimmungen.



Exklusiv.
Wählen Sie aus einer Auswahl an hochwertigen Materialien, edlen Oberflächen und stilvollen Ausstattungen.



Komfortabel.
Von der ersten Besichtigung bis zur Schlüsselübergabe – wir begleiten Sie durch alle Schritte und koordinieren Planung, Ausführung und Fertigstellung für Sie. Auf Wunsch begleiten wir Sie gerne bei der Einrichtung und Küchengestaltung.



Vorteile



  • Gestaltungsfreiheit
  • Kostentransparenz
  • Planungssicherheit
  • klare Bauzeiten 
  • Komfort
  • Wertsteigerung 
  • Exklusivität


Ablauf & Service



1. Besichtigung – Sie sehen den Rohzustand.

2. Beratung & Bemusterung – Sie wählen Materialien im Showroom.

3. Sanierung nach Wunsch – wir setzen um.

4. Schlüsselübergabe – Einzug in Ihr maßgeschneidertes Zuhause.



Ihre Wohnung. Ihr Stil. Unsere Umsetzung.





Gerne beraten wir Sie persönlich in unserem 3SI Luxury Estate Showroom in der Kärntner Straße 39, 1010 Wien.



Entdecken Sie vor Ort unsere exklusive Auswahl an Materialien – von edlen Parkettvariationen über stilvolle Fliesen bis hin zu hochwertigen Armaturen.



Öffnungszeiten:



Montag–Freitag: 10:00–18:00 Uhr



Samstag: 10:00–14:00 Uhr



Bei den angeführten Fotos finden Sie Beispielfotos wie Wohnungen nach der Sanierung aussehen können.



Bei diesem Kaufpreis handelt es sich um einen Richtwert, da die von Ihnen gewünschte Sanierung auch individuell anders gestaltet werden kann.



  • Vorraum
  • 6 Zimmer
  • Gäste-WC
  • 2 Bäder mit Toilette
  • 3 Balkone 




Nebenkosten



Der guten Ordnung halber halten wir fest, dass, sofern im Angebot nicht anders vermerkt, bei erfolgreichem Abschlussfall eine Provision anfällt, die den in der Immobilienmaklerverordnung BGBI. 262 und 297/1996 festgelegten Sätzen entspricht – das sind 3 % des Kaufpreises zzgl. 20 % USt. Diese Provisionspflicht besteht auch dann, wenn Sie die Ihnen überlassenen Informationen an Dritte weitergeben. Letztlich weisen wir darauf hin, dass wir als Doppelmakler tätig sind und ein familiäres/wirtschaftliches Naheverhältnis zwischen der 3SI Makler GmbH und der Verkäuferin besteht. 



Die Vertragserrichtung und Treuhandabwicklung ist gebunden an die Kanzlei Dr. Michael Wagner A-1190 Wien, Muthgasse 26. Die Kosten betragen 1,5 % des Kaufpreises zzgl. 20 % USt. sowie Barauslagen und Beglaubigung. 


Der Vermittler ist als Doppelmakler tätig.

Infrastruktur / Entfernungen

Gesundheit
Arzt <100m
Apotheke <175m
Klinik <200m
Krankenhaus <650m

Kinder & Schulen
Schule <275m
Kindergarten <200m
Universität <75m
Höhere Schule <75m

Nahversorgung
Supermarkt <125m
Bäckerei <150m
Einkaufszentrum <1.800m

Sonstige
Geldautomat <150m
Bank <150m
Post <350m
Polizei <150m

Verkehr
Bus <150m
U-Bahn <200m
Straßenbahn <150m
Bahnhof <525m
Autobahnanschluss <1.925m

Angaben Entfernung Luftlinie / Quelle: OpenStreetMap

Eckdaten Objektnr. 21630

Art: Wohnung
Land: Österreich
Baujahr: 1900
Alter: Altbau
Kaufpreis: 3.049.000,00
Provision: 3% des Kaufpreises zzgl. 20% USt.
Wohnfläche: 228,46 m²
Nutzfläche: 246,83 m²
Zimmer: 5
Bäder: 2
WC: 3
Balkone: 3
Heizwärmebedarf:  E  160,58 kWh/m²a
Immobilie merken Exposé

Ausstattung

Parkett, Fliesen, Gas, Fußbodenheizung, Etagenheizung, Personenaufzug, Bad mit Fenster, Badewanne, Dusche, Parkplatz(Duplex), Hebebühne


Immobilie anfragen


Ihre persönliche Beratung

3SI Makler GmbH

Mario Häring

IMMOfair

T +43 1 607 58 58 - 54

H +43 660 94 71 461

F +43 1 607 55 80