ÜBER DEN WOLKEN - DACHGESCHOSSWOHNUNG MIT WEST- UND NORDTERRASSE

Wohnung - Terrassenwohnung, 1110 Wien , Geiselbergstraße


Beschreibung der Immobilie

ÜBER DEN WOLKEN - DACHGESCHOSSWOHNUNG MIT WEST- UND NORDTERRASSE

ZWEZIMMER - KABINETT - DACHGESCHOSSWOHNUNG

MIT WOHNUNGUMFASSENDER TERRASSE

IM 14. STOCKWERK



DEM HIMMEL SCHON SEHR NAHE  :)

WEITBLICK ÜBER DIE STADT



ZENTRAL BEGEHBAR
(bis auf das Kabinett)



dzt. bunt und schlecht ausgemalt

1 MONAT MIETFREISTELLUNG FÜR'S AUSMALEN



Ein Bonitätsnachweis ist für die Anmietung unerlässlich!

(3 Gehaltsbestätigungen über min. € 2.700 Nettobezug,

oder eine Bürgschaft mit hoher Bonität.)

 



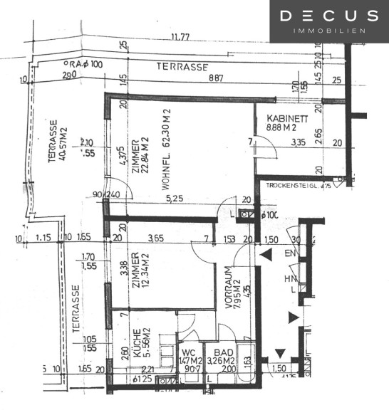
OBJEKT UND AUSSTATTUNG
Gut eingeteilte 2,5 Zimmerwohnung im obersten Stockwerk

eines im Jahr 1977 erbauten, gepflegten und großzügigen Neubaus.



Ein zentrales, um's Eck führendes Vorzimmer erschließt

das Wohn- und das Schlafzimmer,

sowie das Bad, das WC und die Küche.
Aus dem Wohzimmer öffnet sich ein Kabinett.


Die Terrasse ist aus dem Wohnraum zu betreten und umschließt
in beide Richtungen die Wohnung, west -und nordseitig.


Die Küche ist mit einer einfachen Einbauküche ausgestattet.

Das Badezimmer hat Dusche und  Waschbecken.
Das WC ist separat.



Die Fußböden sind Laminat und keramische Fliesen.

Die Heizung und die Warmwasserbereitung erfolgt mittels Fernheizung.



Ein trockener Kellerabteil steht zur Verfügung,

es ist ein Fahrradabstellraum vorhanden,

sowie eine sehr große Waschküche mit mehreren Geräten.



Es gibt eine Warteliste für PKW Stellplätze bei der Hausverwaltung.




MIETE
Gesamtmiete: rd. € 1.189 inkl BK und USt.

Kaution: € 3.500



Mietvertagskosten: € 150 + 20% USt


Heizung: dzt. € 77   ( Fernwärme)

Warmwasser: dzt. € 55  ( Fernwärme)




LAGE UND UMFELD
Die infrastrukturelle Versorgung ist durch ein Einkaufsszentrum im Hause ideal.

Die Nähe  Schnellbahnstation Geiselbergstraßeund etliche Buslinien

gewähleisten eine gute Verkehrsanbindung.

 












Der Immobilienmakler erklärt, dass er – entgegen dem in der Immobilienwirtschaft üblichen Geschäftsgebrauch des Doppelmaklers – einseitig nur für den Vermieter tätig ist.

DECUS Immobilien GmbH – Wir beleben Räume

Für weitere Informationen und Besichtigungen steht Ihnen gerne Herr  Elemér Szüts unter der Mobilnummer +43 664 11 888 16und per E-Mail unter szuets@decus.at persönlich zur Verfügung.

www.decus.at | office@decus.at 

Wichtige Informationen

Bitte beachten Sie, dass per 13.06.2014 eine neue Richtlinie für Fernabsatz- und Auswärtsgeschäfte in Kraft getreten ist.

Ab 1.4.2024 entfallen die Grundbuchs- und Pfandrechtseintragungsgebühren vorübergehend für Eigenheime bis zu einer Bemessungsgrundlage von EUR 500.000,-. Voraussetzung ist das dringende Wohnbedürfnis, ausgenommen davon sind vererbte oder geschenkte Immobilien. Die Befreiung ist jedoch für den Einzelfall zu prüfen, DECUS Immobilien übernimmt hierzu keine Haftung.

Ab 01.07.2023 gilt das Erstauftraggeber-Prinzip bei Wohnungsmietverträgen, ausgenommen davon sind Dienst-/Natural-/Werkswohnungen. Wir dürfen gem. § 17 Maklergesetz darauf hinweisen, dass wir auf die Doppelmaklertätigkeit gem. § 5 Maklergesetz bei Wohnungsmietverträgen verzichten und nur noch einseitig tätig sind (bei den restlichen Vermittlungsarten nicht) und ein wirtschaftliches Naheverhältnis zu unseren Auftraggebern besteht. 

Im Falle eines Abschlusses mit Ihnen oder einem von Ihnen namhaft gemachten Dritten bzw. bei beidseitiger Willensübereinstimmung beträgt unser Honorar (lt. Honorarverordnung für Immobilienmakler) 2 Bruttomonatsmieten (BMM) bei Dienst-/Natural-/Werkwohnungen sowie Suchaufträgen, 3 BMM bei Gewerbe-, PKW-, Keller- und Lagermietverträgen sowie bei Kaufobjekten 3 % des Kaufpreises, zuzüglich der gesetzlichen Umsatzsteuer.

Dieses Objekt wird Ihnen unverbindlich und freibleibend angeboten. Oben angeführte Angaben basieren auf Informationen und Unterlagen des Eigentümers und sind unsererseits ohne Gewähr.

Nähere Informationen sowie unsere AGBs und die Nebenkostenübersichtsblatt finden Sie auf unserer Homepage www.decus.at unter "Service" - "Rechtliches zum FAGG" sowie im Anhang der zugesendeten Objekt-Exposés!

Infrastruktur / Entfernungen

Gesundheit
Arzt <250m
Apotheke <250m
Klinik <250m
Krankenhaus <2.500m

Kinder & Schulen
Schule <250m
Kindergarten <500m
Universität <1.000m
Höhere Schule <1.750m

Nahversorgung
Supermarkt <250m
Bäckerei <250m
Einkaufszentrum <1.000m

Sonstige
Geldautomat <750m
Bank <750m
Post <750m
Polizei <750m

Verkehr
Bus <250m
U-Bahn <750m
Straßenbahn <250m
Bahnhof <250m
Autobahnanschluss <500m

Angaben Entfernung Luftlinie / Quelle: OpenStreetMap

Eckdaten Objektnr. 1151788

Art: Wohnung - Terrassenwohnung
Land: Österreich
Baujahr: 1977
Zustand: Gepflegt
Alter: Neubau
Gesamtmiete: 1.188,92
Kaltmiete (netto): 912,00 €
Kaltmiete: 1.080,84 €
Provision: Gemäß Erstauftraggeberprinzip bezahlt der Abgeber die Provision.
Betriebskosten: 168,84 €
MwSt Gesamt: 108,08 €
Wohnfläche: 63,00 m²
Nutzfläche: 104,00 m²
Gesamtfläche: 104,00 m²
Zimmer: 2,50
Bäder: 1
WC: 1
Terrassen: 1
Heizwärmebedarf:  C  91,80 kWh/m²a
fGEE:  D  2,10
Immobilie merken Exposé

Ausstattung

Fliesen, Parkettboden, Zentralheizung, Einbauküche, Personenaufzug, Westbalkon, Dusche, Wasch/Trockenraum


Immobilie anfragen


Ihre persönliche Beratung

DECUS Immobilien GmbH

Elemér Szüts

DECUS Immobilien GmbH

T +43 664 11 888 16

H +43 664 11 888 16

F +43 1 35 600 10