Stilvoll & Urban – Moderne 1-Zimmer-Wohnung im liebevoll revitalisierten Altbau mit Klimaanlage und perfekter U3-Anbindung im Herzen des 3. Bezirks

Wohnung , 1030 Wien , Markhofgasse


Die Markhofgasse im 3. Wiener Gemeindebezirk besticht durch ihre ausgezeichnete Infrastruktur und ideale Verkehrsanbindung. Die U-Bahn-Station Schlachthausgasse (U3) befindet sich praktisch um die Ecke und ermöglicht eine schnelle Verbindung in die Innenstadt sowie zu wichtigen Verkehrsknotenpunkten. Einkaufsmöglichkeiten, Supermärkte, Bäckereien und Geschäfte des täglichen Bedarfs liegen direkt vor der Haustüre. Cafés, Restaurants und Grünflächen in der Umgebung sorgen zusätzlich für hohe Lebensqualität. Eine ideale Lage für urbanes Wohnen mit kurzen Wegen

Beschreibung der Immobilie

Stilvoll & Urban – Moderne 1-Zimmer-Wohnung im liebevoll revitalisierten Altbau mit Klimaanlage und perfekter U3-Anbindung im Herzen des 3. Bezirks

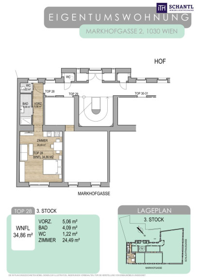
Diese charmante 1-Zimmer-Wohnung befindet sich im 3. Stock eines liebevoll sanierten Altbauhauses aus dem Jahr 1905 in begehrter Lage der Markhofgasse im 3. Wiener Gemeindebezirk



Der offen gestaltete Wohnbereich überzeugt durch eine bereits integrierte Einbauküche. Moderne goldene Akzente verleihen der Küche sowie dem Wohnbereich einen eleganten und stilvollen Charakter.



Ein absolutes Highlight ist die Ausstattung mit einer Klimaanlage, die auch an heißen Sommertagen für ein angenehmes Raumklima und höchsten Wohnkomfort sorgt.



Die Wohnung verfügt über ein separates WC sowie ein modernes Badezimmer mit beleuchtetem Spiegel, Sprossenheizkörper und einer barrierefreien Walk-in-Dusche.



Diese Immobilie eignet sich ideal für Singles, Stadtliebhaber oder Anleger, die Wert auf eine gelungene Kombination aus historischem Flair und moderner Ausstattung legen.



Auf Kosten des Verkäufers werden/wurden aktuell noch die Fenster erneuert und neue 3-fach isolierte Fenster eingebaut sowie die Wohnungseingangstüren erneuert.



Ebenso wird ein Lift (für jeden nutzbar)  in den kommenden 3 Jahren eingebaut, ohne dass Ihnen dabei Errichtungskosten entstehen.





Kaufpreis 200.000 €



Wohnfläche 34,86 m² + 4,58 m² Kellerabteil



**Mehrere Wohnungen im Haus verfügbar! Wir zeigen Ihnen gerne alle verfügbaren Einheiten**





Unser Service für Sie: Wenn Sie sich für diese Immobilie entschieden haben, begleiten wir Sie gerne vom Kaufanbot weg inkl. Klärung von Sonderwünschen und der Vertragsunterzeichnung über die Wohnungsübergabe bis hin zu diversen Ummeldungen wie Strom und Gas. Entsprechende Formulare oder auch Meldezettel stellen wir Ihnen sehr gerne zur Verfügung.



Gerne unterstützen wir Sie auch bei der Finanzierung Ihres Traumobjekts und finden mit unseren langjährigen Partnern die besten Konditionen für Sie.



Vereinbaren Sie noch heute einen Termin, wir beraten Sie gerne!



www.schantl-ith.at


Wir weisen darauf hin, dass zwischen dem Vermittler und dem zu vermittelnden Dritten ein familiäres oder wirtschaftliches Naheverhältnis besteht.


Der Vermittler ist als Doppelmakler tätig.

Infrastruktur / Entfernungen

Gesundheit
Arzt <500m
Apotheke <250m
Klinik <750m
Krankenhaus <750m

Kinder & Schulen
Schule <500m
Kindergarten <250m
Universität <750m
Höhere Schule <750m

Nahversorgung
Supermarkt <250m
Bäckerei <250m
Einkaufszentrum <1.000m

Sonstige
Geldautomat <500m
Bank <500m
Post <500m
Polizei <500m

Verkehr
Bus <250m
U-Bahn <250m
Straßenbahn <250m
Bahnhof <250m
Autobahnanschluss <500m

Angaben Entfernung Luftlinie / Quelle: OpenStreetMap

Eckdaten Objektnr. 291970

Art: Wohnung
Land: Österreich
Baujahr: 1905
Zustand: Modernisiert
Alter: Altbau
Kaufpreis: 200.000,00
Provision: 3% des Kaufpreises zzgl. 20% USt.
Betriebskosten: 82,87 €
MwSt Gesamt: 8,29 €
Wohnfläche: 34,86 m²
Zimmer: 1
Bäder: 1
WC: 1
Keller: 4,58 m²
Heizwärmebedarf:  D  116,50 kWh/m²a
fGEE:  D  2,26
Immobilie merken Exposé

Ausstattung

Fliesen, Laminatboden, Gas, Etagenheizung, Einbauküche, Dusche, Kabel/Satelliten-TV


Immobilie anfragen


Ihre persönliche Beratung

Schantl ITH Immobilientreuhand GmbH

Marlies Sprinzl

Schantl ITH Immobilientreuhand GmbH

T +43 664 30 7000 9

H +436609094554