Elegantes Domizil

Haus - Einfamilienhaus, 7543 Kukmirn


Beschreibung der Immobilie

Elegantes Domizil

Hoher Wohnkomfort - Exklusive Ausstattung - Fantastischer Blick über das Südburgenländische Hügelland!



Ich freue mich auf Ihren Anruf!

Franz Lind +43 699 1008 5785,   +43 1 526 26 36 13



Wir freuen uns, Ihnen ein außergewöhnliches Zuhause in einer wunderschönen Lage im südlichen Burgenland nahe der steirischen Grenze anbieten zu dürfen!



Eingebettet in die idyllische Hügellandschaft des Südburgenlandes, liegt dieses exklusive Domizil mit einer Wohnnutzfläche von 178qm auf einem 10.886qm großen Grundstück.

Die Liegenschaft wurde 2019 fertiggestellt und befindet sich in ausgezeichnetem Zustand.



Lage:
Das südliche Burgenland und die südöstliche Steiermark zählen zu den sonnenreichsten und wärmsten Gebieten in Österreich! Das Gebäude befindet sich auf einem Hügel an einem ruhigen Platz mit Fernblick.



Räume und Flächen:
Im Eingangsbereich erwartet Sie eine Garderobe und eine Gästetoilette.

Wohnraum und Küche umfassen eine Fläche von 53qm.

Weitere 4 Zimmer von 12 bis 19qm bieten viel Raum und Rückzugmöglichkeiten.

2 Badezimmer mit 2 Toiletten ergänzen den gehobenen Standard.

Der vom Vorzimmer aus zu begehende Wirtschaftsraum mit seinen 12qm hält ausreichend Platz für Waschmaschine, Trockner, Staubsauger und alle im Haushalt wichtigen Utensilien bereit.

Die sonnenreiche, westseitige Terrasse mit 19qm ist von nahezu allen Räumlichkeiten zu betreten.



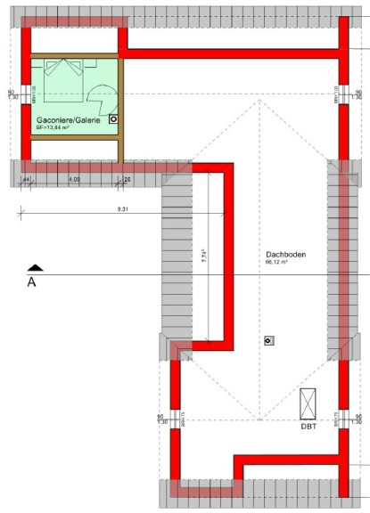
Aktuell wird das Gebäude, wie Sie auf den Plänen im Erdgeschoß und Dachgeschoß sehen, für 2 Wohneinheiten mit 2 Eingängen genutzt.  

Die große Einheit umfasst 140qm, die kleine Einheit 38qm. Die kleine Fläche ist als Maissonette ausgeführt und ideal als Einliegerwohnung für z.B. ein Kindermädchen, für eine Haushaltshilfe oder als Einnahmequelle in der Vermietung.

Eine Zusammenlegung beider Einheiten ist einfach durchführbar.



Zusätzlich bietet sich die noch ungenutzte Fläche am Dachboden für weitere Räumlichkeiten zum Ausbau an.  



Ausstattung:
Böden: Landhausdiele und Fliesen

Fenster: 3-fachverglasung

Beschattung der Fenster: Außensonnenschutz

Beschattung der Terrasse: Transparent Sonnenschutz

2 Komplettküchen



Technik:
Fotovoltaikanlage 4,5KW

Solaranlage

Luftwärmepumpe

Kaminofen im Wohnzimmer

Kleiner Ofen in der 2. Wohneinheit



Nebengebäude:
Carport für 2 Autos

Angebauter Raum für Gartengeräte und Abfallbehälter



Infrastruktur:
Fans der Kulinarik finden in Kukmirn und in den naheliegenden Orten gutgeführte Restaurants und Gasthöfe.

Die neue, an die Südautobahn A2 angebundene Schnellstraße S7 hat Autobahncharakter und reduziert die Fahrzeiten Richtung Graz oder Wien erheblich.

Die größeren Städte im Umfeld wie Güssing, Fürstenfeld, Oberwart und Hartberg sind mit jeweils einer Fahrzeit von 15-20 Min. erreichbar.



Kaufpreise und Grundstücksflächen:
Gebäude 178qm Wohnfläche, Nebengebäude (Carport mit Geräteraum)

Grundstück                       6.977qm        857.000,- EUR



Optionale Flächen:
Bauland Dorf 80 / Grünland 20 Prozent 3.909qm und

zwei angrenzende landwirtschaftlich genutzte Flächen mit in Summe 10.847qm stehen ebenfalls zum Kauf zur Verfügung.                         



Resümee:
Ein repräsentativer Platz mit besonderem Erholungswert, eine Liegenschaft von hoher Qualität in der Bausubstanz und Ausstattung.

Das Preis- Leistungsverhältnis ist absolut stimmig und ist von fachlicher Seite sehr empfehlenswert!



Info: Die im Text verwendeten Flächenangaben sind circa Angaben und gerundet.



Ich freue mich auf Ihren Anruf!

Franz Lind +43 699 1008 5785,   +43 1 526 26 36 13



Keine Gewähr bei Abweichungen der Flächen und Preise etc.



Energieklasse:  HWB  Ref,SK 47   f GEE,SK 0,61



Im Falle des Zustandekommens eines Kaufvertrages, ist an uns die gesetzliche Provision in Höhe von 3 % des Kaufpreises zzgl. der gesetzlichen Umsatzsteuer laut der Verordnung des Bundesministers für wirtschaftliche Angelegenheiten über Standes- und Ausübungsregel für Immobilienmakler (BGBI. 297/1996), zu bezahlen.








Wir weisen darauf hin, dass zwischen dem Vermittler und dem zu vermittelnden Dritten ein familiäres oder wirtschaftliches Naheverhältnis besteht.


Der Vermittler ist als Doppelmakler tätig.

Eckdaten Objektnr. 1760/730

Art: Haus - Einfamilienhaus
Land: Österreich
Baujahr: 2019
Zustand: Neuwertig
Möbliert: Teil
Alter: Neubau
Kaufpreis: 875.000,00
Provision: 3% des Kaufpreises zzgl. 20% USt.
Wohnfläche: 178,00 m²
Nutzfläche: 178,00 m²
Grundstücksfl.: 6.977,00 m²
Zimmer: 5
Bäder: 2
WC: 2
Terrassen: 1
Heizwärmebedarf:  B  47,00 kWh/m²a
fGEE:  A+  0,61
Immobilie merken Exposé

Ausstattung

Dielenboden, Fliesen, Steinboden, Fußbodenheizung


Immobilie anfragen


Ihre persönliche Beratung

Lind Immobilien

Franz Lind

Lind Immobilien

T +43 1 526 26 36 13

H +43 699 1008 5785