U3 Gasometer: Modern Living mit Balkon + Hippe Umgebung
Wohnung
- Terrassenwohnung,
1030
Wien
Beschreibung der Immobilie
U3 Gasometer: Modern Living mit Balkon + Hippe Umgebung
5.Liftstock mit Balkon und 3 Minuten bis zur U3 Gasometer - Hippe, urbane Umgebung.
Die moderne Wohnhausanlage bietet eine kleine Shopping Mall, einen Kindergarten, Gemeinschaftsräume, Park
mit Sitzgelegenheit, kleinen Supermarkt.
Heizung/Warmwasser: Fernwärme (Fußbodenheizung), Vertrag mit Energieanbieter durch Mieter.
Am Weg zur U3 Gasometer kommen Sie am Gourmet-Spar, Kino Hollywood Megaplex, Bank Austria, asiatischen Lebensmitteln, Cafe/Restaurant, Biker-Shop und einem Geschäft für Hochzeitskleidung vorbei.
Eckdaten:
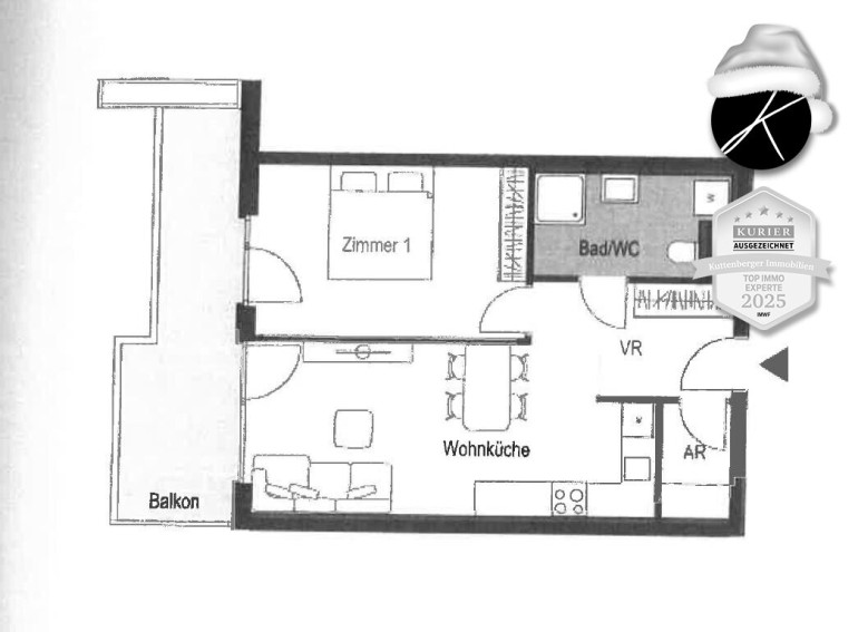
- Wohnfläche ca. 49 m² plus Balkon mit ca.12 m²
- Wohnzimmer/Küche 20m² mit Zugang Balkon
- Schlafzimmer 14 m² mit Zugang Balkon
- modernes Badezimmer
- moderne Küche mit allen Geräten
- Vorzimmer
- praktischer Abstellraum
- moderner Keller
* * * * * * * * * * * * * * * * * *
KUTTENBERGER IMMOBILIEN - die Spezialisten für Wohnimmobilien & Zinshäuser -ausgezeichnet* mit den Qualitätssiegeln IMMO CHAMPION 2023, TOP IMMO EXPERTE 2024 und TOP IMMO EXPERTE 2025! (*von Kurier und dem IMWF - Institut für Management und Wirtschaftsforschung)
Jetzt neu: ✆ WhatsApp Assistent
Unverbindliche Beratung zu unseren Leistungen bequem über WhatsApp anfragen!
Weitere Online-Services auf www.kuttenberger-immo.at:
- Vormerkkunde werden und Angebote erhalten? - - - Suchagent anlegen - - -
- Sie möchten eine Immobilie verkaufen? - - - Beratung anfragen - - -
- Die passende Finanzierung finden? - - - Online Kreditrechner - - -
- Wieviel ist meine Immobilie wert? - - - Immobilie online bewerten - - -
- Künftig keine Immo-News verpassen? - - - Email-Newsletter anmelden - - -
* * * * * * * * * * * * * * * * * *
Wir weisen darauf hin, dass zwischen dem Vermittler und dem zu vermittelnden Dritten ein familiäres oder wirtschaftliches Naheverhältnis besteht.
Der Immobilienmakler erklärt, dass er – entgegen dem in der Immobilienwirtschaft üblichen Geschäftsgebrauch des Doppelmaklers – einseitig nur für den Vermieter tätig ist.
Infrastruktur / Entfernungen
Gesundheit
Arzt <500m
Apotheke <500m
Klinik <500m
Krankenhaus <2.000m
Kinder & Schulen
Schule <500m
Kindergarten <500m
Universität <1.500m
Höhere Schule <1.500m
Nahversorgung
Supermarkt <500m
Bäckerei <500m
Einkaufszentrum <500m
Sonstige
Geldautomat <500m
Bank <1.000m
Post <1.000m
Polizei <1.500m
Verkehr
Bus <500m
U-Bahn <500m
Straßenbahn <1.000m
Bahnhof <500m
Autobahnanschluss <1.000m
Angaben Entfernung Luftlinie / Quelle: OpenStreetMap
Eckdaten Objektnr. 8164/2626
| Art: | Wohnung - Terrassenwohnung |
| Land: | Österreich |
| Baujahr: | 2020 |
| Zustand: | Neuwertig |
| Gesamtmiete: | 908,48 € |
| Kaltmiete (netto): | 706,77 € |
| Kaltmiete: | 825,89 € |
| Provision: | Gemäß Erstauftraggeberprinzip bezahlt der Abgeber die Provision. |
| Betriebskosten: | 119,12 € |
| MwSt Gesamt: | 82,59 € |
| Wohnfläche: | 49,00 m² |
| Zimmer: | 2 |
| Bäder: | 1 |
| WC: | 1 |
| Balkone: | 1 |
| Heizwärmebedarf: | A 18,00 kWh/m²a |
Ausstattung
Parkett, Fußbodenheizung, Einbauküche, Personenaufzug
Ihre persönliche Beratung
Josef Huber
Kuttenberger Makler GmbH
T +43 676 6878555
H +43 676 6878555