Leben wie im Paradies – 4-Zimmer-PENTHOUSE mit Rundumblick von der großzügigen Dachterrasse! Erstbezug 2024!

Wohnung , 8401 Kalsdorf bei Graz , Zirbenweg


Dieses innovative Wohnbauprojekt mit insgesamt 117 Wohneinheiten befindet sich in der reizenden Marktgemeinde Kalsdorf, welche weniger als 15 Minuten von Graz entfernt ist. Profitieren Sie von einem umfassenden Freizeitangebot (Sporthalle, Eislaufplatz, Hallenbad etc.), ausreichend Einkaufmöglichkeiten und eine atemberaubende Landschaft mit herrlich grünen Wiesen. Darüber hinaus befinden sich Supermärkte, Ärzte und Apotheken in unmittelbarer Nähe.

Beschreibung der Immobilie

Leben wie im Paradies – 4-Zimmer-PENTHOUSE mit Rundumblick von der großzügigen Dachterrasse! Erstbezug 2024!

Leben wie im Paradies – 4-Zimmer-PENTHOUSE mit Rundumblick von der großzügigen Dachterrasse! Erstbezug 2024!



Erstbezug - Fertigstellung 2024! PROVISIONFREI! 





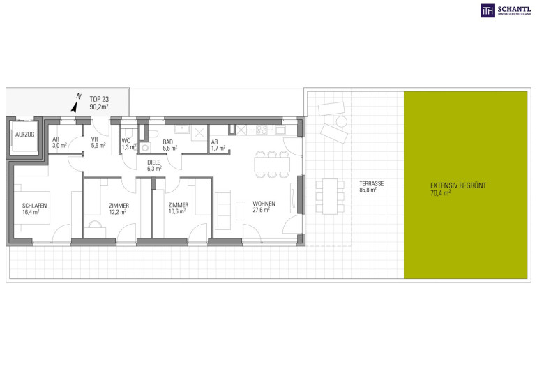
Diese traumhafte 4-Zimmer-PENTHOUSE-WOHNUNG wird gerade in einem höchst modernen Bauprojekt in Kalsdorf bei Graz errichtet. 



Zu den Highlights des PENTHOUSE zählt ganz klar die 85 m² große Dachterrasse mit RUNDUMBLICK, welcher ausreichend Platz für gemütliche Grillabende mit der Familie oder mit Freunden bietet.



Weiters besticht die ca. 91 m² große Wohnung durch ihren effizienten Grundriss sowie die offene Wohnraumgestaltung. Alle Zimmer sind in Richtung Nachmittagssonne ausgerichtet. Hier bleiben definitiv keine Wünsche offen!



Gebaut wird in Ziegel-Massiv-Bauweise mit perfekter österreichischer Baumeisterqualität. 



 



Raumaufteilung:



  • Vorraum 
  • Praktischer Abstellraum 
  • Speis
  • 3 Zimmern (alle mit Ausgang auf die Dachterrasse) 
  • Badezimmer mit Dusche
  • WC
  • Offener Wohn-Essbereich mit Küche und Zugang auf die Dachterrasse 

     


HIGHLIGHTS:



  • große, traumhafte Dachterrasse
  • Ausgang auf die Terrasse von allen Zimmern
  • nur 4 Einheiten gesamt auf der Etage
  • Penthouse mit Premiumausstattung
  • hochwertiger Parkettboden, Eiche matt 
  • elektrisch gesteuerte Raffstores 
  • 3-fach-Verglasung, Kunststofffenster 
  • Haus-Satellitenanlage/SAT-Anschluss
  • hauseigener Tiefgaragen-Stellplatz um € 19.000,-
  • Wasseranschluss auf der Dachterrasse

     


Weitere verfügbare Wohnungsgrößen: 38m² - 117m² 



Ihr Vorteil: Sie können Ihre Wünsche für die Innenplanung einbringen und umsetzen lassen, sofern es die Statik und der Baufortschritt erlauben. 



Da sich das Objekt noch in der Bauphase befindet, wurden zur Visualisierung Symbolbilder verwendet.





Worauf noch warten?



Vereinbaren Sie noch heute eine Besichtigung oder eine persönliche Beratung mit uns!



Sie wollen Ihre Immobilie verkaufen? Dann sind Sie bei uns goldrichtig!




Wir sind gerne für Sie da und unterstützen Sie unverbindlich bei der Bewertung Ihrer Immobilie. Mit viel Sorgfalt stellen wir Ihnen alle wichtigen Informationen und Unterlagen zusammen, damit Sie die besten Entscheidungen treffen können.



In Kooperation mit unserer SFI Vermögenstreuhand begleiten wir Sie bei der Verwirklichung Ihres Traumobjekts und unterstützen Sie beim nachhaltigen Vermögensaufbau.



Mit unseren erfahrenen Experten sorgen wir dafür, dass Sie die besten Konditionen erhalten – damit Ihre Träume Wirklichkeit werden!



www.schantl-ith.at in Kooperation mit www.sfi-invest.com 



Die Angaben über das angebotene Objekt erfolgen mit der Sorgfalt eines ordentlichen Immobilienmaklers; für die Richtigkeit solcher Angaben, die auf Informationen der über das Objekt Verfügungsberechtigten beruhen, wird keine Gewähr geleistet.


Wir weisen darauf hin, dass zwischen dem Vermittler und dem zu vermittelnden Dritten ein familiäres oder wirtschaftliches Naheverhältnis besteht.


Der Vermittler ist als Doppelmakler tätig.

Infrastruktur / Entfernungen

Gesundheit
Arzt <250m
Apotheke <2.500m
Klinik <9.000m
Krankenhaus <7.000m

Kinder & Schulen
Schule <1.750m
Kindergarten <1.500m
Universität <8.000m
Höhere Schule <8.750m

Nahversorgung
Supermarkt <750m
Bäckerei <2.500m
Einkaufszentrum <5.250m

Sonstige
Geldautomat <2.250m
Bank <2.250m
Post <2.500m
Polizei <2.000m

Verkehr
Bus <500m
Straßenbahn <5.750m
Autobahnanschluss <3.500m
Bahnhof <2.000m
Flughafen <2.250m

Angaben Entfernung Luftlinie / Quelle: OpenStreetMap

Eckdaten Objektnr. 291960

Art: Wohnung
Land: Österreich
Baujahr: 2023
Zustand: Erstbezug
Alter: Neubau
Kaufpreis: 549.000,00
Provision: Provision bezahlt der Abgeber.
Wohnfläche: 91,00 m²
Zimmer: 4
Terrassen: 1
Heizwärmebedarf:  B  37,00 kWh/m²a
fGEE:  A+  0,70
Immobilie merken Exposé

Ausstattung

Parkett, Fliesen, Fußbodenheizung, Wohnküche / offene Küche, Westbalkon, Dusche, Kabel/Satelliten-TV, Tiefgarage


Immobilie anfragen


Ihre persönliche Beratung

Schantl ITH Immobilientreuhand GmbH

Christopher Wischenbart, BSc

Schantl ITH Immobilientreuhand GmbH

T +43 664 5411047

H +43 664 2507403