Traumhaus mit unverbaubarem Fernblick über Graz, ein tägliches Privileg - Jetzt zuschlagen.

Haus - Einfamilienhaus, 8042 Graz,08.Bez.:Sankt Peter


Beschreibung der Immobilie

Traumhaus mit unverbaubarem Fernblick über Graz, ein tägliches Privileg - Jetzt zuschlagen.

In einer der begehrtesten Wohnlagen von Graz entsteht ein außergewöhnliches Neubauprojekt, das es in dieser Form kaum noch gibt. Es werden nur drei freistehende Einfamilienhäuser realisiert, eines davon ist bereits an eine glückliche Familie verkauft also seien Sie schnell und erfüllen sich Ihren langersehnten Traum vom Eigenheim.



Gute Angebote sind rar, was bleibt, ist die seltene Möglichkeit, ein freistehendes Neubau Einfamilienhaus mit Garten, Pool, Dachterrasse und unverbaubarem Stadtblick über Graz in St. Peter zu erwerben. Nutzen Sie diese einmalige Chance und gestalten Ihr Traumhaus nach eigenen Wünsche und Bedürfnissen. 





Vorteile im Überblick:



> Planung und Fertigstellung nach Wunsch



> Ruhelage in exklusiver Wohngegend



> Begehrte Süd -/ Westausrichtung



> Erhöhter Standort mit freiem, unverbaubarem Blick



> Wenig Bebauung, hohe Privatsphäre



> Ausgezeichnete Infrastruktur & Anbindung



> Perfekte Balance aus Stadtnähe und Ruhe



Ein herausragendes Merkmal dieses Hauses ist der freie, unverbaubare Stadtblick über Graz. Durch die erhöhte Lage und die sorgfältige Planung bleibt dieser Ausblick dauerhaft erhalten. Ob vom Wohnbereich, von den großzügigen Terrassen oder von der Dachterrasse dieser Ausblick vermittelt Weite, Ruhe und Exklusivität. In Zeiten zunehmender Nachverdichtung ist eine unverbaubare Aussicht ein echter Mehrwert: nicht reproduzierbar, wertstabil und nachhaltig. Das Haus ist großzügig, modern und hochwertig. Die Architektur ist klar, zeitlos und auf langfristige Wohnqualität ausgelegt.



Fakten im Überblick: 



> Wohnfläche: ca. 154,3 m²



>Grundstück: ca. 550 m²



> Drei vollwertige Schlafzimmer



> Zwei hochwertige Bäder



> Zwei separate WCs



> Eigener Waschraum



> Offener Wohn-Ess-Kochbereich



> Zirka 140 m² Terrassenflächen inkl. Dachterrasse



> Doppelcarport mit 18 m² Kellerersatzraum



> Zusätzlicher Außenstellplatz

 



Der Grundriss überzeugt durch eine offene, großzügige Raumaufteilung und eine klare Trennung von Wohn- und Rückzugsbereichen. Die Kombination aus 154 m² Wohnfläche und außergewöhnlich großen Außenflächen schafft ein Wohngefühl von Weite, Licht und Privatsphäre. Der offen gestaltete Wohn-, Ess- und Kochbereich bildet das Herzstück des Hauses. Große Fensterflächen sorgen für viel Tageslicht und eröffnen den Blick in den Garten, zum Pool und über Graz. Der direkte Zugang zu den Terrassen schafft eine fließende Verbindung zwischen Innen- und Außenraum.



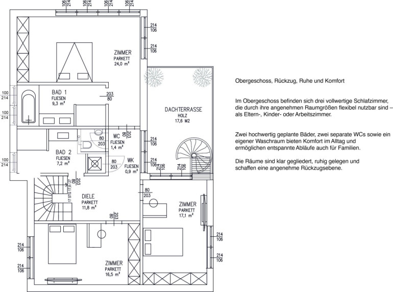
Im Obergeschoss befinden sich drei großzügig geplante Schlafzimmer, flexibel nutzbar als Eltern-, Kinder- oder Arbeitszimmer. Zwei elegant gestaltete Bäder, zwei WCs sowie ein separater Waschraum sorgen für Komfort und entspannte Abläufe im Alltag.





Das Haus wird schlüsselfertig übergeben, ohne Baustress, ohne Überraschungen, mit Fixpreisgarantie und mit fixiertem Übergabedatum.

 



Im Kaufpreis inkludiert: 



> Hochwertige Premium Einbauküche



> Exklusive Sanitärausstattung & Premium Bäder



> Moderne Luft-Wärmepumpe



> Fußbodenheizung



> Hochwertige Materialien & Ausführung



> Fixpreis-Garantie € 949.900, -





Neugierig geworden? Dann melden Sie sich gerne jederzeit unverbindlich unter: +43 677 61510 881.





Als gewerbliche Vermögensberater bieten wir Ihnen zusätzlich die passende Finanzierung Ihrer Traumimmobilie zu den besten Konditionen! 





Wir möchten Sie informieren, dass ein Provisionsanspruch erst nach Unterzeichnung eines Miet- oder Kaufanbots besteht. Besichtigungen und  Auskünfte sind selbstverständlich unverbindlich und kostenlos. Oben angeführte Angaben basieren auf Informationen und Unterlagen des Eigentümers und sind unsererseits ohne Gewähr. Wir dürfen gem. § 5 Maklergesetz darauf hinweisen, dass wir als Doppelmakler tätig sind und ein wirtschaftliches Naheverhältnis zu unserem Auftraggeber besteht.


Hinweis gemäß Energieausweisvorlagegesetz: Ein Energieausweis wurde vom Eigentümer bzw. Verkäufer, nach unserer Aufklärung über die generell geltende Vorlagepflicht, sowie Aufforderung zu seiner Erstellung noch nicht vorgelegt. Daher gilt zumindest eine dem Alter und der Art des Gebäudes entsprechende Gesamtenergieeffizienz als vereinbart. Wir übernehmen keinerlei Gewähr oder Haftung für die tatsächliche Energieeffizienz der angebotenen Immobilie.


Wir weisen darauf hin, dass zwischen dem Vermittler und dem zu vermittelnden Dritten ein familiäres oder wirtschaftliches Naheverhältnis besteht.


Der Vermittler ist als Doppelmakler tätig.

Infrastruktur / Entfernungen

Gesundheit
Arzt <500m
Apotheke <2.000m
Klinik <4.000m
Krankenhaus <4.500m

Kinder & Schulen
Schule <1.000m
Kindergarten <2.000m
Universität <2.500m
Höhere Schule <4.500m

Nahversorgung
Supermarkt <1.000m
Bäckerei <1.500m
Einkaufszentrum <1.500m

Sonstige
Geldautomat <1.000m
Bank <2.000m
Post <2.000m
Polizei <2.000m

Verkehr
Bus <500m
Straßenbahn <2.000m
Autobahnanschluss <2.000m
Bahnhof <1.500m
Flughafen <8.000m

Angaben Entfernung Luftlinie / Quelle: OpenStreetMap

Eckdaten Objektnr. 6352/2536

Art: Haus - Einfamilienhaus
Land: Österreich
Zustand: Projektiert
Alter: Neubau
Kaufpreis: 949.900,00
Provision: 3% des Kaufpreises zzgl. 20% USt.
Wohnfläche: 154,30 m²
Nutzfläche: 158,00 m²
Grundstücksfl.: 550,00 m²
Zimmer: 4
Bäder: 2
WC: 3
Terrassen: 3
Stellplätze: 2
Immobilie merken Exposé

Ausstattung

Fliesen, Parkett, Fußbodenheizung, Wohnküche / offene Küche, Bad mit Fenster, Badewanne, Dusche, Carport


Immobilie anfragen


Ihre persönliche Beratung

AURELIUM REAL ESTATE GmbH

AURELIUM REAL ESTATE

AURELIUM REAL ESTATE GmbH

T +43 677 61510881

H +4367761616848