Stylische 3-Zimmer-Wohnung mit großzügigem Loft-Gefühl zu kaufen!

Wohnung , 6322 Kirchbichl


Wir befinden uns in einem ruhigen Wohngebiet von Kirchbichl, unweit des Inns. Die Umgebung ist von gepflegten Einfamilienhäusern und kleineren Wohnanlagen geprägt und bietet eine angenehme, familienfreundliche Atmosphäre. In wenigen Gehminuten erreicht man Naherholungsflächen am Innufer, die sich gut für Spaziergänge, Radfahren oder sportliche Aktivitäten eignen. Auch Infrastruktur wie Supermärkte, Bäckereien, Kinderbetreuungseinrichtungen und Schulen befindet sich im erweiterten Umfeld und ist bequem per Fahrrad oder Auto erreichbar. Die Verkehrsanbindung ist dabei sehr gut: Über die nahegelegenen Hauptstraßen gelangt man rasch nach Wörgl, Kufstein sowie zu den regionalen Verkehrsachsen. Trotz der guten Erreichbarkeit bleibt die Wohnlage ruhig und ist nicht vom Durchzugsverkehr belastet.

Beschreibung der Immobilie

Stylische 3-Zimmer-Wohnung mit großzügigem Loft-Gefühl zu kaufen!

Exklusiv mit Zefi Immobilien – Stilvolle 3-Zimmer-Loftwohnung in Kirchbichl zu kaufen – historischer Charme trifft moderne Premium-Ausstattung



Diese außergewöhnliche 3-Zimmer-Wohnung vereint den einzigartigen Charakter eines kernsanierten historischen Gebäudes mit modernster Ausstattung und zeitgemäßem Wohnkomfort. Edle Materialien und ein offen gestaltetes Wohnkonzept prägen das besondere Flair dieser Immobilie.

Der ausgeprägte Loft-Charakter kann durch das setzen einer zusätzlichen Wand auf Wunsch gezielt akzentuiert oder abgemildert werden – Details hierzu gerne auf Anfrage. Ein Personenaufzug, ein Kellerabteil sowie ein zugeordneter Stellplatz sorgen für zusätzlichen Komfort.



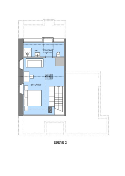
Die Raumaufteilung



Beim Betreten der Wohnung empfängt Sie ein großzügiger Flur, der nahtlos in den offenen Wohn- und Küchenbereich übergeht. Historische Details, liebevoll erhalten, verleihen dem Raum einen besonderen Charme und eine zeitlose Eleganz.

Die modern integrierte Küche fügt sich harmonisch in das offene Raumkonzept ein und bildet gemeinsam mit dem Wohnbereich das stilvolle Herzstück der Wohnung. Vom Wohnbereich aus gelangt man auf den ruhigen Balkon, der an sonnigen Tagen zu entspannten Momenten im Freien einlädt.



Die Immobilie verfügt zudem über zwei geschmackvoll gestaltete Schlafzimmer:

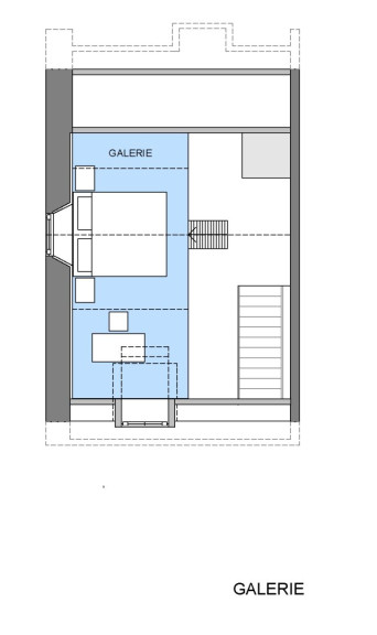
Über eine stilvolle Holztreppe gelangt man in den ersten Stock zum Master-Schlafzimmer mit eigenem Badezimmer en suite, ausgestattet mit edlen Armaturen, einer Walk-in-Dusche und hochwertigen Oberflächen – ein exklusiver Rückzugsort zum Wohlfühlen.

Das zweite, großzügig geschnittene Schlafzimmer lädt mit seinem hellen, freundlichen Ambiente zum Wohlfühlen ein und bietet vielfältige Nutzungsmöglichkeiten – sei es als gemütliches Gästezimmer, inspirierendes Homeoffice oder liebevoll eingerichtetes Kinderzimmer.



Ein zusätzliches, modern ausgestattetes Badezimmer mit Duschwanne und WC steht ebenfalls zur Verfügung und sorgt für optimalen Komfort.



Ausstattung & Highlights




  • kernsaniertes historisches Gebäude



  • hochwertige Ausstattung & stilvolle Loft-Elemente



  • 100 m2 Wohnfläche



  • offener Wohn- und Küchenbereich



  • 2 Schlafzimmer



  • 2 moderne Badezimmer



  • sonniger Balkon



  • Personenaufzug



  • eigener Stellplatz



  • Kellerabteil



  • energieeffiziente Haustechnik mit Fußbodenheizung



  • hochwertige Bodenbeläge und edle Materialien




Lage und Infrastruktur



Wir befinden uns in einem ruhigen Wohngebiet von Kirchbichl, unweit des Inns. Die Umgebung ist von gepflegten Einfamilienhäusern und kleineren Wohnanlagen geprägt und bietet eine angenehme, familienfreundliche Atmosphäre. In wenigen Gehminuten erreicht man Naherholungsflächen am Innufer, die sich gut für Spaziergänge, Radfahren oder sportliche Aktivitäten eignen. Auch Infrastruktur wie Supermärkte, Bäckereien, Kinderbetreuungseinrichtungen und Schulen befindet sich im erweiterten Umfeld und ist bequem per Fahrrad oder Auto erreichbar. 



Die Verkehrsanbindung ist dabei sehr gut: Über die nahegelegenen Hauptstraßen gelangt man rasch nach Wörgl, Kufstein sowie zu den regionalen Verkehrsachsen. Trotz der guten Erreichbarkeit bleibt die Wohnlage ruhig und ist nicht vom Durchzugsverkehr belastet.




Vereinbaren Sie noch heute einen unverbindlichen Besichtigungstermin und entdecken Sie dieses außergewöhnliche Wohnjuwel persönlich!



Weitere attraktive Immobilienangebote finden Sie auf zefi.at

Noch nichts gefunden? Wir informieren Sie über geeignete Immobilienangebote noch vor allen anderen.
Legen Sie jetzt Ihren individuellen Suchagenten unter folgendem Link an. Wir schicken Ihnen passende Immobilien exklusiv vorab zu.

Suchagent anlegen - https://zefi-immobilien.service.immo/registrieren/de


Wir weisen darauf hin, dass zwischen dem Vermittler und dem zu vermittelnden Dritten ein familiäres oder wirtschaftliches Naheverhältnis besteht.


Der Vermittler ist als Doppelmakler tätig.

Infrastruktur / Entfernungen

Gesundheit
Arzt <1.500m
Apotheke <1.500m
Klinik <2.500m
Krankenhaus <9.500m

Kinder & Schulen
Schule <500m
Kindergarten <1.000m
Höhere Schule <9.500m

Nahversorgung
Supermarkt <1.000m
Bäckerei <2.000m
Einkaufszentrum <2.000m

Sonstige
Bank <1.500m
Geldautomat <1.500m
Polizei <2.000m
Post <1.500m

Verkehr
Bus <500m
Autobahnanschluss <1.000m
Bahnhof <2.000m
Flughafen <8.000m

Angaben Entfernung Luftlinie / Quelle: OpenStreetMap

Eckdaten Objektnr. 5390/1076

Art: Wohnung
Land: Österreich
Baujahr: 2018
Zustand: Voll_saniert
Alter: Neubau
Kaufpreis: 569.000,00
Kaufpreis / m²: 5.648,76 €
Provision: 3% des Kaufpreises zzgl. 20% USt.
Betriebskosten: 416,22 €
Wohnfläche: 100,73 m²
Nutzfläche: 100,73 m²
Zimmer: 3
Bäder: 2
WC: 1
Terrassen: 1
Stellplätze: 1
Immobilie merken Exposé

Ausstattung

Parkett, Fliesen, Gas, Zentralheizung, Fußbodenheizung, Einbauküche, Personenaufzug, Bad mit Fenster, Badewanne, Dusche, Kabel/Satelliten-TV, Parkplatz


Immobilie anfragen


Ihre persönliche Beratung

Zefi Immobilien GmbH

Fabio Schiegl

Zefi Immobilien GmbH

T +43 5332 22818

H +43 681 840 980 87