Büro / Praxis in Top-Innenstadtlage bei Oper & Kärntner Straße

Büro / Praxis , 1010 Wien


Wiener Staatsoper, Kärntnerstraße

Beschreibung der Immobilie

Büro / Praxis in Top-Innenstadtlage bei Oper & Kärntner Straße

Zur Vermietung steht ein ruhig gelegenes Büro/Praxisobjekt in absoluter Innenstadtlage, nur wenige Schritte von der Wiener Staatsoper und der Kärntner Straße entfernt.



Die Fläche befindet sich im 1. Liftstock eines gepflegten Hauses und ist in den ruhigen Innenhof ausgerichtet.




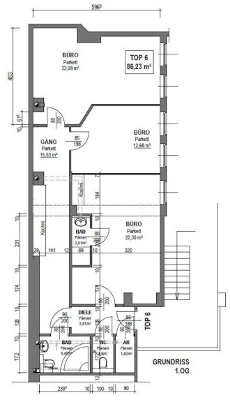
Raumaufteilung




  • Drei separate Räume – vielseitig nutzbar als Arbeits-, Beratungs- oder Behandlungsräume



  • Einer der Räume mit eigener Miniküche und Duschbad



  • Zusätzliche Küche im Gangbereich (voll ausgestattet)



  • Bad mit Badewanne



  • Separates WC



  • Abstellraum / Technikraum mit Waschmaschinenanschluss



  • Vorraum / Eingangsbereich





Lage & Infrastruktur




  • U1, U2, U4 – Karlsplatz / Oper (2–3 Gehminuten)



  • Straßenbahnlinien 1, 2, D, 71, 62



  • U3 Stephansplatz rasch erreichbar



  • Geschäfte, Restaurants, Cafés und Dienstleister in direkter Umgebung





Kosten




  • € 1.650 netto inkl. BK / Monat



  • zuzüglich 20 % USt (bzw. entsprechende steuerliche Behandlung je nach Nutzung)



  • Kaution: 3 Bruttomonatsmieten



  • Provision: 3 Monatsmieten + 20%



  • Kosten der Vergebührung des Mietvertrags 



Hinweis gemäß Energieausweisvorlagegesetz: Ein Energieausweis wurde vom Eigentümer bzw. Verkäufer, nach unserer Aufklärung über die generell geltende Vorlagepflicht, sowie Aufforderung zu seiner Erstellung noch nicht vorgelegt. Daher gilt zumindest eine dem Alter und der Art des Gebäudes entsprechende Gesamtenergieeffizienz als vereinbart. Wir übernehmen keinerlei Gewähr oder Haftung für die tatsächliche Energieeffizienz der angebotenen Immobilie.

Infrastruktur / Entfernungen

Gesundheit
Arzt <500m
Apotheke <500m
Klinik <1.000m
Krankenhaus <1.500m

Kinder & Schulen
Schule <500m
Kindergarten <500m
Universität <500m
Höhere Schule <500m

Nahversorgung
Supermarkt <500m
Bäckerei <500m
Einkaufszentrum <500m

Sonstige
Geldautomat <500m
Bank <500m
Post <500m
Polizei <500m

Verkehr
Bus <500m
U-Bahn <500m
Straßenbahn <500m
Bahnhof <500m
Autobahnanschluss <3.500m

Angaben Entfernung Luftlinie / Quelle: OpenStreetMap

Eckdaten Objektnr. 2283-2

Art: Büro / Praxis
Land: Österreich
Baujahr: 1952
Alter: Neubau
Kaltmiete (netto): 1.650,00 €
Kaltmiete: 1.650,00 €
Provision: 3 Bruttomonatsmieten zzgl. 20% USt.
MwSt Gesamt: 330,00 €
Nutzfläche: 86,23 m²
Zimmer: 3
Bäder: 2
WC: 2
Immobilie merken Exposé

Ausstattung

Parkett, Fliesen, Gas, Etagenheizung, Einbauküche, Personenaufzug, Badewanne, Dusche, Kabel/Satelliten-TV


Immobilie anfragen


Ihre persönliche Beratung

David Roth

Roth Immobilien

H +43 660 450 81 55