Preisreduktion! Stilvoll wohnen über den Dächern Wiens – ein 3-Zimmer-Dachgeschoßtraum mit 34 m² großer Sonnenterrasse

Wohnung - Dachgeschoß, 1100 Wien,Favoriten , Erlachgasse


Die Dachgeschoßwohnung in der Erlachgasse 1100 Wien vereint urbanes Wohnen mit hervorragender Anbindung. Nur wenige Minuten vom Hauptbahnhof entfernt, genießen Sie die Vorzüge eines pulsierenden Stadtlebens. Zahlreiche Einkaufsmöglichkeiten, Ärzte, Banken und Bildungseinrichtungen befinden sich in unmittelbarer Nähe. Optimal vernetzt mit öffentlichen Verkehrsmitteln, erreichen Sie schnell alle wichtigen Ziele.

Beschreibung der Immobilie

Preisreduktion! Stilvoll wohnen über den Dächern Wiens – ein 3-Zimmer-Dachgeschoßtraum mit 34 m² großer Sonnenterrasse

Willkommen in Ihrem neuen Zuhause - Die Wohnung befindet sich im ersten Dachgeschoss und wird im Sommer 2025 schlüsselfertig übergeben



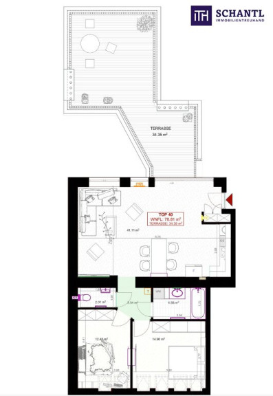
Auf rund 78,81 m² Wohnfläche eröffnet sich Ihnen ein stilvolles Wohnkonzept mit optimaler Raumaufteilung und hochwertiger Ausstattung.



Ein großzügiges, offenes Wohnzimmer bildet das Herzstück der Wohnung und bietet direkten Zugang zur ca. 34 m² großen Terrasse, die sich ruhig und sonnig zum Innenhof orientiert – ideal für entspannte Stunden im Freien, Grillabende oder als grüne Oase mitten in der Stadt.



Zwei weitere Zimmer bieten flexible Nutzungsmöglichkeiten als Schlafzimmer, Kinderzimmer, Homeoffice oder Gästezimmer.



Das moderne Badezimmer ist mit einer komfortablen Badewanne ausgestattet – ein Ort zum Wohlfühlen und Entspannen. Ebenso verfügt die Wohnung über ein separates WC.



Die Wohnung wird mit einem Eichenholzparkettboden ausgestattet, der in Kombination mit der komfortablen Fußbodenheizung für eine angenehme Wohnatmosphäre sorgt. Eine effiziente Luftwärmepumpe übernimmt die Beheizung der Wohnung und an heißen Tagen sorgt die integrierte Klimaanlage für ein kühles, angenehmes Raumklima.





Ausstattungsdetails im Überblick:



  • Großzügiger Wohnbereich mit Zugang zur hofseitigen Terrasse
  • 34 m² Außenfläche mit hochwertigem WPC Belag
  • Fußbodenheizung in allen Wohnräumen
  • Luftwärmepumpe – nachhaltig und energiesparend
  • Klimaanlage für optimalen Wohnkomfort im Sommer
  • Hochwertiger Eichenparkettboden
  • Bad mit Badewanne
  • Separates WC
  • Schlüsselfertige Ausführung – sofort bezugsfertig nach Fertigstellung
  • Personenlift im Haus
  • Ruhige Innenhoflage




Kaufpreis: 469.000 € schlüsselfertig



Wohnfläche 78,81 m² + 34,35 m² Terrasse





Überzeugen Sie sich selbst bei einer Besichtigung – wir freuen uns auf Ihre Anfrage!





Unser Service für Sie: Wenn Sie sich für diese Immobilie entschieden haben, begleiten wir Sie gerne vom Kaufanbot weg inkl. Klärung von Sonderwünschen und der Vertragsunterzeichnung über die Wohnungsübergabe bis hin zu diversen Ummeldungen wie Strom und Gas. Entsprechende Formulare oder auch Meldezettel stellen wir Ihnen sehr gerne zur Verfügung.



Gerne unterstützen wir Sie auch bei der Finanzierung Ihres Traumobjekts und finden mit unseren langjährigen Partnern die besten Konditionen für Sie.



Vereinbaren Sie noch heute einen Termin, wir beraten Sie gerne!



www.schantl-ith.at


Wir weisen darauf hin, dass zwischen dem Vermittler und dem zu vermittelnden Dritten ein familiäres oder wirtschaftliches Naheverhältnis besteht.


Der Vermittler ist als Doppelmakler tätig.

Infrastruktur / Entfernungen

Gesundheit
Arzt <500m
Apotheke <250m
Klinik <1.000m
Krankenhaus <2.500m

Kinder & Schulen
Schule <500m
Kindergarten <250m
Universität <250m
Höhere Schule <1.750m

Nahversorgung
Supermarkt <250m
Bäckerei <500m
Einkaufszentrum <1.500m

Sonstige
Geldautomat <500m
Bank <500m
Post <500m
Polizei <1.250m

Verkehr
Bus <250m
U-Bahn <1.000m
Straßenbahn <250m
Bahnhof <500m
Autobahnanschluss <750m

Angaben Entfernung Luftlinie / Quelle: OpenStreetMap

Eckdaten Objektnr. 291905

Art: Wohnung - Dachgeschoß
Land: Österreich
Baujahr: 2023
Zustand: Neuwertig
Alter: Neubau
Kaufpreis: 469.000,00
Provision: 3% des Kaufpreises zzgl. 20% USt.
Betriebskosten: 185,67 €
MwSt Gesamt: 18,57 €
Wohnfläche: 78,81 m²
Zimmer: 3
Bäder: 1
WC: 1
Terrassen: 1
Heizwärmebedarf:  A  23,36 kWh/m²a
fGEE:  A+  0,59
Immobilie merken Exposé

Ausstattung

Fliesen, Parkett, Fußbodenheizung, Personenaufzug, Badewanne


Immobilie anfragen


Ihre persönliche Beratung

Schantl ITH Immobilientreuhand GmbH

Marlies Sprinzl

Schantl ITH Immobilientreuhand GmbH

T +43 664 30 7000 9

H +436609094554