Attraktive Büroräumlichkeiten direkt im Zentrum von Kirchberg-Thening

Büro / Praxis , 4062 Kirchberg-Thening


Beschreibung der Immobilie

Attraktive Büroräumlichkeiten direkt im Zentrum von Kirchberg-Thening

Im Herzen von Kirchberg-Thening, direkt im Ortszentrum, steht diese frisch sanierte Bürofläche mit ca. 98 m² zur Vermietung. Die Immobilie überzeugt durch ihre helle und lichtdurchflutete Gestaltung.



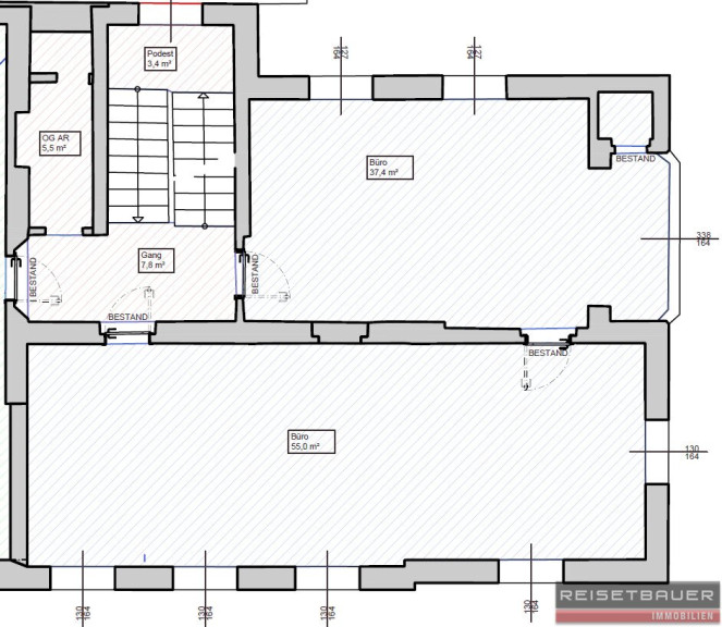
Die Büroeinheit umfasst zwei großzügig geschnittene Büros mit ca. 37 m² und ca. 55 m², die viel Platz für Arbeitsplätze und flexible Nutzungsmöglichkeiten bieten. Ergänzt wird die Fläche durch ein WC.



Vor dem Objekt stehen mehrere Parkplätze zur Vermietung zur Verfügung.



Öffentliche Verkehrsmittel befinden sich in unmittelbarer Nähe, sodass eine bequeme Erreichbarkeit gewährleistet ist.

Infrastruktur / Entfernungen

Gesundheit
Arzt <1.000m
Apotheke <4.000m
Klinik <4.500m

Kinder & Schulen
Kindergarten <500m
Schule <500m
Universität <8.000m

Nahversorgung
Supermarkt <1.000m
Bäckerei <3.500m
Einkaufszentrum <6.500m

Sonstige
Bank <1.500m
Geldautomat <1.500m
Post <4.000m
Polizei <4.000m

Verkehr
Bus <500m
Straßenbahn <6.500m
Bahnhof <1.500m
Autobahnanschluss <8.500m
Flughafen <4.000m

Angaben Entfernung Luftlinie / Quelle: OpenStreetMap

Eckdaten Objektnr. 5738/2493

Art: Büro / Praxis
Land: Österreich
Zustand: Neuwertig
Kaltmiete (netto): 984,00 €
Kaltmiete: 1.092,62 €
Provision: 3 Bruttomonatsmieten zzgl. 20% USt.
Betriebskosten: 108,62 €
Heizkosten: 40,62 €
MwSt Gesamt: 219,12 €
Bürofläche: 98,40 m²
Zimmer: 2
Immobilie merken Exposé

Immobilie anfragen


Ihre persönliche Beratung

Reisetbauer Immobilien GmbH

Nathalie Kapl

Reisetbauer Immobilien GmbH

T +43 732 66 51 80

H +43 664 461 54 45