2-Zimmer Premiumwohnung- nahe der Festung Hohensalzburg!

Wohnung - Erdgeschoß, 5020 Salzburg , Johannes-Filzer-Straße 4


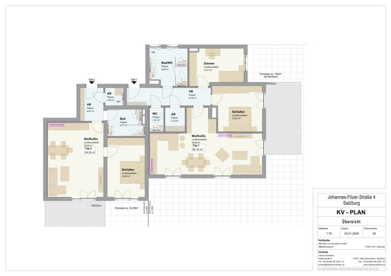
Die beeindruckende 2-Zimmer Wohnung befindet sich in unmittelbarer Nähe zum Volksgarten, Bürglstein, Salzachkai, zur Altstadt sowie der Festung Hohen Salzburg. Perfekte Infrastruktur! 5026 Salzburg - Johannes Filzer Straße 4/ Top 2

Beschreibung der Immobilie

2-Zimmer Premiumwohnung- nahe der Festung Hohensalzburg!

  • Feines kleines Mehrparteienhaus mit nur 7 Wohneinheiten
  • Gediegener und sehr gepflegter Gebäudezustand 
  • Erstbezug nach Generalsanierung
  • Südseitige Sonnenterrasse mit großzügigem Privatgarten
  • 1 Tiefgaragenstellplatz  
  • Zeitlos. Elegant. Durchdacht.

    - Massivbauweise

    - Weiße Kunststofffenster mit Alu-Beklipsung und 3-Scheiben Isolierverglasung

    - Zwischenwände Bestand Massiv, zum Teil - neue Trockenbauwände (2-fach beplankt)

    - Fertigparkettdielen Fa. Bauwerk „VILLAPARK“, Eiche

    - Vorraum, Bad, WC und Abstellraum keramischen Bodenfliesen (80x80cm) in beige

    - Terrasse mit Natursteinplatten / Feinsteinzeug Top 2 inkl. Pergola-Überdachung

    - Weiße Innentüren mit Holzzargen

    - Fensterelemente und Terrassentüren mit Rollladen (elektrisch bedienbar)

    - Umfangreiche Elektroausstattung

    - Gaszentralheizung

    - Fußbodenheizung mit Einzelraumregelung in Wohn- und Schlafräumen sowie im Bad

    - Gediegene Sanitärausstattung “Laufen Pro”


Diese Stadtwohnung spiegelt die perfekte Kombination wieder für alle, die Lebensqualität und Stadtnähe schätzen und Premiumwohnen bevorzugen!



Bezug und Fertigstellung im Juni 2026



Provisionsfrei - direkt vom Eigentümer



Energieausweis in Arbeit

Infrastruktur / Entfernungen

Gesundheit
Arzt <175m
Apotheke <875m
Klinik <775m
Krankenhaus <825m

Kinder & Schulen
Schule <200m
Kindergarten <250m
Universität <675m
Höhere Schule <1.775m

Nahversorgung
Supermarkt <150m
Bäckerei <750m
Einkaufszentrum <900m

Sonstige
Bank <675m
Geldautomat <675m
Post <1.050m
Polizei <275m

Verkehr
Bus <200m
Bahnhof <900m
Autobahnanschluss <4.075m
Flughafen <4.525m

Angaben Entfernung Luftlinie / Quelle: OpenStreetMap

Eckdaten Objektnr. 5594/1207

Art: Wohnung - Erdgeschoß
Land: Österreich
Baujahr: 1994
Zustand: Erstbezug
Kaufpreis: 570.000,00
Wohnfläche: 54,30 m²
Zimmer: 2
Bäder: 1
WC: 1
Terrassen: 1
Garten: 14,00 m²
Keller: 4,82 m²
Immobilie merken Exposé

Ausstattung

Parkett, Fliesen, Fußbodenheizung, Zentralheizung, Fernwärme, Personenaufzug, Südbalkon, Dusche, Kabel/Satelliten-TV, Tiefgarage, Wasch/Trockenraum


Immobilie anfragen


Ihre persönliche Beratung

Viktoria Wohnbau Vertrieb

Viktoria-Haus Immobilien - und Bauträgergesellschaft mbH

T +43 662 85 16 00-23