Bauträger und Baufirmen aufgepasst! 3 Einfamilienhäusern mit Studie - Terrassen, Gärten, Balkonen und Carport für 2 Autos!

Grundstück , 2331 Vösendorf


Ruhige und familienfreundliche Wohnlage in Vösendorf mit hervorragender Nahversorgung. Kindergärten, Schulen, Spielplätze und Einkaufsmöglichkeiten befinden sich in direkter Umgebung – ideal für Familien, die naturnah und dennoch stadtnah leben möchten. Attraktive Wohnlage in Vösendorf mit ausgezeichneter Verkehrsanbindung: Die Nähe zur A2, S1 und Badner Bahn ermöglicht eine schnelle Erreichbarkeit von Wien. Gleichzeitig genießen Sie die Ruhe eines Wohngebiets mit hohem Freizeitwert und Nähe zur Shopping City Süd.

Beschreibung der Immobilie

Bauträger und Baufirmen aufgepasst! 3 Einfamilienhäusern mit Studie - Terrassen, Gärten, Balkonen und Carport für 2 Autos!

Zum Verkauf: Baugrundstück in Vösendorf – Ideale Gelegenheit für Investoren und Bauherren!



Wir freuen uns, Ihnen ein exklusives Baugrundstück in Vösendorf präsentieren zu dürfen – perfekt geeignet für zukunftsorientierte Investoren und Bauträger.



Grundstücksdaten im Überblick:




  • Lage: Vösendorf – eine dynamisch wachsende Gemeinde im Nahbereich von Wien.



  • Fläche: Großzügige 736 m².



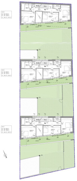
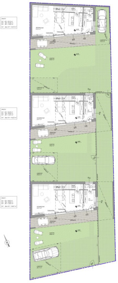
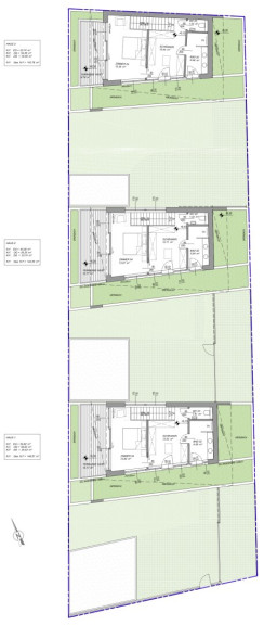
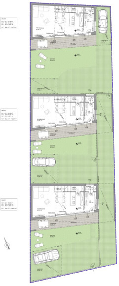
  • Baupotenzial: Ein bereits vorliegender Studie bestätigt die Möglichkeit zur Errichtung von drei Einfamilienhäusern.




Bebauungsbestimmungen:




  • Bebaubare Fläche: 33 % der Gesamtfläche



  • Bauweise: o, g, k (offen, geschlossen, gekuppelt)



  • Bauklasse I: Zulässige Gebäudehöhe bis zu 6 m




Modernes Wohnkonzept:



Das geplante Bauvorhaben sieht ein innovatives Wohnkonzept über drei Ebenen vor – Erdgeschoss, Obergeschoss und Dachgeschoss. Die Häuser bieten großzügige Wohnflächen mit viel Raum für individuelle Gestaltung und entsprechen höchsten Ansprüchen an modernes und komfortables Wohnen.



Investitionsmöglichkeit:



Dieses Grundstück in Vösendorf bietet eine hervorragende Investitionschance in einer sich dynamisch entwickelnden Region nahe Wien. Die günstigen Bebauungsvorgaben und das flexible Nutzungskonzept machen es besonders attraktiv für Investoren und Bauherren, die auf der Suche nach einem rentablen und zukunftssicheren Projekt sind.



Zusammenfassung:




  • Attraktives Baugrundstück mit 736 m² Fläche



  • Genehmigter Einreichplan für 3 Einfamilienhäusern



  • 33 % Bebaubarkeit, Bauweise o, g, k, Bauklasse I (max. 6 m Höhe)



  • Zeitgemäßes Wohnkonzept auf 3 Ebenen



  • Ausgezeichnete Lage in einer aufstrebenden Region Wiens




Kaufpreis:




  • Grundstück mit Altbestand: € 550.000,–



  • Villa 1 (im Vorverkauf): € 920.000,–



  • Villa 2 (im Vorverkauf): € 890.000,–



  • Villa 3 (im Vorverkauf): € 900.000,–




Bei erfolgreichem Geschäftsabschluss fällt eine Provision in Höhe von 3 % zzgl. 20 % USt. des Kaufpreises an.



Für weitere Informationen oder zur Vereinbarung eines Besichtigungstermins steht Ihnen Herr Alexandru Filimon gerne unter 0660 285 0330 zur Verfügung.





www.ringsmuth-immobilien.at


Wir weisen ausdrücklich auf unser wirtschaftliches Naheverhältnis mit dem Abgeber/der Abgeberin und auf unsere Vermittlungstätigkeit als Doppelmakler hin. 


Irrtum und Änderungen vorbehalten!

Hinweis gemäß Energieausweisvorlagegesetz: Ein Energieausweis wurde vom Eigentümer bzw. Verkäufer, nach unserer Aufklärung über die generell geltende Vorlagepflicht, sowie Aufforderung zu seiner Erstellung noch nicht vorgelegt. Daher gilt zumindest eine dem Alter und der Art des Gebäudes entsprechende Gesamtenergieeffizienz als vereinbart. Wir übernehmen keinerlei Gewähr oder Haftung für die tatsächliche Energieeffizienz der angebotenen Immobilie.

Infrastruktur / Entfernungen

Gesundheit
Arzt <3.000m
Apotheke <1.500m
Klinik <4.000m
Krankenhaus <4.500m

Kinder & Schulen
Schule <1.000m
Kindergarten <500m
Universität <5.500m
Höhere Schule <6.500m

Nahversorgung
Supermarkt <500m
Bäckerei <2.500m
Einkaufszentrum <2.500m

Sonstige
Geldautomat <500m
Bank <500m
Post <2.000m
Polizei <2.000m

Verkehr
Bus <500m
U-Bahn <3.500m
Straßenbahn <4.000m
Bahnhof <1.500m
Autobahnanschluss <1.500m

Angaben Entfernung Luftlinie / Quelle: OpenStreetMap

Eckdaten Objektnr. 16498

Art: Grundstück
Land: Österreich
Kaufpreis: 550.000,00
Provision: 3% des Kaufpreises zzgl. 20% USt.
Nutzfläche: 432,95 m²
Grundstücksfl.: 736,00 m²
Immobilie merken Exposé

Immobilie anfragen


Ihre persönliche Beratung

Alexander Ringsmuth GmbH

Alexandru Filimon

Alexander Ringsmuth GmbH

T +43 660 285 0330

H +43 660 285 0330