Naturblick Residenzen: "Stilvolles zweitwohnsitzfähiges Wohnen zwischen Bergen und See"

Wohnung - Erdgeschoß, 8943 Aigen im Ennstal


in Aigen im Ennstal, absolut sonnige und ruhige Lage

Beschreibung der Immobilie

Naturblick Residenzen: "Stilvolles zweitwohnsitzfähiges Wohnen zwischen Bergen und See"

Ansprechendes Wohnen in moderner Wohnkultur:

Ihr Rückzugsort umgeben von Natur!



In der malerischen Region Aigen im Ennstal / Irdning entsteht ein hochwertiges Neubauprojekt, das aus zwei modernen Mehrfamilienhäusern besteht. Mit insgesamt 6 Eigentumswohnungen und 2 luxuriösen Maisonette-Penthäusern bietet dieses Projekt erstklassigen Wohnkomfort in einer ruhigen und sonnigen Lage. Diese Immobilien sind zweitwohnsitzfähig!




Lage und Umgebung



  • Idyllische Natur: Eingebettet in eine atemberaubende Landschaft genießen die Erdgeschosswohnungen den Blick in die umliegende Natur, während die Obergeschosswohnungen mit einem herrlichen Ausblick bestechen. Die Maisonette-Penthäuser bieten einen zusätzlichen, atemberaubenden Rundum-Blick in die Natur, auf den Grimming und den Putterersee, was sie zu einem idealen Rückzugsort macht.
  • Freizeitmöglichkeiten: Ideal für Naturliebhaber – zahlreiche Wander- und Radwege, Wassersportmöglichkeiten sowie renomierte Skigebiete und Golfplätze in der Nähe bieten vielfältige Freizeitaktivitäten für jedes Alter und Interesse.







Wohnungsangebot



Vielfältige Wohnungsgrößen



Die Wohnungen variieren zwischen 36 m² und 132 m² und bieten verschiedene Grundriss-Varianten:



  • Erdgeschosswohnungen:

    • Mit großzügigen Terrassen und Grünflächen, die einen ruhigen Blick in die Natur ermöglichen.

  • Obergeschosswohnungen:
    • Große, südseitige Balkone und beeindruckende Ausblicke in die Natur.

  • Maisonette-Penthouse:
    • Exklusive Ausstattung und atemberaubende Rundum-Ausblicke.




Hochwertige Ausstattung



Heizung und Energieeffizienz



  • Pelletszentralheizung: Umweltfreundlich und kosteneffizient.
  • Fußbodenheizung: Angenehme Wärmeverteilung in allen Wohnräumen.
  • Einzelraumregelung: Individuelle Temperatureinstellungen für Wohn-/Koch-Essbereich, Zimmer und Bad.


Fenster und Sonnenschutz



  • Holz-Glas-Fenster: 3-Scheibenwärmeschutzverglasung für optimale Dämmung.
  • Raffstoreelemente: An allen Ost-Süd-West-Fassaden positioniert sorgen sie für effektive Lichtregulierung, Sichtschutz und zusätzliche Wärmedämmung, um eine angenehme Raumatmosphäre zu schaffen.


Innenausstattung



  • Hochwertige Bodenbeläge:

    • Fertigparkett in Eiche im Wohnbereich.
    • Feinsteinzeug in Garderobe, Bad und WC.

  • Hochwertige Sanitärausstattung: Modern und funktional.
  • Türen: Weiße Türen mit Drückern in natur eloxiertem Aluminium.



Besondere Merkmale



  • Kellerabteile: Jede Wohnung verfügt über ein eigenes Abteil.
  • Fahrradabstellplätze: Vorhanden in den Allgemeinflächen.
  • Carport-Abstellplatz: Optional erhältlich.
  • Zweitwohnsitzfähigkeit: Das Neubauprojekt ist ideal als Zweitwohnsitz geeignet, was es zu einer hervorragenden Option für Käufer macht, die einen Rückzugsort in der Natur suchen. Ob für entspannte Wochenendaufenthalte oder als Ferienwohnung – die hochwertige Ausstattung und die traumhafte Umgebung bieten den perfekten Rahmen für unvergessliche Erlebnisse in den Bergen.




Ausblick und Fazit



Das Neubauprojekt in Aigen im Ennstal / Irdning bietet eine perfekte Kombination aus modernem Wohnkomfort, erstklassiger Ausstattung und einer traumhaften Lage. Ob als neues Zuhause oder als Rückzugsort in der Natur – hier finden Sie den idealen Ort zum Entspannen und Wohlfühlen.



Verpassen Sie nicht die Gelegenheit, Teil dieses exklusiven Wohnprojekts zu werden!

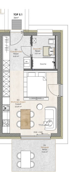
Objektbeschreibung



Entdecken Sie Ihre neue, exklusive Eigentumswohnung im malerischen Ennstal! Diese ca. 36 m² große Neubauwohnung (TOP 5.1) im Erdgeschoss eignet sich ideal für Singles oder Paare und überzeugt durch ihre durchdachte Raumaufteilung sowie moderne Ausstattung. Mit einer ca. 9 m² großen, südseitigen Terrasse und einer süd-ost-nordseitigen Ausrichtung genießen Sie den ganzen Tag über eine angenehme Lichtatmosphäre.



Raumaufteilung



  • Garderobe: Ein praktischer Eingangsbereich, der Ihnen ausreichend Stauraum für Ihre Garderobe und persönliche Gegenstände bietet.
  • Badezimmer: Modernes Badezimmer mit WC, Dusche und Fenster, das für eine helle und freundliche Atmosphäre sorgt.
  • Großer Wohn-Ess-Schlaf-Küchenbereich: Ein offener und großzügiger Raum, der sich ideal für das tägliche Leben eignet. Der Zugang zur ca. 9 m² großen, südseitigen Terrasse ermöglicht es Ihnen, entspannte Stunden im Freien zu verbringen und die Sonne zu genießen.


Ausstattung



Die hochwertig ausgestattete Wohnung besticht durch Fertigparkett in Eiche im Wohnbereich, das Wärme und Eleganz ausstrahlt. In der Garderobe, im Bad und im WC sorgt edles Feinsteinzeug für eine moderne und pflegeleichte Oberfläche. Jedes Detail wurde sorgfältig ausgewählt, um Ihnen ein modernes und komfortables Wohnerlebnis zu bieten.



Weitere Merkmale



  • Kellerabteil: Praktischer Stauraum für Fahrräder, Sportgeräte oder saisonale Artikel.
  • Carportstellplatz: Optional verfügbar, um Ihr Fahrzeug bequem und sicher unterzubringen.


Fazit



Diese Neubau-Eigentumswohnung bietet modernes Wohnen auf kompaktem Raum in einer attraktiven Lage im EnnstalAls zweitwohnsitzfähige Immobilie ist sie besonders geeignet für Käufer, die einen stilvollen Rückzugsort in der Natur suchen. Ob für Singles oder Paare – hier finden Sie den idealen Ort zum Entspannen und Genießen. Lassen Sie sich von dieser einzigartigen Immobilie begeistern und vereinbaren Sie noch heute einen Beratungstermin!


Der Vermittler ist als Doppelmakler tätig.

Infrastruktur / Entfernungen

Gesundheit
Arzt <1.000m
Apotheke <3.000m

Kinder & Schulen
Schule <1.500m
Kindergarten <3.000m

Nahversorgung
Supermarkt <2.000m
Bäckerei <1.500m
Einkaufszentrum <10.000m

Sonstige
Bank <1.500m
Geldautomat <1.500m
Post <1.500m
Polizei <2.000m

Verkehr
Bus <500m
Bahnhof <3.000m
Flughafen <3.000m

Angaben Entfernung Luftlinie / Quelle: OpenStreetMap

Eckdaten Objektnr. 11007

Art: Wohnung - Erdgeschoß
Land: Österreich
Zustand: Erstbezug
Alter: Neubau
Provision: 3% des Kaufpreises zzgl. 20% USt.
Wohnfläche: 35,35 m²
Zimmer: 1
Bäder: 1
WC: 1
Terrassen: 1
Heizwärmebedarf:  B  45,00 kWh/m²a
fGEE:  A  0,72
Immobilie merken Exposé

Ausstattung

Parkettboden, Steinboden, Fußbodenheizung, Wohnküche / offene Küche, Südbalkon, Bad mit Fenster


Immobilie anfragen


Ihre persönliche Beratung

wohn4you Immobilien Bacher & Steininger Immobilienmakler KG

Hans Jürgen Bacher

wohn4you Immobilien Bacher & Steininger Immobilienmakler KG

T +43 3612 25080

H +43 676 49 756 73

F +43 3612 25081