Ihr Markenauftritt im Cluster der besten - Flexible Shop in Shop Fläche
Einzelhandel
- Ladenlokal,
1230
Wien
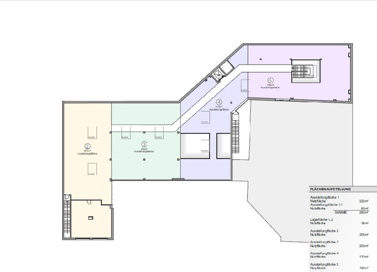
Schaubild Fläche 2
Ausstellungsfläche 1
Schaubild Fläche 3
Schaubild Fläche 4
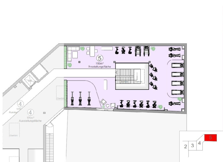
Schaubild Fläche 5
IMG_20251113_104721_
IMG_20251113_104757
IMG_20251113_104907_
IMG_20251113_104846
IMG_20251113_105427
IMG_20251113_105516_
IMG_20251113_105611_
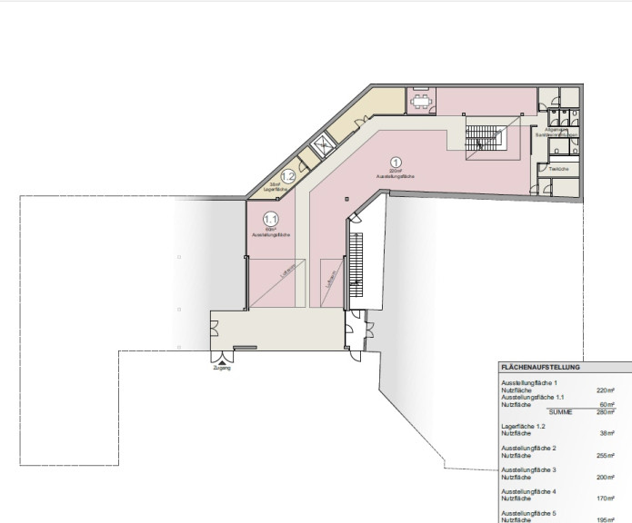
Ausstellungsflächen
Ausstellungsfläche 2
Ausstellungsfläche 3
Austellungsfläche 4
Ausstellungsfläche 5
Beschreibung der Immobilie
Ihr Markenauftritt im Cluster der besten - Flexible Shop in Shop Fläche
Diese vielseitig nutzbare Ausstellungsfläche befindet sich in einem der dynamischsten Gewerbestandorte des 23. Wiener Bezirks einem Standort, der sich in den letzten Jahren zu einem starken Interior- und Baunebengewerbe-Cluster entwickelt hat. Unternehmen profitieren hier besonders von Sichtbarkeit, einem professionellen Umfeld und wertvollen Synergieeffekten.Die gesamte verfügbare Fläche umfasst ca. 1.350 m² und gliedert sich in ein Erdgeschoss (ca. 323 m²) sowie ein Obergeschoss (ca. 825 m²). Um den Mietern ein optimales Umfeld zu bieten, wurde vom Eigentümer ein variables Shop-in-Shop-Konzept entwickelt, das neue wie bestehende Marken vernetzt und gemeinsame Events sowie Kooperationen ermöglicht. Marken wie Molto Luce, Breitschopf Küchen, Dana Türen und Sedda Polstermöbel schaffen ein etabliertes und hochwertiges Umfeld und dadurch ein ideales Fundament für Unternehmen, die ihre Marke bewusst positionieren möchten.
Durch die spielend leichte Flächenanpassung eignet sich die Fläche perfekt für Interior-, Design- und Bau(neben)gewerbeunternehmen, die ein professionelles Präsentationsumfeld suchen. Im Obergeschoss sind bereits Wasser- und Kanalanschlüsse vorbereitet. Die gesamte Fläche ist zudem mit Fußbodenheizung ausgestattet.
Flächenaufteilung (architektonisch geprüft & sofort umsetzbar):
EG: ca. 323 m²
OG Fläche 2: ca. 257 m²
OG Fläche 3: ca. 202 m²
OG Fläche 4: ca. 170 m²
OG Fläche 5: ca. 195 m²
Sollte keine der oben genannten Aufteilungsmöglichkeiten für Ihr Konzept passend sein, kann mit dem Vermieter auch eine andere Aufteilung der Fläche erarbeitet werden, individuell und auf Ihre Anforderungen. Die Flexibilität dieses Objekts sowie die ausreichenden Parkplätze und E-Ladestationen direkt am Gelände gehört zu den großen Vorteilen des Objektes.
Auch das angrenzende Geschäftsumfeld ist geprägt von namhaften Marken des Baunebengewerbes, darunter Internorm Fenster, Heller Sonnenschutz, Miele Experience Center, Sto-Verkaufscenter, Hagleitner Hygiene, Schachermayer/Rechberger und viele mehr.
Diese dichte Konzentration macht den Standort zu einer der gefragtesten Gewerbezonen für Unternehmen, die sich mit Bau, Sanierung, Innenausbau oder Interior-Design befassen.
Lage
Die Liegenschaft befindet sich in der Vorarlberger Allee 23 im 23. Wiener Gemeindebezirk, direkt an der S1-Abfahrt Vorarlberger Allee einem der wichtigsten Verkehrsknotenpunkte im Süden Wiens. Die unmittelbare Nähe zur S1 (Südost-Tangente) sowie die schnelle Erreichbarkeit der A2 (Südautobahn), A21 (Wiener Außenringautobahn) und A4 (Ostautobahn) garantieren eine optimale Verkehrsanbindung für Kunden, Mitarbeiter und Lieferanten.
Über diese Achsen ist die Liegenschaft nicht nur aus der Wiener Innenstadt, sondern auch aus den Bundesländern Kärnten, Steiermark, Burgenland, Niederösterreich, Oberösterreich und Salzburg in kurzer Zeit erreichbar. Damit eignet sich der Standort ideal für Unternehmen mit österreichweiter Tätigkeit oder zentralem Vertriebs- bzw. Servicestützpunkt.
Die Buslinie 67B verbindet den Standort zudem mit den U-Bahn-Stationen U6 Alterlaa und U1 Alaudagasse, wodurch auch eine hervorragende Anbindung an das öffentliche Verkehrsnetz besteht. Die Lage bietet somit eine hervorragende Kombination aus urbaner Erreichbarkeit und überregionaler Anbindung, wie sie im Süden Wiens nur selten zu finden ist.
Eckdaten Objektnr. 141/84768
| Art: | Einzelhandel - Ladenlokal |
| Land: | Österreich |
| Baujahr: | 2008 |
| Möbliert: | Teil |
| Gesamtmiete: | 5.387,64 € |
| Kaltmiete (netto): | 4.037,50 € |
| Miete / m²: | 12,50 € |
| Provision: | 3 BMM |
| Betriebskosten: | 452,20 € |
| MwSt Gesamt: | 897,94 € |
| Nutzfläche: | 323,00 m² |
| Heizwärmebedarf: | C 59,00 kWh/m²a |
| fGEE: | B 0,93 |
Ausstattung
Fußbodenheizung
Ihre persönliche Beratung
Dieser Makler ist ein offizielles Mitglied des IR – ir.at Mehr Erfahren
