Optimal aufgeteilte 3 1/2 - Zimmer WHG inkl. Einbauküche in Guntramsdorf --- ca. 35 m² Terrasse in Südausrichtung

Wohnung , 2353 Guntramsdorf


Münchendorf, Laxenburg

Beschreibung der Immobilie

Optimal aufgeteilte 3 1/2 - Zimmer WHG inkl. Einbauküche in Guntramsdorf --- ca. 35 m² Terrasse in Südausrichtung

Optimal aufgeteilte 4 (3 1/2) - Zimmer Wohnung mit Terrasse (ca. 30 m²) & Wohnküche inkl. Geräte in Guntramsdorf.

(am Grundriss ersichtlich)



Die gepflegte Liegenschaft wurde erst im Jahr 2006/2007 errichtet und ist technisch als auch optisch in sehr guten Zustand.



Highlights der Liegenschaft:
- 5 Parteien Gebäude

- Großzügige Freiflächen 

- PKW Abstellplatz (optional verfügbar) 

- Ziegel Massiv Bauweise inkl. Vollwärmeschutz 



Highlights der Wohnung:
- Optimale Raumaufteilung (teilweise zentral begehbar)

- Parkett in Echtholz

- Fussbodenheizung

- Kunststofffenster mit Mehrfachverglasung

- Hochwertige Küche inkl. Geräte

- Balkon

- Wohnküche inkl. Geräte



Nach Eintritt in die Wohnung gelangen Sie in ein großzügiges Vorzimmer mit ausreichend Platz für Ihre Garderobe.  

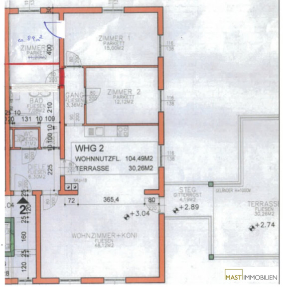
Die Wohnküche verfügt über eine Fläche von ca. 48 m² und ist mit einer Terrasse (ca. 30 m²) in südlicher Ausrichtung ausgestattet. Das Elternschlafzimmer verfügt über eine Fläche von 15 m² und bietet einen eigenen Schrankraum. Das 2. Schlafzimmer eignet sich optimal als Kinderzimmer und verfügt über eine Fläche von ca. 12 m². 



Beachten Sie bitte, dass der Schrankraum auch als Büro oder zur Not als Gästezimmer genutzt werden könnte, als 2. Kinderzimmer wird es mit ca. 8-9 m² ist es möglich, aber nur durch das Schlafzimmer erreichbar.



Jede Wohnung verfügt über ein Kellerabteil, optional kann auch ein PKW Stellplatz angemietet werden.



Raumaufteilung:
- 1 Vorzimmer

- 1 Wohnküche inkl. Geräte

- 1 Schlafzimmer + 1 Schrankraum

- 1 Kinderzimmer 

- 1 Terrasse mit ca. 30 m²

- 1 Badezimmer mit Dusche & WM-Anschluss

- 1 separates WC mit Waschbecken

- 1 Kellerabteil 

- 1 PKW Abstellplatz (optional 75,--/monatlich)



Ansehen zahlt sich aus, Sie erreichen mich unter 0676 - 342 77 18 oder per mail unter md@mast-immo.at



Ihr Immobilienberater

Herr Manuel Daniloglu

MAST Immo GmbH



Kosten:
- Maklerhonorar: Provisionsfrei

- Kaution: 3 BMM 

- Miete: 1.495,-- inkl. Heizung

- Bezugsbereit ab 01.02.2026

- Befristung: 5 Jahre mit Option auf Verlängerung bei Zustimmung des Vermieters und pünktlicher Zahlung der Miete



Es wird auf ein wirtschaftliches Nahverhältnis zwischen Eigentümer & Immobilienmakler hingewiesen.




Der Immobilienmakler erklärt, dass er – entgegen dem in der Immobilienwirtschaft üblichen Geschäftsgebrauch des Doppelmaklers – einseitig nur für den Vermieter tätig ist.

Infrastruktur / Entfernungen

Gesundheit
Arzt <1.500m
Apotheke <1.000m
Klinik <1.000m
Krankenhaus <5.000m

Kinder & Schulen
Kindergarten <500m
Schule <500m
Höhere Schule <3.500m

Nahversorgung
Supermarkt <1.000m
Bäckerei <1.000m
Einkaufszentrum <3.500m

Sonstige
Bank <500m
Geldautomat <500m
Polizei <500m
Post <500m

Verkehr
Bus <500m
Bahnhof <1.000m
Autobahnanschluss <2.000m
U-Bahn <9.000m
Straßenbahn <1.000m

Angaben Entfernung Luftlinie / Quelle: OpenStreetMap

Eckdaten Objektnr. 5387/8143

Art: Wohnung
Land: Österreich
Baujahr: 2006
Zustand: Modernisiert
Alter: Neubau
Gesamtmiete: 1.495,00
Kaltmiete (netto): 1.179,09 €
Kaltmiete: 1.359,09 €
Provision: Gemäß Erstauftraggeberprinzip bezahlt der Abgeber die Provision.
Betriebskosten: 180,00 €
MwSt Gesamt: 135,91 €
Wohnfläche: 104,00 m²
Nutzfläche: 134,00 m²
Gesamtfläche: 134,00 m²
Zimmer: 3,50
Bäder: 1
WC: 1
Terrassen: 1
Stellplätze: 1
Keller: 1,00 m²
Heizwärmebedarf:  B  33,90 kWh/m²a
fGEE:  A  0,79
Immobilie merken Exposé

Ausstattung

Fliesen, Parkett, Zentralheizung, Wohnküche / offene Küche, Südbalkon, Dusche, Parkplatz


Immobilie anfragen


Ihre persönliche Beratung

MAST Immo GmbH

Manuel Daniloglu

MA.ST Immobilien & Design e.U.

T +43 676 342 77 18